Prodej bytu 3+1, Mladá Boleslav, Jana Palacha, 79 m2

Jana Palacha, Mladá Boleslav II

5 390 000 Kč
/za nemovitost
Hypotéka od 24 090 Kč /měs. Chci hypotéku

Parametry bytu

AdresaJana Palacha, Mladá Boleslav II
ID0201-NP03349
StavbaPanelová
Stav objektuPřed rekonstrukcí
Patro2. z 7
VlastnictvíOsobní
Užitná plocha79 m2
Zastavěná plocha79 m2
Podlahová plocha89 m2
Třída energetické náročnostiG - Mimořádně nehospodárná
Elektřina230V
PlynPlynovod
OdpadVeřejná kanalizace
KomunikaceBetonová, Asfaltová, Zpevněná
TelekomunikaceInternet
DopravaVlak, Dálnice, Silnice, MHD, Autobus
VodaVodovod
Topné tělesoRadiátory
Sklep
Lodžie
Výtah

Origo partneři v Mladé Boleslavi

Popis

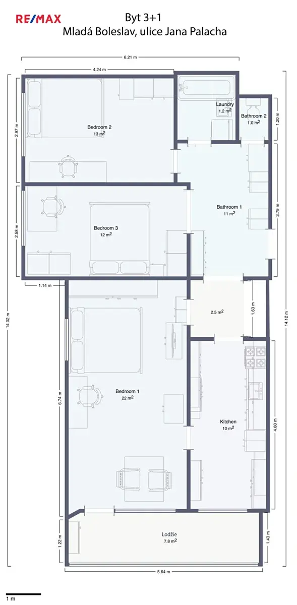
Ve výhradním zastoupení majitele nabízíme k prodeji útulný byt 3+1 v osobním vlastnictví o užitné ploše 69 m², situovaný ve 2. patře zatepleného a udržovaného panelového domu ve městě Mladá Boleslav.

Byt je v dobrém stavu a nabízí praktické dispoziční řešení, které ocení zejména rodiny hledající pohodlné a dostupné bydlení. Velkou výhodou je prostorná lodžie o velikosti 7 m² s příjemným výhledem do okolí – ideální místo pro ranní kávu nebo večerní relax. K bytu náleží také sklepní kóje o výměře 3 m², která poskytuje dostatek úložného prostoru.

Nemovitost se nachází v atraktivní lokalitě nedaleko 11. brány společnosti Škoda Auto, což z ní činí zajímavou příležitost i z investičního hlediska.

V docházkové vzdálenosti je kompletní občanská vybavenost – škola, školka, lékař, autobusové i vlakové nádraží a obchodní centrum Bondy Centrum.

Okolí domu prošlo rekonstrukcí a za domem se nachází biotop a dětské hřiště, což vytváří příjemné prostředí pro rodinný život.

Byt je momentálně užíván nájemníky. Možnost nastěhování od 01.05.2026.

Tento byt představuje skvělou příležitost jak pro vlastní bydlení, tak jako investici k pronájmu v žádané lokalitě. Pro více informací nebo sjednání prohlídky mě neváhejte kontaktovat.

Makléř

Máte zájem o tento byt?

Tímto, v souladu s nařízením Evropského parlamentu a Rady (EU) 2016/679, v platném znění, prohlašuji, že mi je alespoň 16 let a uděluji tak svůj souhlas se zpracováním zadaných údajů (jméno, telefon, e-mail, ip adresa) společnosti B3 Technology, s.r.o., IČ: 07330600, se sídlem Novostavby 126/23, 435 11 Lom (správce dat), za účelem předání dotazu z tohoto formuláře Vámi vybranému inzerentovi a zpětného kontaktování mé osoby. Osobní údaje bude správce zpracovávat manuálně i automaticky přímo prostřednictvím svých zaměstnanců. Informace předané tímto formulářem budou uloženy v databázi správce maximálně po dobu 10 let. Odvolání souhlasu s uložením a zpracováním poskytnutých dat lze e-mailem na info@origo-reality.cz. V případě podezření na neoprávněné použití Vámi poskytnutých údajů máte právo předat podnět k šetření Úřadu pro ochranu osobních údajů. Více informací
Chystáte se prodat nemovitost?
Pomůžeme Vám!

Přihlášení k odběru

Nenechte si ujít nejnovější nabídky prodeje bytů 3+1 v Mladé Boleslavi.