Prodej rodinného domu, Hulín - Záhlinice, 79 m2

Hulín, Záhlinice

3 990 000 Kč
/za nemovitost
Hypotéka od 17 833 Kč /měs. Chci hypotéku

Parametry domu

AdresaHulín, Záhlinice
ID1844
StavbaCihlová
Stav objektuDobrý
VybavenoAno
Typ objektuPatrový
Druh objektuRohový
Lokalita objektuOkraj obce
Užitná plocha79 m2
Zastavěná plocha77 m2
Plocha pozemku567 m2
Třída energetické náročnostiG - Mimořádně nehospodárná
OdpadVeřejná kanalizace
KomunikaceBetonová, Dlážděná, Asfaltová, Zpevněná
DopravaVlak, Dálnice, Silnice, Autobus
VodaMístní zdroj vody
Garáž
Převod do OV
Parkování

Origo partneři v Hulíně

Popis

Nabízíme k prodeji rodinný dům v klidné obci Záhlinice, místní části Hulína, ideální pro rodinné bydlení i investici. Potenciál rekonstrukce dle vlastních představ. Nemovitost je obyvatelná, zároveň však nabízí prostor pro modernizaci dle nároků nového majitele.
Zastavěná plocha rodinného domu činí 108 m², garáž a dílna stojící v zdaní části pozemku má 77 m² a zahrada 382 m². Celková výměra pozemků je 567 m².
Napojení na inženýrské sítě: nemovitost je připojena na obecní kanalizaci, zdroj vody je zajištěn z místního pivovaru. Ohřev vody zajišťuje elektrický bojler. Vytápění domu je řešeno krbovými kamny na dřevo s výměníkem, přičemž teplo je rozváděno do radiátorů v jednotlivých místnostech.

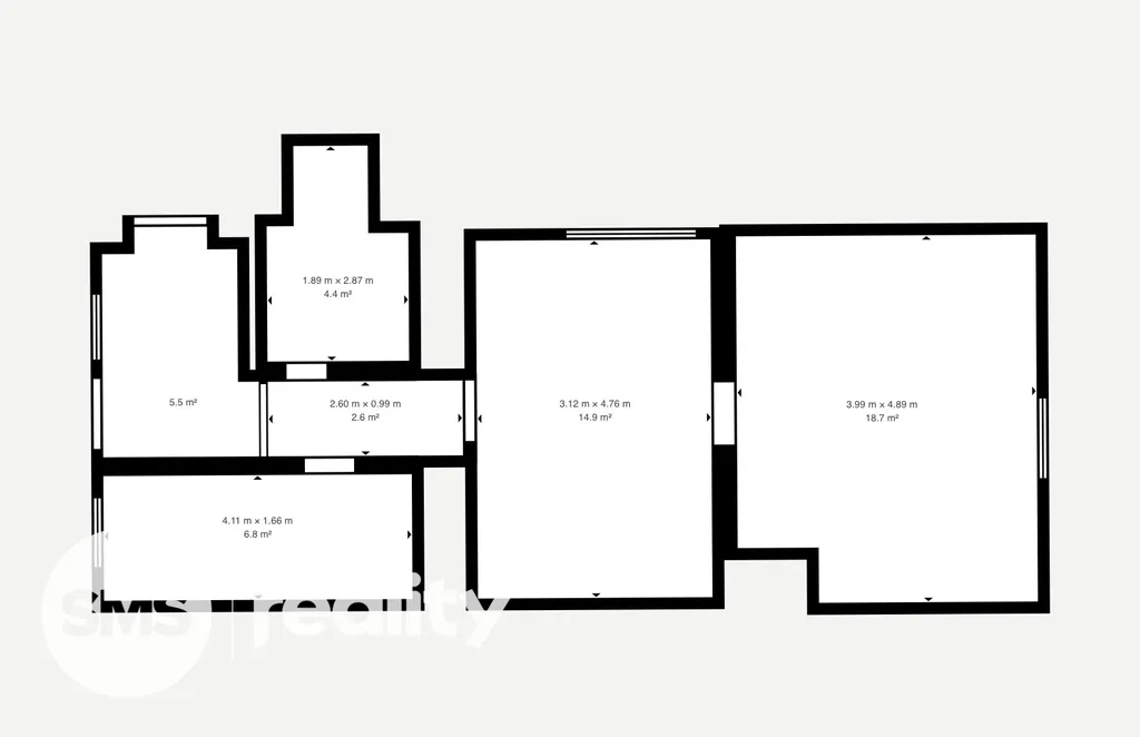
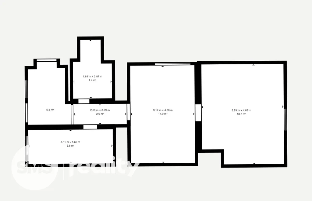
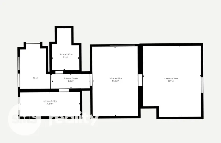
Dispozice a výměry místností:
Přízemí: vstupní prostor 5,5 m² navazující na chodbu o výměře 2,6 m², technická místnost 4,4 m², koupelna 6,8 m², kuchyně 14,9 m² a obývací pokoj o velikosti 18,7 m² (součástí obývacího pokoje je schodiště do druhého patra).
Druhé patro: ložnice 8,6 m² a dětský pokoj včetně chodby 18,1m².

Dům je v současném stavu vhodný k užívání a současně představuje ideální příležitost pro klienty, kteří si chtějí bydlení upravit podle vlastních představ, modernizovat dispozice či celkový standard domu.
Zajímavostí a zároveň dlouhodobě funkčním řešením je napojení domu na řád pitné vody z místního pivovaru, nikoli na obecní vodovod. Tento systém využívá více okolních domů a je dlouhodobě spolehlivý, což představuje kuriozitu.

Záhlinice jsou vyhledávanou lokalitou díky kombinaci venkovského klidu a výborné dopravní dostupnosti. Přímo v obci se nachází mateřská škola, obchod se smíšeným zbožím, restaurace, místní pivovar a možnosti sportovního i kulturního vyžití. Kompletní občanskou vybavenost nabízí nedaleký Hulín vzdálený přibližně 3 km, kde najdete základní školu, zdravotní středisko, lékárny, supermarkety, poštu, banky, sportoviště i široké spektrum služeb.

Dopravní dostupnost je jednou z hlavních předností této lokality. Hulín je významným železničním uzlem s přímými spoji do Přerova, Otrokovic, Zlína, Brna i Olomouce a je vzdálen pouhých několik minut jízdy autem. Z obce je zajištěno pravidelné autobusové spojení do Hulína a okolních obcí. Výborné je také silniční napojení – Hulín je vzdálen přibližně 3 km, Kroměříž asi 10 km, Přerov 15 km, Otrokovice 20 km a Zlín zhruba 25 km. V blízkosti se nachází nájezdy na dálnice D55 a D1.

Lokalita nabízí také široké pracovní příležitosti: v Hulíně se nacházejí průmyslové a logistické areály, v Otrokovicích významný zaměstnavatel Continental Barum, Kroměříž nabízí pracovní příležitosti ve službách, školství i zdravotnictví, Přerov je významným dopravním a průmyslovým centrem a Zlín poskytuje uplatnění v administrativním i výrobním sektoru.
Záhlinice představují ideální místo pro klidné rodinné bydlení s výbornou dostupností, blízkostí přírody a současně i potenciálem růstu hodnoty nemovitosti.

Pro více informací mě neváhejte kontaktovat. Ráda Vám sdělím další detaily a domluvím prohlídku.

Makléř

Máte zájem o tento dům?

Tímto, v souladu s nařízením Evropského parlamentu a Rady (EU) 2016/679, v platném znění, prohlašuji, že mi je alespoň 16 let a uděluji tak svůj souhlas se zpracováním zadaných údajů (jméno, telefon, e-mail, ip adresa) společnosti B3 Technology, s.r.o., IČ: 07330600, se sídlem Novostavby 126/23, 435 11 Lom (správce dat), za účelem předání dotazu z tohoto formuláře Vámi vybranému inzerentovi a zpětného kontaktování mé osoby. Osobní údaje bude správce zpracovávat manuálně i automaticky přímo prostřednictvím svých zaměstnanců. Informace předané tímto formulářem budou uloženy v databázi správce maximálně po dobu 10 let. Odvolání souhlasu s uložením a zpracováním poskytnutých dat lze e-mailem na info@origo-reality.cz. V případě podezření na neoprávněné použití Vámi poskytnutých údajů máte právo předat podnět k šetření Úřadu pro ochranu osobních údajů. Více informací
Chystáte se prodat nemovitost?
Pomůžeme Vám!

Přihlášení k odběru

Nenechte si ujít nejnovější nabídky prodeje rodinných domů v Hulíně.