Prodej bytu 2+1, Praha - Ruzyně, Stočesova, 57 m2

Stočesova, Praha, Ruzyně

4 600 000 Kč
/za nemovitost
včetně provize, včetně právního servisu
Hypotéka od 20 559 Kč /měs. Chci hypotéku

Parametry bytu

AdresaStočesova, Praha, Ruzyně
ID01342
StavbaSmíšená
Stav objektuNovostavba
Patro1. z 5
VybavenoČástečně
Druh objektuSamostatný
Lokalita objektuKlidná část obce
VlastnictvíDružstevní
Užitná plocha57 m2
Podlahová plocha92 m2
Plocha zahrady34 m2
Třída energetické náročnostiG - Mimořádně nehospodárná
Elektřina230V
DopravaSilnice, MHD, Autobus
VodaVodovod
Terasa
Výtah
Převod do OV

Origo partneři v Praze

Stěhovací služby

Výkup a prodej starého nábytku

Popis

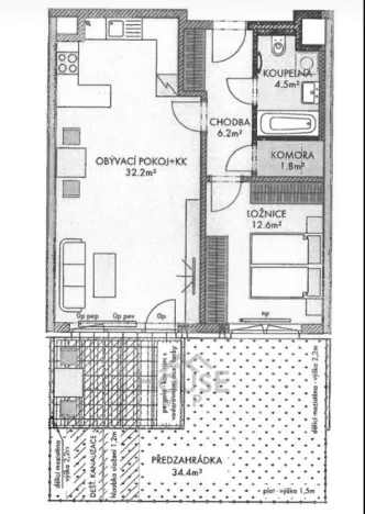
Nabízíme Vám postoupení družstevního bytu 2+1 o výměře 57,3 m2 s předzahrádkou 34,4 m2 ve 1. nadzemním podlaží cihlové novostavby moderní Rezidenci U Šárky, Stočesova ul., Praha 6 - Ruzyně.

Částka za postoupení je 4.600.000,- Kč. Zbývající anuita je ve výši 6.000.000,- Kč. Celková cena 10.600.000,- Kč.

Vzhledem k tomu, že se jedná o družstevní byt, cenu splácíte formou nájmu. Neprokazujete výši příjmu, nepotřebujete hypoteční úvěr a byt je možné převést do osobního vlastnictví kdykoli v průběhu splacení anuity. Anuitu můžete samozřejmě také kdykoli doplatit a byt si převést do osobního vlastnictví.

Vzhledem k aktuálnímu navýšení úrokových sazeb na hypotečním trhu, nabízí anuitní splácení nemovitosti výhodnější financování. (Sazba je 4,85% s fixací na 5 let).

Byt je v současné době lukrativně pronajat.

Byt je orientovaný na východ s výhledem do zeleně.

V docházkové vzdálenosti je mnoho možností k relaxaci a sportu - přírodní rezervace Divoká Šárka a Obora Hvězda. Výborné dopravní spojení do města, 3 min. na MHD, 12 min. metro "A", zast. Nádraží Veleslavín, na Letiště Václava Havla Praha jen 9 min.

Atraktivní bydlení doplňuje skvělá poloha domu, v přímé blízkosti se nachází veškerá občanská vybavenost včetně škol, školek, lékařů, obchodů a restaurací - jen 5 min, v blízké vzdálenosti je OC Šestka.

Doporučujeme.

Makléř

Máte zájem o tento byt?

Tímto, v souladu s nařízením Evropského parlamentu a Rady (EU) 2016/679, v platném znění, prohlašuji, že mi je alespoň 16 let a uděluji tak svůj souhlas se zpracováním zadaných údajů (jméno, telefon, e-mail, ip adresa) společnosti B3 Technology, s.r.o., IČ: 07330600, se sídlem Novostavby 126/23, 435 11 Lom (správce dat), za účelem předání dotazu z tohoto formuláře Vámi vybranému inzerentovi a zpětného kontaktování mé osoby. Osobní údaje bude správce zpracovávat manuálně i automaticky přímo prostřednictvím svých zaměstnanců. Informace předané tímto formulářem budou uloženy v databázi správce maximálně po dobu 10 let. Odvolání souhlasu s uložením a zpracováním poskytnutých dat lze e-mailem na info@origo-reality.cz. V případě podezření na neoprávněné použití Vámi poskytnutých údajů máte právo předat podnět k šetření Úřadu pro ochranu osobních údajů. Více informací
Chystáte se prodat nemovitost?
Pomůžeme Vám!

Přihlášení k odběru

Nenechte si ujít nejnovější nabídky prodeje bytů 2+1 v Praze.