Pronájem kanceláře, Praha - Ruzyně, Ztracená, 84 m2 (ID: 1969636)

Ztracená, Praha, Ruzyně

34 990 Kč
/za měsíc
Získejte výhodnou HYPOTÉKU Chci hypotéku

Parametry nemovitosti

AdresaZtracená, Praha, Ruzyně
StavbaSmíšená
Stav objektuVelmi dobrý
Patro1.
VybavenoČástečně
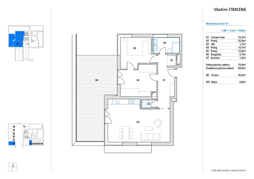
Užitná plocha84 m2
DopravaMHD
Garáž
Výtah
Bezbarierový přístup

Origo partneři v Praze 6

Stěhovací služby

Výkup a prodej starého nábytku

Popis

Dovolujeme si Vám nabídnout k pronájmu prostorné kancelářské prostory o užitné ploše 84 m² v moderní skeletové budově, která byla zkolaudována v roce 2020. Kanceláře se nacházejí v prvním nadzemním podlaží a jsou přístupné i výtahem, což zajišťuje bezbariérový přístup pro všechny klienty a zaměstnance. Díky použití kvalitních materiálů a moderní konstrukci je objekt ve velmi dobrém stavu, což přispívá k pohodlí a efektivitě pracovního prostředí. Ke kanceláři náleží i prostorná terasa o výměře 40 m2.
Součástí pronájmu jsou i dvě parkovací stání v garážích budovy.

Budova a tedy i parkovací místa jsou umístěné bezpečně v areálu za závorou.

Kanceláře se nacházejí v klidné části Prahy a jsou vhodně umístěné s dobrým napojením na veřejnou dopravu. Součástí pronájmu je i jedno parkovací místo v podzemní garáži a jedno parkovací stání před domem, což je velkou výhodou pro ty, kteří dojíždějí autem. Prostory jsou částečně vybaveny, což umožňuje snadné přizpůsobení podle specifických potřeb a představ nájemce.

Nabízíme tento pronájem bez zprostředkovatelské provize a za měsíční částku 34 900 Kč plus poplatky. Vratná kauce ve výši 70 000 Kč je požadována. Nastěhování je možné od 1. března 2026, ale prohlídky a podrobné informace o prostorách a dalších podmínkách pronájmu jsou dostupné již nyní.

Pokud Vás kancelářské prostory zaujaly, neváhejte nám napsat nebo zavolat a rádi Vám vše ukážeme osobně.

Makléř

Máte zájem o tuto nemovistost?

Tímto, v souladu s nařízením Evropského parlamentu a Rady (EU) 2016/679, v platném znění, prohlašuji, že mi je alespoň 16 let a uděluji tak svůj souhlas se zpracováním zadaných údajů (jméno, telefon, e-mail, ip adresa) společnosti B3 Technology, s.r.o., IČ: 07330600, se sídlem Novostavby 126/23, 435 11 Lom (správce dat), za účelem předání dotazu z tohoto formuláře Vámi vybranému inzerentovi a zpětného kontaktování mé osoby. Osobní údaje bude správce zpracovávat manuálně i automaticky přímo prostřednictvím svých zaměstnanců. Informace předané tímto formulářem budou uloženy v databázi správce maximálně po dobu 10 let. Odvolání souhlasu s uložením a zpracováním poskytnutých dat lze e-mailem na info@origo-reality.cz. V případě podezření na neoprávněné použití Vámi poskytnutých údajů máte právo předat podnět k šetření Úřadu pro ochranu osobních údajů. Více informací
Chystáte se prodat nemovitost?
Pomůžeme Vám!

Přihlášení k odběru

Nenechte si ujít nejnovější nabídky pronájmu kanceláří v Praze 6.