Pronájem bytu 3+kk, Mníšek pod Brdy, Rudé armády, 72 m2

Rudé armády, Mníšek pod Brdy

19 500 Kč
/za měsíc
+ zálohy za služby a energie 3.700 Kč + zálohy na el. energii + vratná kauce 2 měsíční nájmy + rezervační poplatek
Získejte výhodnou HYPOTÉKU Chci hypotéku

Parametry bytu

AdresaRudé armády, Mníšek pod Brdy
ID12042
StavbaCihlová
Stav objektuVelmi dobrý
Patro3. z 3
VybavenoNe
Lokalita objektuKlidná část obce
VlastnictvíOsobní
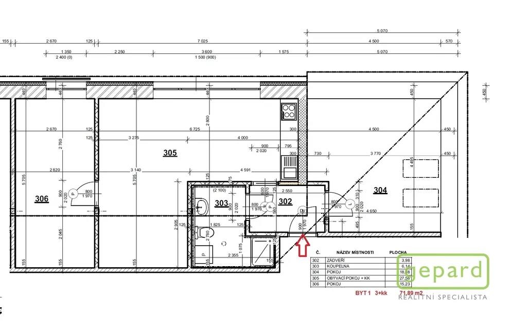
Užitná plocha72 m2
Podlahová plocha72 m2
Třída energetické náročnostiD - Méně úsporná
Elektřina230V
PlynPlynovod
OdpadVeřejná kanalizace
DopravaVlak, Dálnice, Silnice, MHD, Autobus

Origo partneři v Mníšku pod Brdy

Popis

Představujeme k pronájmu byt o velikosti 3+kk s užitnou plochou okolo 72 m2 nacházející se v klidné části městečka Mníšku pod Brdy, ul. Rudé armády. Byt je situován ve 3.NP revitalizovaného cihlového domu a pronajímá se bez vybavení pouze s kuchyňskou linkou a zabudovanými spotřebiči. Všechen nábytek, který je zachycen na fotografiích, bude současným nájemníkem odvezen. Dispozičně byt nabídne vstupní předsíň, obývací pokoj s kuchyňskou částí, ložnici, dětský pokoj a koupelnu se sprchovým koutem a toaletou. Byt je k dispozici od 01.06.2026 a preferujeme dlouhodobý pronájem.

Celkové platby : nájemné 19.500 Kč / měsíc + zálohy na služby a energie 3.700 Kč / měsíc + záloha za el. energii, která bude přepsána na nájemce.
Vratná kauce ve výši 2 měsíčních nájmů + rezervační poplatek ve výši nájemného za jeden měsíc.

Mníšek pod Brdy vám nabídne širokou škálu služeb, spousty památek, kulturního i sportovního vyžití, zkrátka kompletní občanskou vybavenost. Jen pár kroků od domu je Esmarin Lískovka, kde pod jednou střechou najdete prostory pro trávení volného času jako je wellness, sport, skvělá restaurace s uzavřeným hracím koutkem, služby v podobě manikúry a pedikúry, kadeřnický salon, pořádané kurzy pro děti, tenisové kurty a mnoho dalšího. Dopravu zajišťují především autobusové linky PID ve směru Praha Smíchovské nádraží.

Pokud vás nabídka zaujala, neváhejte kontaktovat místní realitní makléřku paní BEM. Ivanu Gašpar.

Makléř

Máte zájem o tento byt?

Tímto, v souladu s nařízením Evropského parlamentu a Rady (EU) 2016/679, v platném znění, prohlašuji, že mi je alespoň 16 let a uděluji tak svůj souhlas se zpracováním zadaných údajů (jméno, telefon, e-mail, ip adresa) společnosti B3 Technology, s.r.o., IČ: 07330600, se sídlem Novostavby 126/23, 435 11 Lom (správce dat), za účelem předání dotazu z tohoto formuláře Vámi vybranému inzerentovi a zpětného kontaktování mé osoby. Osobní údaje bude správce zpracovávat manuálně i automaticky přímo prostřednictvím svých zaměstnanců. Informace předané tímto formulářem budou uloženy v databázi správce maximálně po dobu 10 let. Odvolání souhlasu s uložením a zpracováním poskytnutých dat lze e-mailem na info@origo-reality.cz. V případě podezření na neoprávněné použití Vámi poskytnutých údajů máte právo předat podnět k šetření Úřadu pro ochranu osobních údajů. Více informací
Chystáte se prodat nemovitost?
Pomůžeme Vám!

Přihlášení k odběru

Nenechte si ujít nejnovější nabídky pronájmu bytů 3+kk v Mníšku pod Brdy.