Prodej bytu 1+kk, Brno, Blažovická, 41 m2 (ID: 1967108)

Blažovická, Brno, Slatina

5 900 000 Kč
/za nemovitost
Hypotéka od 26 369 Kč /měs. Chci hypotéku

Parametry bytu

AdresaBlažovická, Brno, Slatina
ID52989
StavbaCihlová
Stav objektuVelmi dobrý
Patro4. z 4
VybavenoČástečně
VlastnictvíDružstevní
Užitná plocha41 m2
Podlahová plocha52 m2
Třída energetické náročnostiC - Úsporná
Ukazatel energetické náročnosti104 kWh/m2 za rok
Sklep
Terasa
Výtah
Převod do OV

Origo partneři v Brně

Pojištění a finance

Popis

Prodej cihlového družstevního bytu o velikosti 1+kk v Brně - Slatině na ulici Blažovická.
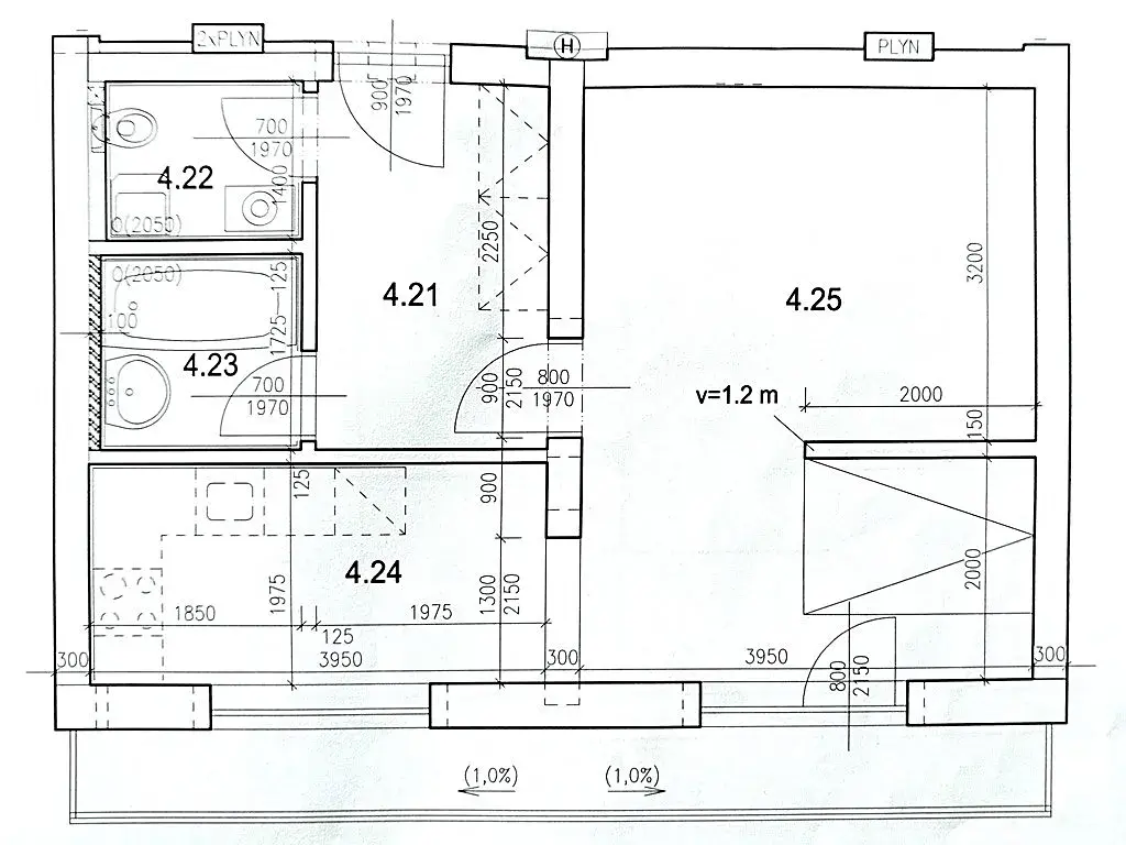
Byt je z roku 2008, nachází ve 3. patře (poslední patro, bez výtahu) o celkové výměře 52,2 m2, podlahová plocha 40,7 m2.
Dispozice: předsíň 6,4 m2, koupelna 3 m2, WC 2,3 m2, obývací pokoj s kuchyňským koutem 28,9 m2, terasa s markýzou 6,3 m2, komora na patře (sklep) 5,3 m2.

Vybavení: bezpečnostní vchodové dveře, plastová okna s bambusovými žaluziemi, vytápění – vlastní plynový kotel a bojler na ohřev teplé vody, v celém bytě plovoucí podlaha, pouze v koupelně a na WC dlažba, osvětlení.

Kuchyně – kuch.linka, digestoř, elektrický sporák i trouba, lednice s mrazákem, stůl, 2x židle,
obývací pokoj – poličky, rozkládací sedačka, komoda, příčka oddělující spací kout,
předsíň – bezpečnostní dveře, trojdílná šatní skříň, úložný prostor nad skříní, botník,
koupelna – umyvadlo, vana, skříňka, zrcadlo, otopný žebřík,
WC – plynový kotel BAXI, bojler na ohřev vody, pračka, poličky,
komora (sklep) – regály na míru.

Veškeré vybavení je součástí kupní ceny.

V domě společná kočárkárna a TV anténa.

Bezplatný převod bytu do osobního vlastnictví je možný v roce 2028.

Měsíční poplatky družstvu 1.098,-Kč (z toho fond oprav 322,-Kč) + záloha na elektřinu 800,-Kč, plyn 1.000,-Kč, internet Vodafone 600,-Kč. Celkové měsíční náklady jsou velmi nízké 3.500,-Kč.

Byt je velice dobře situovaný: výborná dostupnost CT parku, letiště, dálnice D1, 13 min trolejbusem na hlavní nádraží v Brně.

Ideální nejen k bydlení, ale i na investici (v současné době je byt pronajatý za částku 14.000,-Kč/měsíc + energie a služby).

Makléř

Máte zájem o tento byt?

Tímto, v souladu s nařízením Evropského parlamentu a Rady (EU) 2016/679, v platném znění, prohlašuji, že mi je alespoň 16 let a uděluji tak svůj souhlas se zpracováním zadaných údajů (jméno, telefon, e-mail, ip adresa) společnosti B3 Technology, s.r.o., IČ: 07330600, se sídlem Novostavby 126/23, 435 11 Lom (správce dat), za účelem předání dotazu z tohoto formuláře Vámi vybranému inzerentovi a zpětného kontaktování mé osoby. Osobní údaje bude správce zpracovávat manuálně i automaticky přímo prostřednictvím svých zaměstnanců. Informace předané tímto formulářem budou uloženy v databázi správce maximálně po dobu 10 let. Odvolání souhlasu s uložením a zpracováním poskytnutých dat lze e-mailem na info@origo-reality.cz. V případě podezření na neoprávněné použití Vámi poskytnutých údajů máte právo předat podnět k šetření Úřadu pro ochranu osobních údajů. Více informací
Chystáte se prodat nemovitost?
Pomůžeme Vám!
Theleadway banner

Přihlášení k odběru

Nenechte si ujít nejnovější nabídky prodeje bytů 1+kk v Brně.