Prodej bytu 1+1, Praha - Žižkov, Baranova, 49 m2

Baranova, Praha, Žižkov

8 550 000 Kč
/za nemovitost
Hypotéka od 38 213 Kč /měs. Chci hypotéku

Parametry bytu

AdresaBaranova, Praha, Žižkov
StavbaCihlová
Stav objektuDobrý
Patro7.
VybavenoNe
Lokalita objektuKlidná část obce
VlastnictvíOsobní
Užitná plocha49 m2
Třída energetické náročnostiG - Mimořádně nehospodárná
Elektřina230V
OdpadVeřejná kanalizace
KomunikaceAsfaltová
TelekomunikaceInternet
DopravaSilnice, MHD
VodaVodovod
Topné tělesoRadiátory
Zdroj topeníÚstřední dálkové
Zdroj teplé vodyCentrální dálkový ohřev
Sklep
Terasa
Výtah
Bezbarierový přístup

Origo partneři v Praze 3

Stěhovací služby

Výkup a prodej starého nábytku

Popis

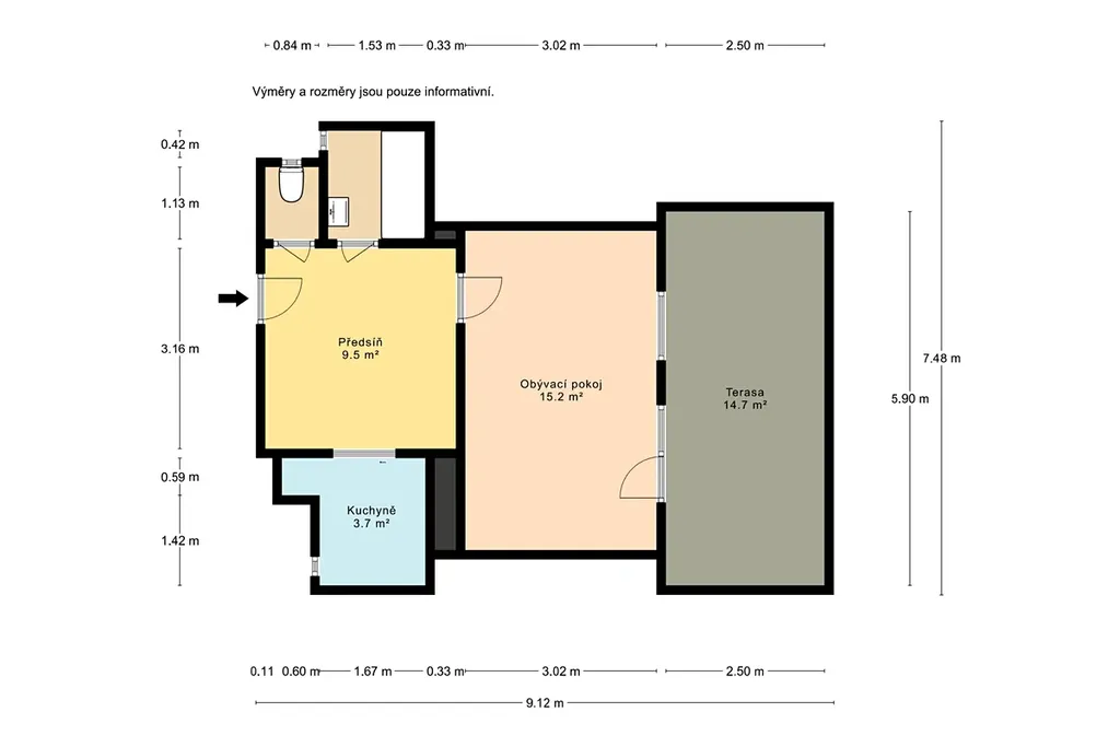
Atypický střešní byt 1+1 s vlastní terasou a s užitnou plochou 49 m2 + sklepní kojí se nachází v klidné lokalitě na pomezí Žižkova a Vinohrad (ul. Baranova) v cihlovém domě s výtahem.

Byt je vkusně vybaven nábytkem na míru s velkorysým úložným prostorem pro všechny potřebné věci.
Po vstupu do bytu se ocitnete v chodbě, která poskytuje zmíněný úložný prostor prostřednictvím vestavných skříní, které jsou díky vysokým stropům doopravdy velkorysé.
Součástí je také výklopný pracovní stůl, který promění chodbu ve Vaši pracovnu.

Dále zde naleznete vchod do kuchyňského koutu s kamennou kuchyňskou deskou. Lednice, indukční deska, elektrická trouba, digestoř, myčka a další úložné prostory.

Z chodby se dostanete do koupelny s velkou masážní vanou, která vybízí k relaxaci po těžkém dnu. Je zde možnost připojení pračky a sušičky. Nechybí samostatné WC


Obývací pokoj je vybaven vysokou vestavnou skříní, je zde vchod na terasu s orientací na jihozápad a výhledem na Žižkovskou věž. Hlavně v letních měsících je krásný výhled na západ slunce a možnost posedět na terase a relaxovat po pracovním dnu.

Příčka mezi vstupní halou a obývacím pokojem není nosná. Tedy je zde možnost úpravy dispozice bytu.

Byt se nachází v 7 NP, je opatřen bezpečnostními dveřmi. Připojení na internet je samozřejmostí. Před domem modré parkovací zóny, lze si posléze zřídit parkovací kartu.

Kompletní občanská vybavenost. Restaurace, kavárny v docházkové vzdálenosti. Obchodní centrum Flora cca 2 minuty pěšky. Stejně vzdáleny jsou zastávky tramvaje či metra. Nám. Jiřího z Poděbrad 5 minut pěšky.


Prohlídky dle domluvy s makléřem.

S financováním kupní ceny rádi pomůžeme.

Energetický štítek G z důvodu nedodání, bude doplněno.

Makléř

Máte zájem o tento byt?

Tímto, v souladu s nařízením Evropského parlamentu a Rady (EU) 2016/679, v platném znění, prohlašuji, že mi je alespoň 16 let a uděluji tak svůj souhlas se zpracováním zadaných údajů (jméno, telefon, e-mail, ip adresa) společnosti B3 Technology, s.r.o., IČ: 07330600, se sídlem Novostavby 126/23, 435 11 Lom (správce dat), za účelem předání dotazu z tohoto formuláře Vámi vybranému inzerentovi a zpětného kontaktování mé osoby. Osobní údaje bude správce zpracovávat manuálně i automaticky přímo prostřednictvím svých zaměstnanců. Informace předané tímto formulářem budou uloženy v databázi správce maximálně po dobu 10 let. Odvolání souhlasu s uložením a zpracováním poskytnutých dat lze e-mailem na info@origo-reality.cz. V případě podezření na neoprávněné použití Vámi poskytnutých údajů máte právo předat podnět k šetření Úřadu pro ochranu osobních údajů. Více informací
Chystáte se prodat nemovitost?
Pomůžeme Vám!

Přihlášení k odběru

Nenechte si ujít nejnovější nabídky prodeje bytů 1+1 v Praze 3.