Pronájem bytu 2+kk, Praha - Ruzyně, Stočesova, 51 m2

Stočesova, Praha, Ruzyně

24 000 Kč
/za měsíc
+ poplatky
Získejte výhodnou HYPOTÉKU Chci hypotéku

Parametry bytu

Náklady na bydlení5 800
AdresaStočesova, Praha, Ruzyně
IDRF 0575
StavbaCihlová
Stav objektuNovostavba
Patro4. z 5
VybavenoNe
Lokalita objektuOkraj obce
VlastnictvíOsobní
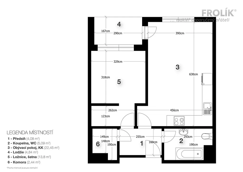
Užitná plocha51 m2
Třída energetické náročnostiB - Velmi úsporná
Ukazatel energetické náročnosti70 kWh/m2 za rok
Elektřina230V
OdpadVeřejná kanalizace
KomunikaceAsfaltová
TelekomunikaceTelefon, Internet, Kabelová televize, Kabelové rozvody
DopravaVlak, Dálnice, Silnice, MHD, Autobus
VodaVodovod
Topné tělesoRadiátory
Zdroj topeníCentrální dálkové
Garáž
Sklep
Lodžie
Výtah

Origo partneři v Praze 6

Stěhovací služby

Výkup a prodej starého nábytku

Popis

Bydlení v novém je vždycky fajn! Takže jestli si tu novotu chcete užít, přijďte se co nejdříve podívat na tento fajnový byt 2+kk s lodžií, garážovým stáním a sklepem, v projektu "Byty u Šárky", v ulici Stočesova, v Praze 6 - Ruzyni. Najdete ho ve 3. patře novostavby (s výtahem) z roku 2025.

Byt má výměru cca 51 m2 + cca 5 m2 lodžii. Je celý otočený na východní stranu, do areálu. Okna jsou plastová s trojskly, takže krásně zvukově těsní. Navíc mají i mikroventilaci a vnitřní žaluzie. Kuchyňská linka je vybavena vestavěnými spotřebiči - lednice s mrazákem, el. trouba, mikrovlnka, myčka, indukční varná deska, digestoř. V chodbě bytu je komora/šatna a v ložnici je oddělený šatní kout s vlastním světlem.

V domě je i společná kolárna a kočárkárna. Tu už budete mít v ceně. Kousek od domu je venkovní sportoviště, konečná tram, nedaleko je OC Šestka, o kousek níž do Prahy pak koupaliště Džbán a Divoká Šárka.

Garáž a sklep není podmínkou podnájmu, ale pokud si je vezmete, budou dohromady za 1.000 Kč/měs. + služby 136 Kč/měs.

Projekt je postaven jako družstevní bydlení, jedná se tedy o podnájem.

Kromě podnájemného budete platit zálohy na služby 4.736 Kč/měs.. Elektřina bude převedena na Vás. Podnájemné + služby se hradí na 1 měsíc dopředu, jistota je 2x podnájemné, provize 1x podnájemné.

Byt je ihned k dispozici.

PENB třída B.

Makléř

Máte zájem o tento byt?

Tímto, v souladu s nařízením Evropského parlamentu a Rady (EU) 2016/679, v platném znění, prohlašuji, že mi je alespoň 16 let a uděluji tak svůj souhlas se zpracováním zadaných údajů (jméno, telefon, e-mail, ip adresa) společnosti B3 Technology, s.r.o., IČ: 07330600, se sídlem Novostavby 126/23, 435 11 Lom (správce dat), za účelem předání dotazu z tohoto formuláře Vámi vybranému inzerentovi a zpětného kontaktování mé osoby. Osobní údaje bude správce zpracovávat manuálně i automaticky přímo prostřednictvím svých zaměstnanců. Informace předané tímto formulářem budou uloženy v databázi správce maximálně po dobu 10 let. Odvolání souhlasu s uložením a zpracováním poskytnutých dat lze e-mailem na info@origo-reality.cz. V případě podezření na neoprávněné použití Vámi poskytnutých údajů máte právo předat podnět k šetření Úřadu pro ochranu osobních údajů. Více informací
Chystáte se prodat nemovitost?
Pomůžeme Vám!