Prodej pozemku pro bydlení, Štíty, 974 m2 (ID: 1965584)

Štíty, Heroltice

1 095 Kč
/za metr čtvereční
včetně DPH, včetně poplatků, včetně provize, včetně právního servisu
Hypotéka od 5 Kč /měs. Chci hypotéku

Parametry pozemku

AdresaŠtíty, Heroltice
IDDR1P 103R
Plocha pozemku974 m2
Elektřina230V, 400V
VodaMístní zdroj vody

Origo partneři v Štítech

Pojištění a finance

Popis

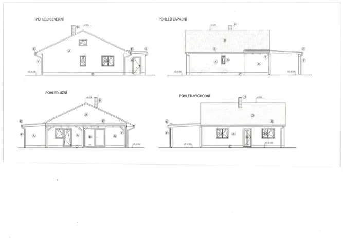
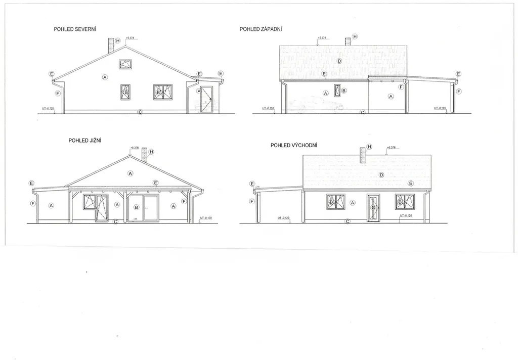
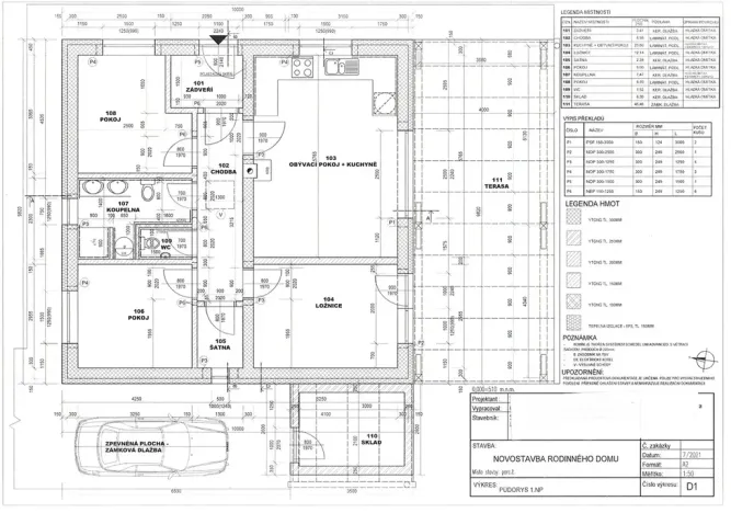
Prodej pozemku pro bydlení, s platným stavebním povolením a vypracovaným projektem přízemního rodinného domu se sedlovou střechou, o dispozici 4+kk s terasou a zpevněnou parkovací plochou pro 2 automobily. Stavbu je možné okamžitě zahájit.

Jedná se o pozemek o celkové rozloze 974 m2 ve tvaru písmene L, delší část o šíři 68 m přiléhá k cestě.
Pozemek sestává ze dvou parcel o výměrách 194 m2 (na KÚ vedená jako zastavěná plocha a nádvoří) a 780 m2 (na KÚ vedená jako trvalý travní porost), z nichž 112 m2, navazujících na stavební parcelu je vyjmuto z půdního fondu.

Pozemek je rovinatý, skýtá krásný výhled do širokého okolí.

Na pozemku je nově zbudovaná přípojka elektřiny a vodovodní přípojka. Plyn a kanalizace v této části obce není, v projektu RD je počítáno s jímkou odpadních vod, pro vytápění s kombinací elektrického kotle a krbu s výměníkem.
Podrobné informace k projektové dokumentaci jsou k dispozici v RK.

Společnost ČEZ plánuje instalaci nového vedení vysokého napětí mezi obcemi Horní Heřmanice a Králíky, které by mělo vést i přes jeden z prodávaných pozemků, nicméně v dostatečné vzdálenosti - respektující ochranné pásmo - od místa, určeného pro výstavbu RD. Umístění nejbližšího sloupu pro vedení VN je plánované ve vzdálenosti 120 m os pozemků. Výkres plánované trasy el. vedení, včetně plánovaného umístění sloupů, je k dispozici v RK.

Město Štíty leží na východním výběžku Orlických hor a současně nedaleko jesenického podhůří. Přímo v části obce Heroltice, ve které se pozemek nachází, je k dispozici restaurace s penzionem, kulturní dům, kostel a menší lyžařský vlek, větší lyžařské středisko Buková Hora - červená Hora/Čenkovice je vzdálené 3 km od Heroltic.
Ve Štítech jsou pak k dispozici další obchody, služby, mateřská a základní škola, informační centrum, skautský oddíl, TJ Sokol a další zájmové kroužky a také Acrobat park Aleše Valenty.

V širším okolí je pak mnoho zajímavých, atraktivních míst, vyhledávaných turisty, cyklisty, i sportovci, lyžařský resort Dolní Morava s bobovou dráhou, Stezkou v oblacích, visutým mostem Sky Bridge 721, atd., je vzdálený přibližně 25 km.

Nemovitost je tedy vhodná pro výstavbu objektu určeného k trvalému bydlení, k rekreaci i k investici - objektu k turistickým pronájmům.

Makléř

Máte zájem o tento pozemek?

Tímto, v souladu s nařízením Evropského parlamentu a Rady (EU) 2016/679, v platném znění, prohlašuji, že mi je alespoň 16 let a uděluji tak svůj souhlas se zpracováním zadaných údajů (jméno, telefon, e-mail, ip adresa) společnosti B3 Technology, s.r.o., IČ: 07330600, se sídlem Novostavby 126/23, 435 11 Lom (správce dat), za účelem předání dotazu z tohoto formuláře Vámi vybranému inzerentovi a zpětného kontaktování mé osoby. Osobní údaje bude správce zpracovávat manuálně i automaticky přímo prostřednictvím svých zaměstnanců. Informace předané tímto formulářem budou uloženy v databázi správce maximálně po dobu 10 let. Odvolání souhlasu s uložením a zpracováním poskytnutých dat lze e-mailem na info@origo-reality.cz. V případě podezření na neoprávněné použití Vámi poskytnutých údajů máte právo předat podnět k šetření Úřadu pro ochranu osobních údajů. Více informací
Chystáte se prodat nemovitost?
Pomůžeme Vám!
Theleadway banner

Přihlášení k odběru

Nenechte si ujít nejnovější nabídky prodeje pozemků pro bydlení v Štítech.