Prodej rodinného domu, Hostivice, Krátká, 135 m2

Krátká, Hostivice

12 000 000 Kč
/za nemovitost
Hypotéka od 53 633 Kč /měs. Chci hypotéku

Parametry domu

AdresaKrátká, Hostivice
IDN00258
StavbaCihlová
Stav objektuDobrý
Druh objektuSamostatný
Lokalita objektuKlidná část obce
Užitná plocha135 m2
Zastavěná plocha131 m2
Plocha pozemku531 m2
Třída energetické náročnostiG - Mimořádně nehospodárná
Elektřina230V
PlynPlynovod
OdpadVeřejná kanalizace
TelekomunikaceInternet
DopravaVlak, Silnice, MHD, Autobus
VodaMístní zdroj vody, Vodovod, Studna

Origo partneři v Hostivici

Pojištění a finance

Popis

Rodinny dům s dispozicí 5+kk v dobrém, udržovaném stavu se nachází v obci Hostivice, okres Praha - západ, jen několik minut autem od hranice Prahy 6.

Dům byl postaven v r. 1960, je vhodný i pro dvojgenerační bydlení. Je umístěný v klidné části rezidenční zástavby. Není v záplavové oblasti.
Užitná plocha domu je 190 m2, pozemek zastavěné části včetně zahrady je celkem 531 m2.

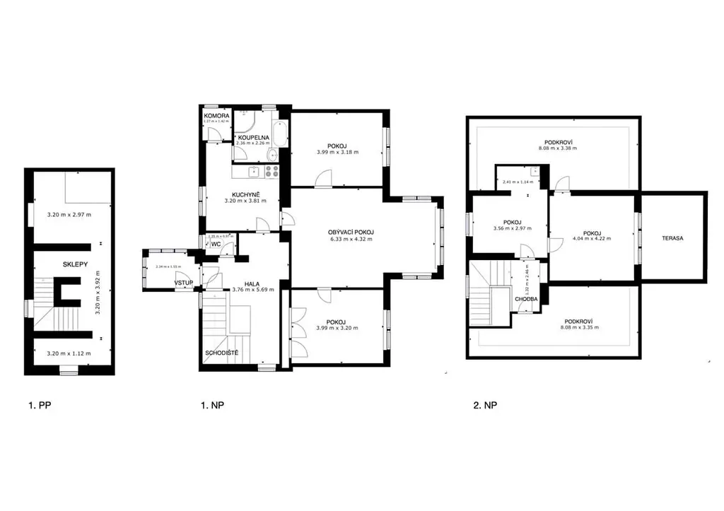
Dispozice:
V přízemí je vstupní chodba, tři pokoje, kuchyně s kuchyňskou linkou, koupelna s vanou, toaleta.
V podkroví je ložnice a pokoj s kuchyňským koutem, dále další dvě části podkroví vhodné pro další vestavbu.
Na podlaze jsou parkety, dlažba, PVC, okna jsou plastová.

V suterénu jsou sklepní místnosti, plynový kotel.

Na zahradě je postavena zděná garáž pro 1 auto.

Kompletní sítě: elektřina, plyn, kanalizace, internet, vlastní voda ze studny.

V okolí obce se nabízí aktivity pro zdravý životní styl, cyklostezky, výlety. Dům má výborné a rychlé spojení do Prahy, na pražský okruh, letiště.
Možnost využití autobusu nebo vlaku.

V obci se nachází kompletní občanská vybavenost, supermarkety atd.

Počet pokojů: 4+2x kuchyně
Zastavěná plocha: 131 m2
Velikost zahrady: 400 m2
Užitná plocha celkem: 190 m2
Sklep: 25 m2
Přízemí: 98 m2
1. patro + podkroví: 34 + 33 m2

Makléř

Máte zájem o tento dům?

Tímto, v souladu s nařízením Evropského parlamentu a Rady (EU) 2016/679, v platném znění, prohlašuji, že mi je alespoň 16 let a uděluji tak svůj souhlas se zpracováním zadaných údajů (jméno, telefon, e-mail, ip adresa) společnosti B3 Technology, s.r.o., IČ: 07330600, se sídlem Novostavby 126/23, 435 11 Lom (správce dat), za účelem předání dotazu z tohoto formuláře Vámi vybranému inzerentovi a zpětného kontaktování mé osoby. Osobní údaje bude správce zpracovávat manuálně i automaticky přímo prostřednictvím svých zaměstnanců. Informace předané tímto formulářem budou uloženy v databázi správce maximálně po dobu 10 let. Odvolání souhlasu s uložením a zpracováním poskytnutých dat lze e-mailem na info@origo-reality.cz. V případě podezření na neoprávněné použití Vámi poskytnutých údajů máte právo předat podnět k šetření Úřadu pro ochranu osobních údajů. Více informací
Chystáte se prodat nemovitost?
Pomůžeme Vám!
Theleadway banner

Přihlášení k odběru

Nenechte si ujít nejnovější nabídky prodeje rodinných domů v Hostivici.