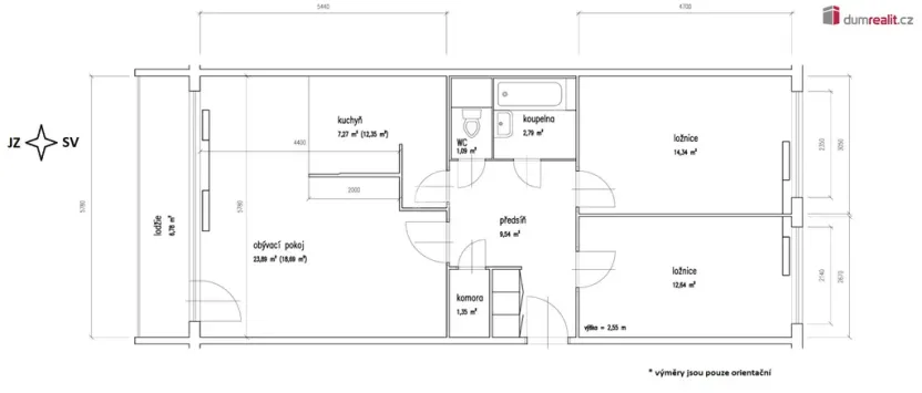
Prodej bytu 3+1, Praha - Stodůlky, Zázvorkova, 82 m2

Zázvorkova, Praha 13, Praha 5, Stodůlky

8 190 000 Kč
/za nemovitost
+popl. 5143
Hypotéka od 36 604 Kč /měs. Chci hypotéku

Parametry bytu

AdresaZázvorkova, Praha 13, Praha 5, Stodůlky
ID655299
StavbaPanelová
Stav objektuDobrý
Patro10. z 12
VybavenoAno
VlastnictvíDružstevní
Užitná plocha82 m2
Podlahová plocha82 m2
Třída energetické náročnostiB - Velmi úsporná
Ukazatel energetické náročnosti73 kWh/m2 za rok
TopeníÚstřední dálkové
Sklep
Lodžie

Origo partneři v Praze 5

Stěhovací služby

Výkup a prodej starého nábytku

Popis

________________________________________
???? Prodej bytu 3+1, 82,5 m², Praha 13 – Stodůlky, Zázvorkova 1997/26
Hledáte prostorný byt pro rodinu, ve skvělé lokalitě Prahy 13, s krásným výhledem, nízkými provozními náklady a okamžitou možností nastěhování? Právě jste ho našli.
Nabízím k prodeji družstevní byt 3+1 o velikosti 82,5 m², který se nachází v 9. patře revitalizovaného panelového domu v žádané lokalitě Stodůlky – Praha 13.
________________________________________
???? Dispozice a stav bytu
Byt má velmi prakticky řešenou dispozici, ideální pro rodinu s dětmi:
• prostorný obývací pokoj
• dvě samostatné ložnice
• kuchyně
• koupelna ve velmi udržovaném stavu s původním jádrem
• samostatné WC
• komora přímo v bytě
• zasklená lodžie
• sklepní kóje
Ložnice jsou orientované na severovýchod s otevřeným výhledem, společné prostory bytu pak do klidného vnitrobloku na jihozápad, díky čemuž je byt světlý, vzdušný a příjemný po celý den.
Byt je ve velmi dobrém a udržovaném stavu, prošel částečnou rekonstrukcí:
• původní bytové jádro
• původní rozvody elektřiny
• plastová okna se žaluziemi
• podlahy: plovoucí PVC, linoleum a dlažba
• velkorysé úložné prostory na chodbě
________________________________________
???? Dům a provoz
Panelový dům je po kompletní revitalizaci, což se pozitivně odráží na:
• nízkých měsíčních nákladech
• dobrém technickém stavu domu (FVE, vlastní kotelna s tepelnými čerpadly)
• kultivovaném společném prostoru
________________________________________
???? Lokalita – Praha 13, Stodůlky
Jedna z nejvyhledávanějších lokalit pro rodiny s dětmi v Praze.
• ???? metro B – Lužiny (výborná dostupnost do centra)
• ???? několik mateřských a základních škol v docházkové vzdálenosti
• ???? nákupní centra, supermarkety, lékárny
• ???? parky a zeleň ideální pro sport i relax (dětská hřiště, cyklostezky)
• ☕ restaurace, kavárny, bistra
• ???? sportovní zařízení, fitness centra, plavecký bazén
Lokalita nabízí kompletní občanskou vybavenost a zároveň dostatek klidu pro rodinné bydlení.
________________________________________
⭐ 3 největší benefity bytu
1. Cena 8.190.000 Kč skvělý poměr ceny a velikosti bytu v rámci Prahy 13
2. Výhled z oken – otevřený, ničím nerušený, ve vysokém patře
3. Lokace – Stodůlky = ideální místo pro rodinu, metro, školy, zeleň
Další plusy, které stojí za zmínku:
• 9. patro = světlo, klid a soukromí
• zasklená lodžie + sklep + komora
• byt volný ihned k nastěhování
• nízké provozní náklady
• praktická dispozice 3+1, 82,5 m²
________________________________________
???? Vlastnictví a financování
• družstevní vlastnictví
• aktuálně bez možnosti převodu do osobního vlastnictví
• koupě možná úvěrem – s financováním vám velmi ráda pomohu
________________________________________
________________________________________
???? Neváhejte mě kontaktovat pro více informací nebo domluvení prohlídky. Ev. číslo: 654685.

Makléř

Máte zájem o tento byt?

Tímto, v souladu s nařízením Evropského parlamentu a Rady (EU) 2016/679, v platném znění, prohlašuji, že mi je alespoň 16 let a uděluji tak svůj souhlas se zpracováním zadaných údajů (jméno, telefon, e-mail, ip adresa) společnosti B3 Technology, s.r.o., IČ: 07330600, se sídlem Novostavby 126/23, 435 11 Lom (správce dat), za účelem předání dotazu z tohoto formuláře Vámi vybranému inzerentovi a zpětného kontaktování mé osoby. Osobní údaje bude správce zpracovávat manuálně i automaticky přímo prostřednictvím svých zaměstnanců. Informace předané tímto formulářem budou uloženy v databázi správce maximálně po dobu 10 let. Odvolání souhlasu s uložením a zpracováním poskytnutých dat lze e-mailem na info@origo-reality.cz. V případě podezření na neoprávněné použití Vámi poskytnutých údajů máte právo předat podnět k šetření Úřadu pro ochranu osobních údajů. Více informací
Chystáte se prodat nemovitost?
Pomůžeme Vám!

Přihlášení k odběru

Nenechte si ujít nejnovější nabídky prodeje bytů 3+1 v Praze 5.