Prodej bytu 2+kk, Golem, Albánie, 54 m2 (ID: 1964055)

Golem

75 330 €
/za nemovitost

Parametry bytu

AdresaGolem
IDF23109
StavbaSmíšená
Stav objektuVe výstavbě
Patro2. z 6
VybavenoČástečně
Lokalita objektuCentrum obce
VlastnictvíOsobní
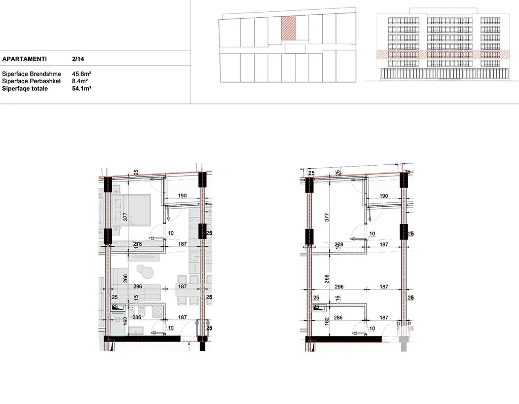
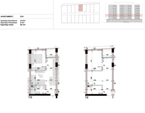
Užitná plocha54 m2
Podlahová plocha54 m2
Elektřina230V
OdpadVeřejná kanalizace
TopeníLokální elektrické
TelekomunikaceTelefon, Internet
DopravaSilnice, MHD, Autobus
VodaVodovod
Balkon
Výtah

Origo partneři

Popis

Moje nemovitost u moře je stabilní česká společnost (české s.r.o.) se stovky spokojenými klienty. Nabízíme kompletní servis nejen při koupi nemovitosti, ale i po převodu vlastnictví. Postaráme se o veškerou dokumentaci, právní podporu, překlady a převody energií, a navíc zajistíme správu nemovitosti, pronájem, úklid, inzerci, rekonstrukce a dovybavení. Díky našemu poprodejnímu servisu máte jistotu, že vaše investice bude vždy v dobrých rukou. Jsme přímo v destinaci, připraveni kdykoliv pomoci.

Nabízíme k prodeji apartmán 2+kk, o ploše 54.1 m2, v nové budově, který se nachází přibližně 200 m od moře, v oblíbené lokalitě Golem. Apartmán je ve výstavbě - s dokončením na klíč.

Představujeme nový moderní rezidenční projekt v oblíbené lokalitě Golem, který zaujme na první pohled svou architekturou, nadčasovým designem a důrazem na kvalitu. Budova je navržena architektem s cílem propojit moderní estetiku, funkčnost a komfort středomořského bydlení.

Rezidence se nachází pouhých 200 m od pobřeží a nabízí rychlý přístup ke všemu, co je potřeba pro pohodlný každodenní život – supermarkety, služby, bary i restaurace jsou v bezprostředním okolí.

Projekt je realizován v nadstandardním provedení s využitím vysoce kvalitních materiálů a moderních stavebních technologií. Díky tomu je ideální volbou nejen pro vlastní bydlení, ale také jako stabilní investice s jistým výnosem v jedné z nejžádanějších oblastí albánského pobřeží.

Klíčové výhody projektu:
- Atraktivní lokalita 200 m od moře
- Moderní architektura navržená zkušeným architektem
- Nadstandardní provedení a vysoká kvalita prací
- Vhodné pro bydlení i investici
- Plánované dokončení v roce 2028
- Možnost splátkového kalendáře během výstavby
- Silná poptávka po pronájmech v oblasti

Hledáte moderní projekt u moře s dlouhodobým potenciálem růstu hodnoty? Kontaktujte nás pro více informací, půdorysy a možnosti vstupu do projektu.

Makléř

Máte zájem o tento byt?

Tímto, v souladu s nařízením Evropského parlamentu a Rady (EU) 2016/679, v platném znění, prohlašuji, že mi je alespoň 16 let a uděluji tak svůj souhlas se zpracováním zadaných údajů (jméno, telefon, e-mail, ip adresa) společnosti B3 Technology, s.r.o., IČ: 07330600, se sídlem Novostavby 126/23, 435 11 Lom (správce dat), za účelem předání dotazu z tohoto formuláře Vámi vybranému inzerentovi a zpětného kontaktování mé osoby. Osobní údaje bude správce zpracovávat manuálně i automaticky přímo prostřednictvím svých zaměstnanců. Informace předané tímto formulářem budou uloženy v databázi správce maximálně po dobu 10 let. Odvolání souhlasu s uložením a zpracováním poskytnutých dat lze e-mailem na info@origo-reality.cz. V případě podezření na neoprávněné použití Vámi poskytnutých údajů máte právo předat podnět k šetření Úřadu pro ochranu osobních údajů. Více informací
Chystáte se prodat nemovitost?
Pomůžeme Vám!

Přihlášení k odběru

Nenechte si ujít nejnovější nabídky prodeje bytů 2+kk.