Prodej bytu 4+kk, Vodice, Chorvatsko, 192 m2

Vodice

751 452 €
/za nemovitost

Parametry bytu

AdresaVodice
IDF23581
StavbaCihlová
Stav objektuNovostavba
Patro3. z 3
VybavenoČástečně
Lokalita objektuKlidná část obce
VlastnictvíOsobní
Užitná plocha192 m2
Podlahová plocha264 m2
Elektřina230V
OdpadVeřejná kanalizace, ČOV pro celý objekt
TopeníLokální elektrické, Podlahové
TelekomunikaceInternet
DopravaDálnice, Silnice, Autobus
VodaVodovod
Balkon
Garáž
Terasa
Výtah
Parkování

Origo partneři

Popis

Ve druhé řadě od moře, přímo u krásné oblázkové pláže, nabízíme nový dvoupodlažní luxusní apartmán s prostornou střešní terasou v jedné z nejatraktivnějších částí Srimy.
Rezidenční budova se skládá z pouhých osmi nadstandardních jednotek s výhledem na moře a byla postavena podle aktuálních stavebních trendů s důrazem na moderní design, kvalitní materiály a komfortní bydlení. Apartmány jsou připraveny k okamžitému nastěhování.

Celý objekt nabízí klimatizaci ve všech místnostech s funkcí vytápění i chlazení, koupelny s elektrickým podlahovým vytápěním, bezpečnostní vstupní dveře, kvalitní stolařské prvky a moderní keramiku. Lokalita spojuje bezprostřední blízkost pláže s dostupností centra, které je vzdáleno pouhých 600 metrů.

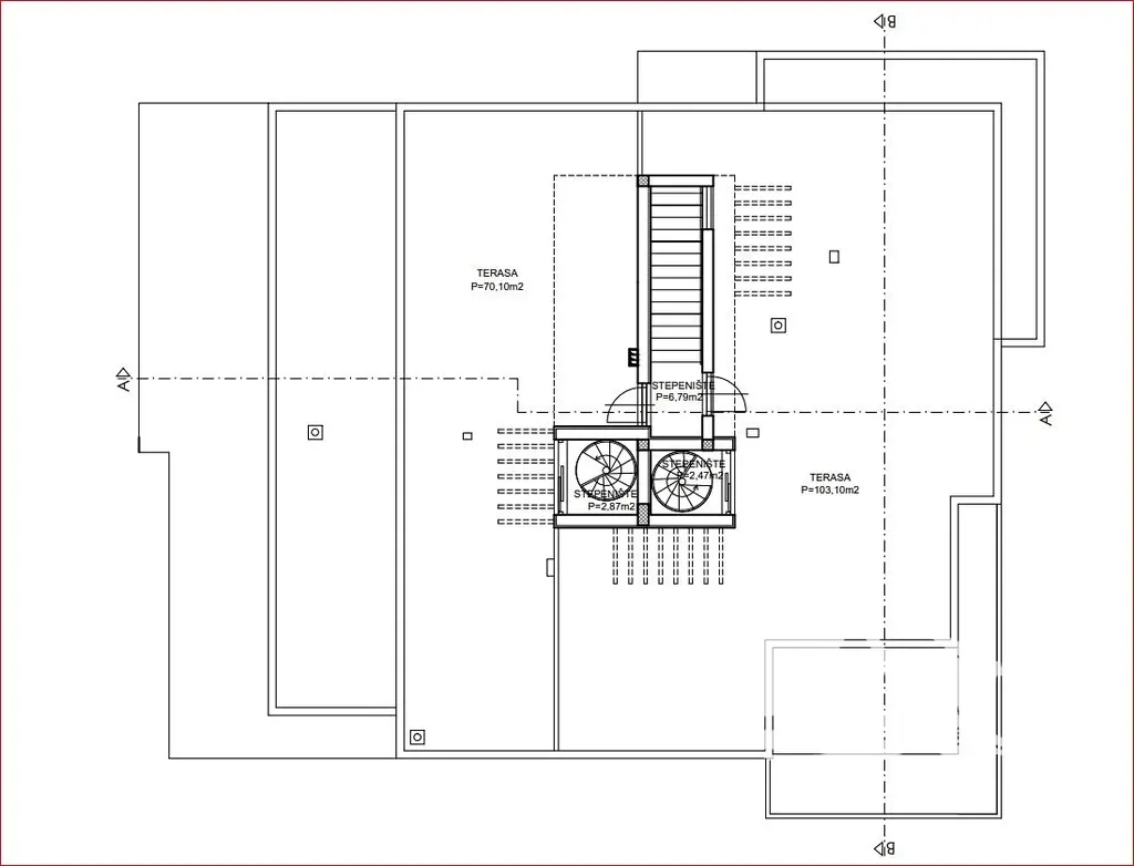
Apartmán S7 se nachází ve 2. patře, je orientovaný na jih a disponuje užitnou plochou 192,68 m², respektive 264,51 m² brutto. Dispozice zahrnuje tři ložnice, chodbu, dvě koupelny, samostatné WC a velkorysý obývací prostor propojený s kuchyní a jídelnou. Z obytné části je vstup na terasu o velikosti 42,64 m². Vnitřní schodiště vede na impozantní střešní terasu o ploše 105 m² s otevřeným výhledem na moře a okolní ostrovy. K apartmánu náleží jedno parkovací místo.

K dispozici je také apartmán S8, rovněž ve 2. patře, orientovaný na východ, s užitnou plochou 170,34 m². Nabízí tři ložnice, dvě koupelny, samostatné WC a prostorný obývací pokoj s kuchyní a jídelnou. Terasa o velikosti 24,46 m² navazuje na obytný prostor a schodiště vede na střešní terasu o ploše 103,10 m² s panoramatickým výhledem na moře. K jednotce náleží jedno parkovací místo. Cena činí 680 000 eur.

Kupující je osvobozen od 3% daně z nabytí nemovitosti.

Srima je vyhledávané přímořské letovisko známé svou upravenou pláží, klidnou atmosférou a výbornou dostupností do Vodic i Šibeniku. Oblast nabízí kompletní občanskou vybavenost, restaurace, kavárny i sportovní vyžití. Díky své poloze a omezené nabídce novostaveb v první a druhé linii u moře představují tyto apartmány stabilní investici s vysokým potenciálem krátkodobého pronájmu i dlouhodobého zhodnocení.

Tato nabídka spojuje luxus, polohu a investiční jistotu v jedné z nejžádanějších částí dalmatského pobřeží.

Všechny údaje uvedené v tomto inzerátu slouží pouze k informačním účelům. Před jakýmkoli rozhodnutím nebo jednáním založeným na těchto informacích je nutné všechny údaje ověřit v naší realitní kanceláři.

Makléř

Máte zájem o tento byt?

Tímto, v souladu s nařízením Evropského parlamentu a Rady (EU) 2016/679, v platném znění, prohlašuji, že mi je alespoň 16 let a uděluji tak svůj souhlas se zpracováním zadaných údajů (jméno, telefon, e-mail, ip adresa) společnosti B3 Technology, s.r.o., IČ: 07330600, se sídlem Novostavby 126/23, 435 11 Lom (správce dat), za účelem předání dotazu z tohoto formuláře Vámi vybranému inzerentovi a zpětného kontaktování mé osoby. Osobní údaje bude správce zpracovávat manuálně i automaticky přímo prostřednictvím svých zaměstnanců. Informace předané tímto formulářem budou uloženy v databázi správce maximálně po dobu 10 let. Odvolání souhlasu s uložením a zpracováním poskytnutých dat lze e-mailem na info@origo-reality.cz. V případě podezření na neoprávněné použití Vámi poskytnutých údajů máte právo předat podnět k šetření Úřadu pro ochranu osobních údajů. Více informací
Chystáte se prodat nemovitost?
Pomůžeme Vám!