Prodej bytu 4+kk, Vodice, Chorvatsko, 170 m2

Vodice

680 000 €
/za nemovitost

Parametry bytu

AdresaVodice
IDF23584
StavbaCihlová
Stav objektuNovostavba
Patro3. z 3
VybavenoČástečně
Lokalita objektuKlidná část obce
VlastnictvíOsobní
Užitná plocha170 m2
Podlahová plocha236 m2
Elektřina230V
OdpadVeřejná kanalizace, ČOV pro celý objekt
TopeníLokální elektrické, Podlahové
TelekomunikaceInternet
DopravaDálnice, Silnice, Autobus
VodaVodovod
Balkon
Garáž
Terasa
Výtah
Parkování

Origo partneři

Popis

Nabízíme nový luxusní apartmán ve výjimečné lokalitě pouhých 100 metrů od pláže, ve druhé řadě od moře. Nemovitost je součástí moderní rezidenční budovy s osmi nadstandardními jednotkami, která nabízí otevřený výhled na moře a okolní ostrovy. Spojení atraktivní polohy, velkorysého prostoru a vysokého standardu provedení dělá z této nabídky investici, která má smysl dnes i do budoucna.

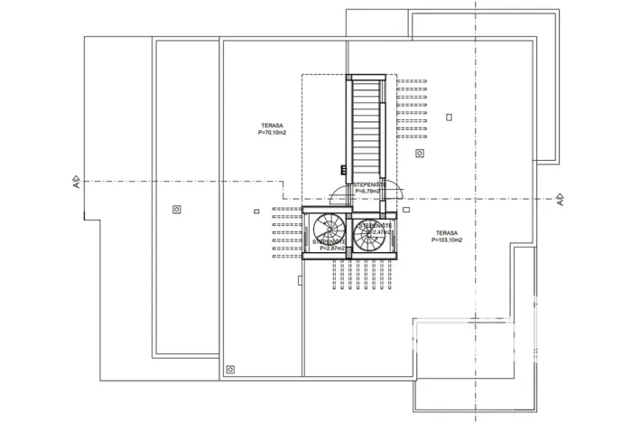
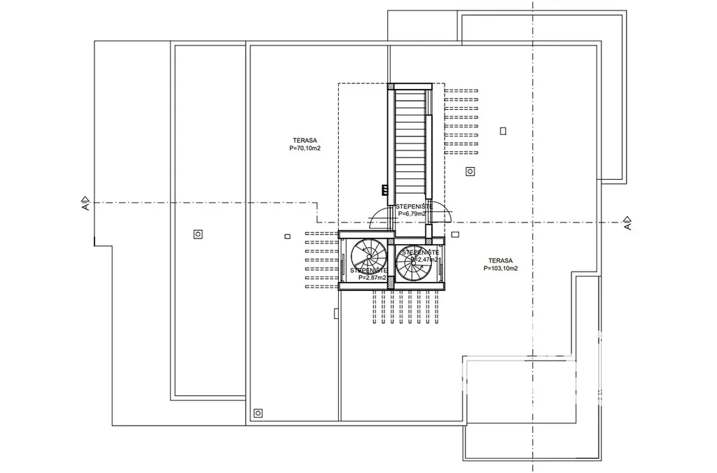
Apartmán S8 se nachází ve druhém patře a je orientován na východ. Užitná plocha činí 170,34 m², brutto plocha 236,75 m². Dispozice je navržena s důrazem na komfort a soukromí. Součástí jsou tři prostorné ložnice, dvě moderní koupelny s elektrickým podlahovým vytápěním a samostatná toaleta. Dominantou interiéru je otevřený obývací prostor propojený s jídelnou a plně vybavenou kuchyní, který přirozeně navazuje na terasu o ploše 24,46 m².

Vnitřní schodiště vede na krovní terasu o rozloze 103,10 m² s otevřeným panoramatickým výhledem na moře a ostrovy. Tento prostor nabízí skutečnou přidanou hodnotu nemovitosti a vytváří ideální místo pro relaxaci, grilování, opalování nebo soukromé večery pod širým nebem. K apartmánu náleží jedno parkovací místo zahrnuté v kupní ceně.

Budova byla postavena podle aktuálních stavebních trendů s důrazem na kvalitu a dlouhou životnost. Všechny byty jsou klimatizované s funkcí vytápění i chlazení, vybavené bezpečnostními protipožárními dveřmi, kvalitní keramikou a moderními materiály. Objekt je připraven k okamžitému nastěhování.

Lokalita nabízí nejen bezprostřední blízkost oblázkové pláže, ale i pohodlnou dostupnost centra vzdáleného přibližně 600 metrů, kde se nachází restaurace, kavárny, obchody a kompletní občanská vybavenost.

Kupující je osvobozen od platby 3% daně z převodu nemovitosti, což dále zvyšuje atraktivitu této nabídky. Díky své poloze a dispozici je apartmán ideální pro vlastní rekreaci i jako prémiová investice s vysokým potenciálem turistického pronájmu.

Všechny údaje uvedené v tomto inzerátu slouží pouze k informačním účelům. Před jakýmkoli rozhodnutím nebo jednáním založeným na těchto informacích je nutné všechny údaje ověřit v naší realitní kanceláři.

Makléř

Máte zájem o tento byt?

Tímto, v souladu s nařízením Evropského parlamentu a Rady (EU) 2016/679, v platném znění, prohlašuji, že mi je alespoň 16 let a uděluji tak svůj souhlas se zpracováním zadaných údajů (jméno, telefon, e-mail, ip adresa) společnosti B3 Technology, s.r.o., IČ: 07330600, se sídlem Novostavby 126/23, 435 11 Lom (správce dat), za účelem předání dotazu z tohoto formuláře Vámi vybranému inzerentovi a zpětného kontaktování mé osoby. Osobní údaje bude správce zpracovávat manuálně i automaticky přímo prostřednictvím svých zaměstnanců. Informace předané tímto formulářem budou uloženy v databázi správce maximálně po dobu 10 let. Odvolání souhlasu s uložením a zpracováním poskytnutých dat lze e-mailem na info@origo-reality.cz. V případě podezření na neoprávněné použití Vámi poskytnutých údajů máte právo předat podnět k šetření Úřadu pro ochranu osobních údajů. Více informací
Chystáte se prodat nemovitost?
Pomůžeme Vám!