Pronájem bytu 2+kk, Kladno, Dr. Vrbenského, 48 m2

Dr. Vrbenského, Kladno

18 000 Kč
/za měsíc
+ služby 3.310 Kč
Získejte výhodnou HYPOTÉKU Chci hypotéku

Parametry bytu

AdresaDr. Vrbenského, Kladno
ID0201-NP03345
StavbaCihlová
Stav objektuPo rekonstrukci
Patro2. z 2
VybavenoNe
Lokalita objektuCentrum obce
VlastnictvíOsobní
Užitná plocha48 m2
Zastavěná plocha96 m2
Podlahová plocha67 m2
Třída energetické náročnostiG - Mimořádně nehospodárná
PlynPlynovod
OdpadVeřejná kanalizace
Terasa

Origo partneři v Kladně

Popis

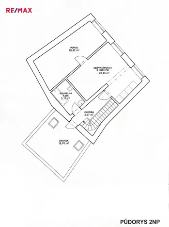
Exkluzivně nabízíme elegantní byt o dispozici 2+1 o velikosti 48 m² s terasou o rozloze téměř 19 m², který se nachází ve 2. nadzemním podlaží řadového rodinného domu po rekonstrukci v samém centru Kladna, v blízkosti náměstí Starosty Pavla, autobusového nádraží a supermarketu Lidl.

Byt má dva samostatné pokoje, novou moderní kuchyňskou linku s vestavěnými spotřebiči a koupelnu s toaletou. Dominantou bytu je klidná terasa, ideální pro odpočinek, relax nebo posezení s přáteli. Dům se nachází v klidné lokalitě s možností vyhrazeného parkovacího místa přímo před domem. V okolí je kompletní občanská vybavenost – obchody, služby, restaurace, kavárny, parky, školy i zdravotní středisko. Výborná dopravní dostupnost zajišťuje rychlé spojení do Prahy i okolních měst. Tento byt je ideální volbou pro ty, kteří hledají moderní a pohodlné bydlení v centru města s možností odpočinku na vlastní terase.

V případě zájmu o více informací neváhejte kontaktovat makléře nabídky.

Makléř

Máte zájem o tento byt?

Tímto, v souladu s nařízením Evropského parlamentu a Rady (EU) 2016/679, v platném znění, prohlašuji, že mi je alespoň 16 let a uděluji tak svůj souhlas se zpracováním zadaných údajů (jméno, telefon, e-mail, ip adresa) společnosti B3 Technology, s.r.o., IČ: 07330600, se sídlem Novostavby 126/23, 435 11 Lom (správce dat), za účelem předání dotazu z tohoto formuláře Vámi vybranému inzerentovi a zpětného kontaktování mé osoby. Osobní údaje bude správce zpracovávat manuálně i automaticky přímo prostřednictvím svých zaměstnanců. Informace předané tímto formulářem budou uloženy v databázi správce maximálně po dobu 10 let. Odvolání souhlasu s uložením a zpracováním poskytnutých dat lze e-mailem na info@origo-reality.cz. V případě podezření na neoprávněné použití Vámi poskytnutých údajů máte právo předat podnět k šetření Úřadu pro ochranu osobních údajů. Více informací
Chystáte se prodat nemovitost?
Pomůžeme Vám!

Přihlášení k odběru

Nenechte si ujít nejnovější nabídky pronájmu bytů 2+kk v Kladně.