Pronájem bytu 2+1, Praha - Záběhlice, Jasmínová, 57 m2

Jasmínová, Záběhlice - Praha 10

20 000 Kč
/za měsíc
vratná jistota, náklady na bydlení 5 200 Kč, poplatek za podnájem
Získejte výhodnou HYPOTÉKU Chci hypotéku

Parametry bytu

AdresaJasmínová, Záběhlice - Praha 10
IDN7274
StavbaPanelová
Stav objektuVelmi dobrý
Patro2. z 8
VybavenoNe
Typ objektuPatrový
Lokalita objektuKlidná část obce
VlastnictvíOsobní
Užitná plocha57 m2
Podlahová plocha57 m2
Třída energetické náročnostiG - Mimořádně nehospodárná
Elektřina230V
TopeníÚstřední dálkové
DopravaSilnice, MHD, Autobus
Balkon
Sklep
Výtah

Origo partneři v Praze 10

Stěhovací služby

Výkup a prodej starého nábytku

Popis

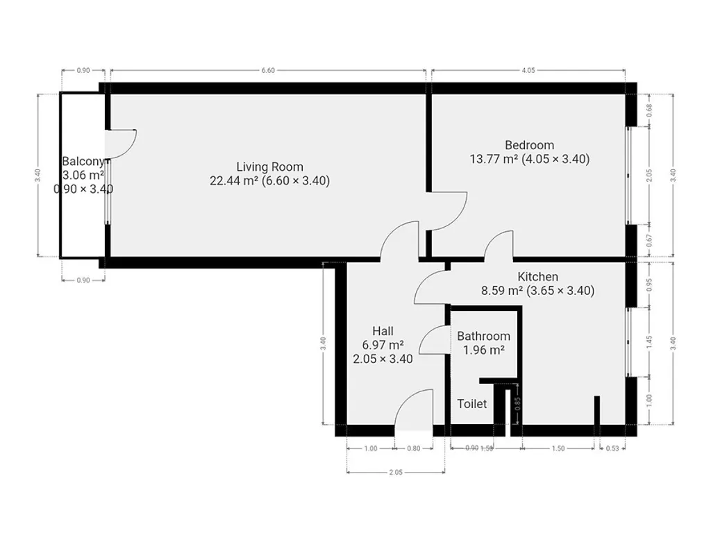
Nabízíme vám k dlouhodobému podnájmu příjemně prosvětlený byt o dispozici 2+1 a celkové výměře 56 m², situovaný v klidné a žádané lokalitě pražských Záběhlic. Byt se nachází v přízemí pečlivě udržovaného panelového domu s výtahem a jeho velkou předností je přilehlý balkon spolu s praktickou sklepní kójí pro uložení sezónních věcí.

Interiér je nabízen jako částečně vybavený, což vám dává ideální prostor pro zařízení domova přesně podle vlastního vkusu a potřeb. Kuchyně disponuje veškerým nezbytným zázemím včetně lednice s mrazákem, elektrické trouby, sporáku a digestoře, přičemž nechybí ani prostor pro útulný jídelní kout. Dispozice dále zahrnuje dva samostatné neprůchozí pokoje, které nabízejí variabilní využití jako ložnici, obývací pokoj nebo klidnou pracovnu. Koupelna je osazena sprchovým koutem, umyvadlem i pračkou, zatímco toaleta je pro maximální komfort řešena samostatně.

Okolí domu vyniká kompletní občanskou vybaveností, díky které máte vše důležité doslova na dosah ruky. Pár minut chůze od vchodu najdete supermarkety Tesco a Penny, poštu, lékárnu i kvalitní lékařskou péči. Volný čas můžete trávit v blízkém parku Meandry Botiče, který je oázou klidu v městské zástavbě, nebo využít širokou nabídku místních sportovišť a restaurací. Skvělou dopravní dostupnost do ostatních částí Prahy zajišťují frekventované zastávky autobusů a tramvají v bezprostřední blízkosti domu.

Byt je volný k nastěhování ihned.

Energetická třída: G (průkaz nedodán)

Makléř

Máte zájem o tento byt?

Tímto, v souladu s nařízením Evropského parlamentu a Rady (EU) 2016/679, v platném znění, prohlašuji, že mi je alespoň 16 let a uděluji tak svůj souhlas se zpracováním zadaných údajů (jméno, telefon, e-mail, ip adresa) společnosti B3 Technology, s.r.o., IČ: 07330600, se sídlem Novostavby 126/23, 435 11 Lom (správce dat), za účelem předání dotazu z tohoto formuláře Vámi vybranému inzerentovi a zpětného kontaktování mé osoby. Osobní údaje bude správce zpracovávat manuálně i automaticky přímo prostřednictvím svých zaměstnanců. Informace předané tímto formulářem budou uloženy v databázi správce maximálně po dobu 10 let. Odvolání souhlasu s uložením a zpracováním poskytnutých dat lze e-mailem na info@origo-reality.cz. V případě podezření na neoprávněné použití Vámi poskytnutých údajů máte právo předat podnět k šetření Úřadu pro ochranu osobních údajů. Více informací
Chystáte se prodat nemovitost?
Pomůžeme Vám!

Přihlášení k odběru

Nenechte si ujít nejnovější nabídky pronájmu bytů 2+1 v Praze 10.