Pronájem bytu 2+kk, Praha - Holešovice, Komunardů, 60 m2

Komunardů, Praha, Holešovice

50 000 Kč
/za měsíc
Získejte výhodnou HYPOTÉKU Chci hypotéku

Parametry bytu

Náklady na bydlení4500
AdresaKomunardů, Praha, Holešovice
StavbaSkeletová
Stav objektuNovostavba
Patro5. z 7
VybavenoČástečně
Lokalita objektuCentrum obce
VlastnictvíOsobní
Užitná plocha60 m2
Podlahová plocha86 m2
Třída energetické náročnostiA - Mimořádně úsporná
Elektřina230V
OdpadVeřejná kanalizace
KomunikaceDlážděná
TelekomunikaceKabelové rozvody
DopravaVlak, Dálnice, Silnice, MHD, Autobus
VodaVodovod
Topné tělesoPodlahové vytápění, Jiné
Zdroj topeníTepelné čerpadlo
Terasa
Výtah
Parkování

Origo partneři v Praze 7

Stěhovací služby

Výkup a prodej starého nábytku

Popis

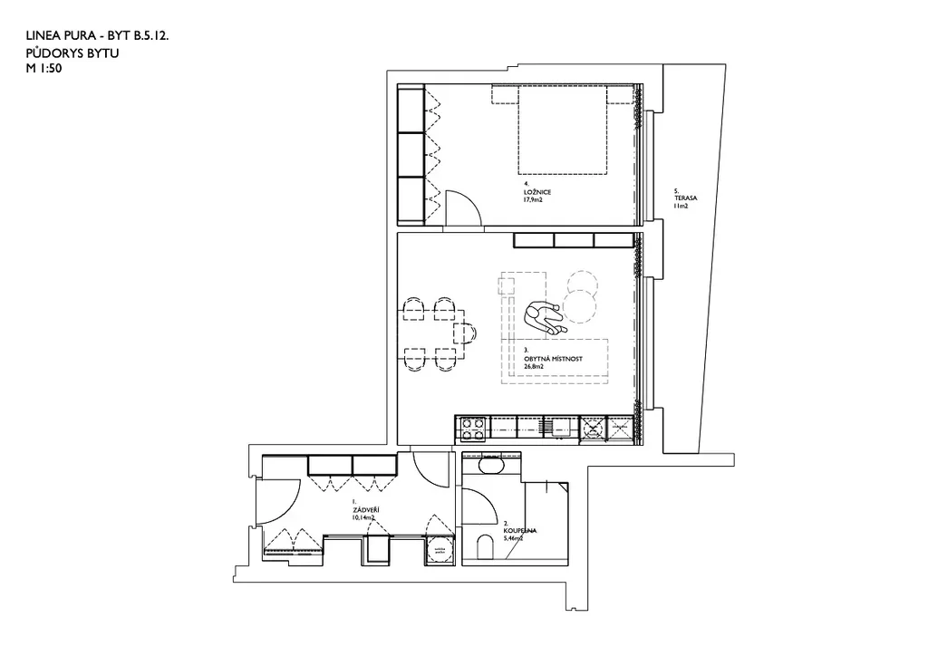
Nabízíme Vám k pronájmu luxusní byt 2+kk, situovaný v prestižním rezidenčním projektu Rezidence Linea Pura, v srdci Dolních Holešovic - mezi ulicemi Komunardů - Jateční – Tusarova.

Byt o užitné ploše 60,3 m² se nachází v 5. podlaží a tvoří jej otevřený
obytný prostor s kuchyní a obývacím pokojem a dále ložnice.
Z obytných částí je přímý vstup na prostornou terasu, která přirozeně rozšiřuje hlavní obytný prostor a plynule propojuje interiér s exteriérem.

• Luxusní novostavba v jedné z nejžádanějších a nejživějších čtvrtí v Praze
• Kompletně vybavená moderní kuchyňská linka
• Velkorysé úložné prostory
• Terasa 11 m2
• Prostorné garážové stání
• Velkoformátová hliníková posuvná francouzská okna
• Moderní systém stropního vytápění a chlazení
• Inteligentní ovládání bytu
• Zvýšené stropy v obytných místnostech se zabudovaným nepřímým LED osvětlením


Interiér bytu odpovídá vysokému standardu celého projektu. Velkoformátová hliníková okna s izolačními trojskly přivádějí do interiéru dostatek denního světla a podtrhují vzdušnost prostoru. Standard zahrnuje třívrstvé dřevěné podlahy, koupelny s obklady a sanitárními prvky značky Porcelanosa a zvýšené stropy s integrovaným nepřímým LED osvětlením.

O celoroční tepelný komfort se stará moderní systém stropního vytápění a chlazení napojený na geotermální zdroj, s možností individuální regulace v jednotlivých místnostech. Součástí standardu jsou rovněž venkovní screenové rolety a inteligentní ovládání vybraných funkcí bytu.

Vstup do Lidlu je přímo z podzemních garáží.

Holešovice patří k nejatraktivnějším pražským rezidenčním lokalitám.
Jsou gurmánským rájem s vysokou koncentrací výběrových kaváren, bister a restaurací.

Charakteristický jsou pro ně Industriální šmrnc a moderní architektura.
Čtvrť je dynamická, mladistvá a neformální, oblíbená u mladých profesionálů, umělců i rodin s dětmi.

Doprava a poloha
• Holešovice jsou velmi dobře napojeny na centrum. Funguje zde metro linky C (Nádraží Holešovice, Vltavská), tramvaje a vlakové nádraží. Snadné napojení na vnitřní městský okruh, metro i tramvaje doplní nově lávka přes volnočasový ostrov Štvanice přímo do Karlína
• Čtvrť je velmi přívětivá pro cyklisty, s cyklostezkami podél Vltavy.

Příroda a rekreace
• Stromovka: Královské obora; ideální místo pro běh, procházky a relaxaci.
• Letenské sady: Jsou hned vedle a nabízejí jedny z nejlepších výhledů na Prahu.
• Vltava: Oblíbené jsou náplavky a cyklostezky u řeky.

Byt je nabízen nezařízený.

Neváhejte si domluvit prohlídku bytu. Těšíme se na Vás!

Makléř

Máte zájem o tento byt?

Tímto, v souladu s nařízením Evropského parlamentu a Rady (EU) 2016/679, v platném znění, prohlašuji, že mi je alespoň 16 let a uděluji tak svůj souhlas se zpracováním zadaných údajů (jméno, telefon, e-mail, ip adresa) společnosti B3 Technology, s.r.o., IČ: 07330600, se sídlem Novostavby 126/23, 435 11 Lom (správce dat), za účelem předání dotazu z tohoto formuláře Vámi vybranému inzerentovi a zpětného kontaktování mé osoby. Osobní údaje bude správce zpracovávat manuálně i automaticky přímo prostřednictvím svých zaměstnanců. Informace předané tímto formulářem budou uloženy v databázi správce maximálně po dobu 10 let. Odvolání souhlasu s uložením a zpracováním poskytnutých dat lze e-mailem na info@origo-reality.cz. V případě podezření na neoprávněné použití Vámi poskytnutých údajů máte právo předat podnět k šetření Úřadu pro ochranu osobních údajů. Více informací
Chystáte se prodat nemovitost?
Pomůžeme Vám!