Pronájem bytu 3+kk, Jablonec nad Nisou, Jezdecká, 79 m2

Jezdecká, Jablonec nad Nisou

23 900 Kč
/za měsíc
měsíční poplatky mimořádně nízké náklady - úsporná novostavba - veškeré moderní technologii
Získejte výhodnou HYPOTÉKU Chci hypotéku

Parametry bytu

AdresaJezdecká, Jablonec nad Nisou
ID115
StavbaSkeletová
Stav objektuNovostavba
VybavenoČástečně
Lokalita objektuKlidná část obce
VlastnictvíDružstevní
Užitná plocha79 m2
Třída energetické náročnostiA - Mimořádně úsporná

Origo partneři v Jablonci nad Nisou

Rekonstrukce

Úklidové služby

Popis

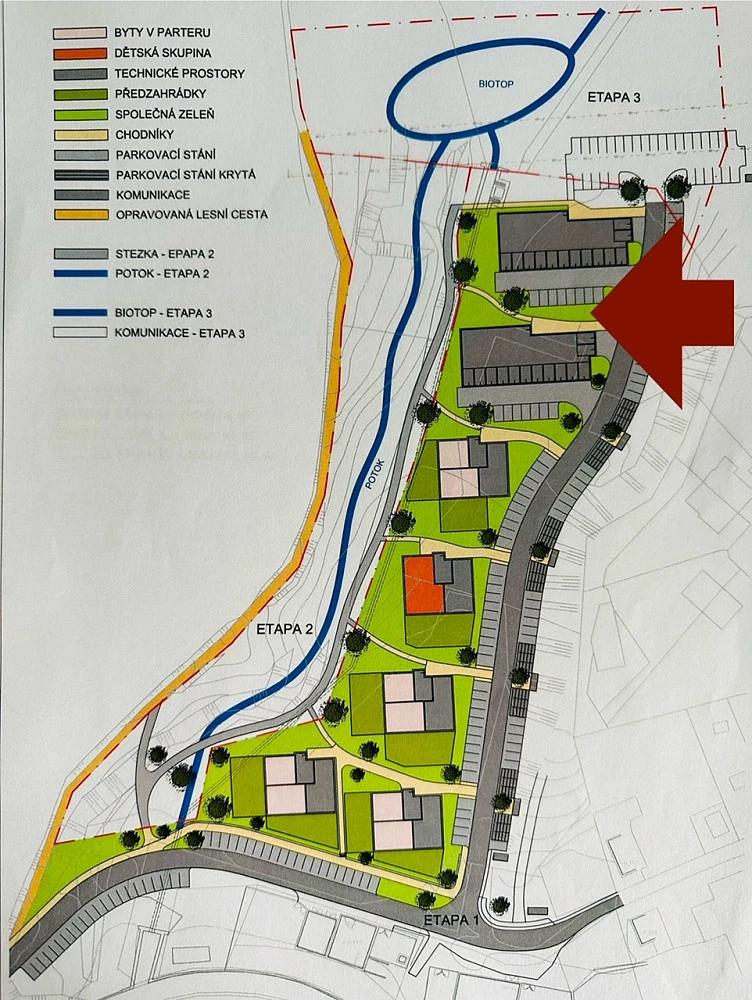
Dlouhodobý pronájem zcela nového bytu 3+kk (69 m²) s velikým rohovým balkonem ve 3. nadzemním podlaží bytového domu B6 – kolaudace proběhne v tomto měsíci. Samostatná garáž velikosti 17 m² se vstupem přímo k výtahu zahrnuta v ceně nájmu. Praktická rodinná dispozice - obývací pokoj (30 m²) s moderní kuchyňskou linkou v bílo-šedém designu, dvě neprůchozí ložnice (10 a 15 m²), koupelna s vanou, WC zcela odděleno, vstupní hala 8 m². K dispozici je bezpečná a prostorná sklepní koje nadstandardní velikosti 7,83 m² včetně garáže pro 1 osobní auto přímo v domě. Součástí výstavby bude dokonalá parková úprava rezidenčního bytového komplexu – nově přiznaný tok potoka s lávkami, malý biotop, vybudovaná cyklostezka, bike park, gril pointy, dětské hřiště s prvky venkovní posilovny.

Nabízíme nový směr v bydlení ve druhém domě - stavba s nejlepším energetickým štítkem PENB nejúspornější třída „A“, která v kombinaci s technologiemi přináší opravdu výraznou úsporu provozních nákladů - částečně energeticky soběstačné bydlení podporující komunitní energetiku. Aplikace BMS – building management systém - v domě je připraven unikátní informační systém řízení a sledování provozu domu - spotřeb, měření a regulace, který prostřednictvím mobilní aplikace umožňuje uživatelům poskytovat průběžné informace o spotřebách energií, přehledy o měsíčních spotřebách a možnosti nastavení teploty i chlazení a sledování stavů teploty v bytě se vzdáleným přístupem z mobilní aplikace.

Moderní nadčasový projekt 7 bytových domů v západní části města Jablonce nad Nisou / Rýnovice / Jezdecká ulice - přímo pod Prosečským hřebenem – nadstandardní rezidenční bydlení volně navazuje na stávající výstavbu ve vyhledávané lokalitě Horní Proseče. Jednoznačnou předností lokality je její těsné sousedství s Prosečským hřebenem, na dohled známé turistické stezky „Vyhlídkový jablonecký okruh“ (16,3 km), les včetně naučné stezky „Po stopách 2 světové války“ a bývalého lesního divadla - po 2,5 km se dostanete značenými turistickými cestami přímo k Prosečské chatě – výletní restaurace s původní kamennou rozhlednou (593 m.n.m.) – nově otevřeno 20.8.2018 – dominanta Prosečského hřebenu.
Neopomenutelnou prioritou je výborná docházková vzdálenost do Obchodního centra RÝNOVKA - supermarket, pošta, bankomat, lékárna, denní restaurace, dětský klub. Ve stejné vzdálenosti najdete i hobby market, čerpací stanici, tenisový areál s letní restaurací a zastávku MHD (bus č.114 / trasa Horní Proseč – autobusové nádraží – Jablonecké Paseky).
Další dopravním spojem MHD (bus č.101) se dostanete do horského střediska Bedřichov – srdce Jizerských hor a nástupního místa Jizerské magistrály / běžecké tratě vedoucí na Novou Louku a dále směrem na Kristiánov, Knajpu, Smědavu, Jizerku. V létě slouží Bedřichov jako výchozí místo pro lehkou turistiku a tradiční cykloturistiku včetně koupání na Černé Nise.

Nespočet kulturních a sportovních možností nabízí blízkost města Liberce / dojezd 8 km – výstup na ikonický JEŠTED, Aquapark Babylon s originálním interiérem ve stylu steampunku, laser show, wellness SAUNIA, moderní vědecko-zábavní centrum pro děti iQLANDIA, DINOPARK, Technické muzeum, nejstarší Zoologická zahrada v Čechách, tři divadla, dvě multikina, velká nákupní centra.
K nastěhování duben-květen 2026, kvalitní nájemní smlouva ze strany majitele bytu zaručena – max. počet osob v bytě 4, domácí mazlíček po dohodě. Doporučujeme jako pohodové rodinné bydlení v dosahu přírody. Prohlídka právě se dokončující novostavby dle následné dohody.

Makléř

Máte zájem o tento byt?

Tímto, v souladu s nařízením Evropského parlamentu a Rady (EU) 2016/679, v platném znění, prohlašuji, že mi je alespoň 16 let a uděluji tak svůj souhlas se zpracováním zadaných údajů (jméno, telefon, e-mail, ip adresa) společnosti B3 Technology, s.r.o., IČ: 07330600, se sídlem Novostavby 126/23, 435 11 Lom (správce dat), za účelem předání dotazu z tohoto formuláře Vámi vybranému inzerentovi a zpětného kontaktování mé osoby. Osobní údaje bude správce zpracovávat manuálně i automaticky přímo prostřednictvím svých zaměstnanců. Informace předané tímto formulářem budou uloženy v databázi správce maximálně po dobu 10 let. Odvolání souhlasu s uložením a zpracováním poskytnutých dat lze e-mailem na info@origo-reality.cz. V případě podezření na neoprávněné použití Vámi poskytnutých údajů máte právo předat podnět k šetření Úřadu pro ochranu osobních údajů. Více informací
Chystáte se prodat nemovitost?
Pomůžeme Vám!

Přihlášení k odběru

Nenechte si ujít nejnovější nabídky pronájmu bytů 3+kk v Jablonci nad Nisou.