Prodej pozemku pro bydlení, Hronov, Mikoláše Alše, 1868 m2

Mikoláše Alše, Hronov

Cena na vyžádání
/za nemovitost
info v RK.
Získejte výhodnou HYPOTÉKU Chci hypotéku

Parametry pozemku

AdresaMikoláše Alše, Hronov
ID211-NP04586
Lokalita objektuKlidná část obce
Plocha pozemku1868 m2
Elektřina230V, 400V
PlynPlynovod
OdpadVeřejná kanalizace
TelekomunikaceInternet
DopravaVlak, Silnice, Autobus
VodaMístní zdroj vody, Vodovod, Studna
Převod do OV

Origo partneři v Hronově

Pojištění a finance

Popis

Stavební pozemek v Hronově – jedinečné místo s atmosférou, kde můžete naplánovat vlastní budoucnost.

Nabízíme ke koupi výjimečný stavební pozemek v Hronově, situovaný na velmi klidném a atraktivním místě pod lesem, v těsné blízkosti bývalého letního sídla Aloise Jiráska. Lokalita, která spojuje soukromí, přírodu a jedinečný genius loci.

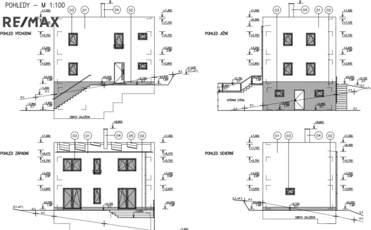
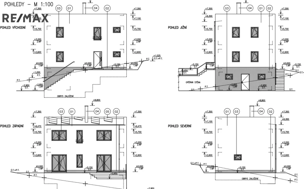
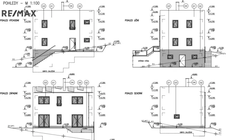
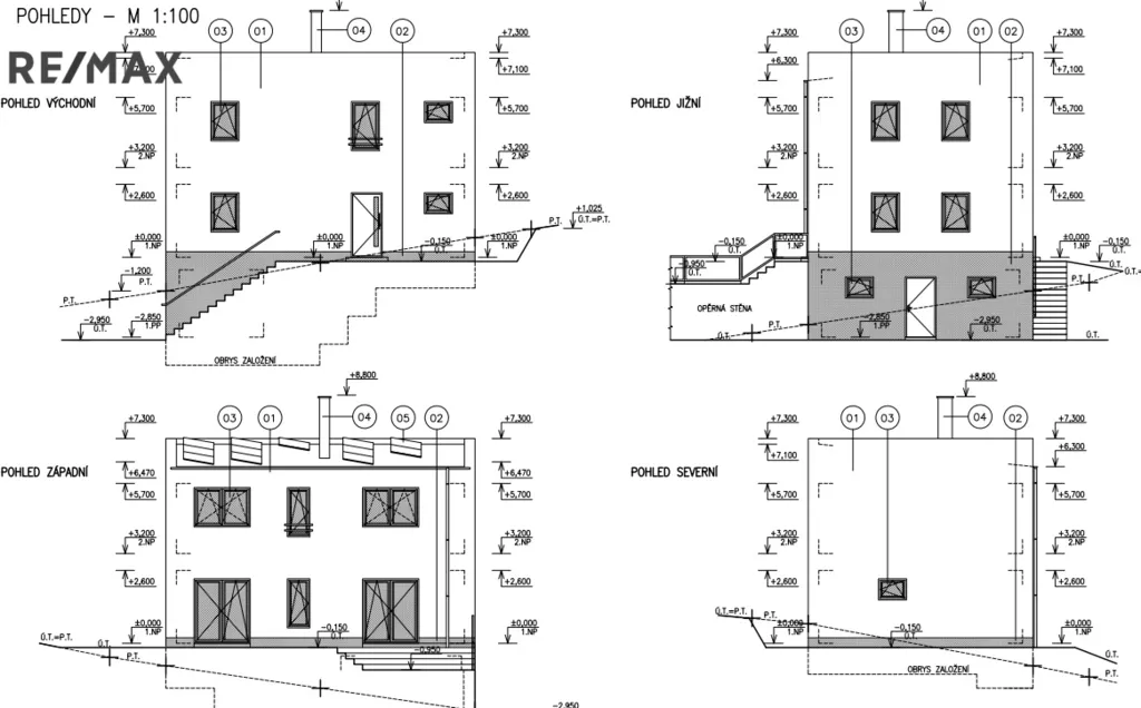
Pozemek se nachází na mírném jižním svahu, díky čemuž nabízí dostatek slunce po celý den a krásné výhledy do okolní zeleně. Velkou výhodou je připravený projekt na výstavbu dvou rodinných domů o dispozici 4+kk s kompletním příslušenstvím.

Velkou přidanou hodnotou je i skutečnost, že Město Hronov aktuálně dokončuje realizaci nového moderního parčíku s přírodním koupacím jezírkem, který vzniká přímo naproti pozemku přes cestu.

Samozřejmostí jsou veškeré inženýrské sítě – elektřina, voda, plyn i kanalizace – což výrazně zjednodušuje a urychluje budoucí realizaci.

Ideální místo pro ty, kteří hledají klidné bydlení v přírodě, ale zároveň chtějí zůstat v dosahu města a občanské vybavenosti. Pozemek je vhodný jak pro vlastní bydlení, tak i jako zajímavá investiční příležitost.

Momentálně se jedná o nejlepší místo na stavbu rodinného domu v Hronově...
Prodávající si vyhrazuje právo vybrat kupujícího na základě jím zvolených kritérií.

Makléř

Máte zájem o tento pozemek?

Tímto, v souladu s nařízením Evropského parlamentu a Rady (EU) 2016/679, v platném znění, prohlašuji, že mi je alespoň 16 let a uděluji tak svůj souhlas se zpracováním zadaných údajů (jméno, telefon, e-mail, ip adresa) společnosti B3 Technology, s.r.o., IČ: 07330600, se sídlem Novostavby 126/23, 435 11 Lom (správce dat), za účelem předání dotazu z tohoto formuláře Vámi vybranému inzerentovi a zpětného kontaktování mé osoby. Osobní údaje bude správce zpracovávat manuálně i automaticky přímo prostřednictvím svých zaměstnanců. Informace předané tímto formulářem budou uloženy v databázi správce maximálně po dobu 10 let. Odvolání souhlasu s uložením a zpracováním poskytnutých dat lze e-mailem na info@origo-reality.cz. V případě podezření na neoprávněné použití Vámi poskytnutých údajů máte právo předat podnět k šetření Úřadu pro ochranu osobních údajů. Více informací
Chystáte se prodat nemovitost?
Pomůžeme Vám!
Theleadway banner

Přihlášení k odběru

Nenechte si ujít nejnovější nabídky prodeje pozemků pro bydlení v Hronově.