Pronájem kanceláře, Mladá Boleslav - Mladá Boleslav III, Novákova, 46 m2

Novákova, Mladá Boleslav III

16 000 Kč
/za měsíc
Získejte výhodnou HYPOTÉKU Chci hypotéku

Parametry nemovitosti

AdresaNovákova, Mladá Boleslav III
ID2377
StavbaSmíšená
Stav objektuVelmi dobrý
VybavenoČástečně
Typ objektuPatrový
Lokalita objektuKlidná část obce
Užitná plocha46 m2
Třída energetické náročnostiC - Úsporná
PlynPlynovod
OdpadVeřejná kanalizace
TelekomunikaceInternet
Převod do OV

Origo partneři v Mladé Boleslavi

Popis

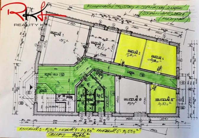
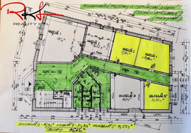
Dovolujeme si Vám nabídnout k pronájmu kancelářské - obchodní prostory, které se nacházejí v centru města Mladá Boleslav. Jedná se o tři neprůchozí místnosti o velikosti 46,5 m2. Vyznačeny na půdorysu žlutou barvou. Sdílené sociální zařízení na patře (kuchyňka + toalety se sprchou), bezpečnostní systém.

Možnost stavebních úprav s ohledem na délku nájemného vztahu a legislativu budovy. Dále je zde také další možnost oddělení a využití vlastního samostatného vstupu ze zadní části budovy.

Ústřední plynové topení. Zateplená energeticky úsporná budova s plastovými okny. Parkoviště přímo před budovou. Volné dubna 2026, po dohodě možno i dříve.

Cena pronájmu 16.000,- Kč měsíčně + zálohy za energie a služby - přibližná výše 2.800,- Kč.
Provize RK ve výši 20.000 ,- Kč hradí zájemce.
Vratná kauce 20.000,- Kč.

Objekt se nachází v klidné, příjemné lokalitě v docházkové vzdálenosti od centra, kde najdete kompletní občanskou vybavenost.

Pro více informací mě prosím kontaktujte v níže uvedeném formuláři nebo telefonicky Po-Pá 8.00 - 18.00h, v ostatních případech pomocí sms/emailu. Děkuji. Speaking English.

Makléř

Máte zájem o tuto nemovistost?

Tímto, v souladu s nařízením Evropského parlamentu a Rady (EU) 2016/679, v platném znění, prohlašuji, že mi je alespoň 16 let a uděluji tak svůj souhlas se zpracováním zadaných údajů (jméno, telefon, e-mail, ip adresa) společnosti B3 Technology, s.r.o., IČ: 07330600, se sídlem Novostavby 126/23, 435 11 Lom (správce dat), za účelem předání dotazu z tohoto formuláře Vámi vybranému inzerentovi a zpětného kontaktování mé osoby. Osobní údaje bude správce zpracovávat manuálně i automaticky přímo prostřednictvím svých zaměstnanců. Informace předané tímto formulářem budou uloženy v databázi správce maximálně po dobu 10 let. Odvolání souhlasu s uložením a zpracováním poskytnutých dat lze e-mailem na info@origo-reality.cz. V případě podezření na neoprávněné použití Vámi poskytnutých údajů máte právo předat podnět k šetření Úřadu pro ochranu osobních údajů. Více informací
Chystáte se prodat nemovitost?
Pomůžeme Vám!