Pronájem bytu 2+1, Špindlerův Mlýn, 60 m2

Špindlerův Mlýn, Přední Labská

15 000 Kč
/za měsíc
Získejte výhodnou HYPOTÉKU Chci hypotéku

Parametry bytu

AdresaŠpindlerův Mlýn, Přední Labská
IDSM-60-najem
StavbaCihlová
Stav objektuVelmi dobrý
Patro3.
VlastnictvíOsobní
Užitná plocha60 m2

Origo partneři v Špindlerově Mlýně

Popis

Nabízíme k pronájmu výjimečný podkrovní byt s vlastním věžovým prostorem, který kombinuje horský charakter s praktickým uspořádáním. Byt i dům prošly kompletní rekonstrukcí v roce 2022 a nachází se ve 3. patře historického objektu, pouhé 3 km od sjezdovek ve Špindlerově Mlýně.

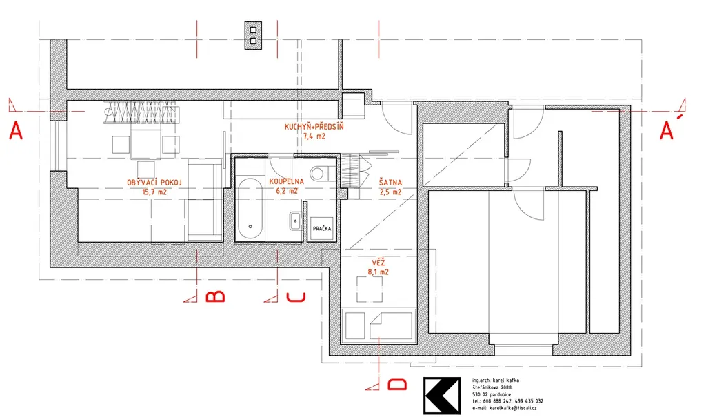
Celková podlahová plocha: 60 m² (z toho 47 m² dle ČSN – plocha nad 1,2 m výšky)


Dispozice bytu:

vstupní chodba, kuchyň, koupelna s vanou a WC, obytný prostor s patrem na spaní (2 lůžka, střešní okno), šatna, pokoj s palandou a přímým vstupem do věže (vhodné jako pracovna nebo knihovna)


Společné prostory:

společenská místnost s barem, krbem a kulečníkem, sauna s odpočívárnou, lyžárna se sušákem na boty, zahrada s altánem k posezení



Velmi nízké provozní náklady: cca 1 500 Kč / měsíc + vlastní spotřeba elektřiny.

klidný dům a výborné sousedské vztahy

Přehled ploch:

3. NP: kuchyň a předsíň: 7,4 m², šatna: 2,5 m², věž (spodní část): 8,1 m², koupelna s WC: 6,2 m², obývací pokoj: 15,2 m²

4. NP: úložné prostory nad obývacím pokojem: 4,1 m², patro na spaní: 10,7 m², věž (horní část): 6,1 m²


Tato nemovitost je ideální pro vlastní rekreační užívání. Dům využívají výhradně vlastníci jednotek, což je ve Špindlerově Mlýně unikátní. Pouze dlouhodobý pronájem.

Makléř

Máte zájem o tento byt?

Tímto, v souladu s nařízením Evropského parlamentu a Rady (EU) 2016/679, v platném znění, prohlašuji, že mi je alespoň 16 let a uděluji tak svůj souhlas se zpracováním zadaných údajů (jméno, telefon, e-mail, ip adresa) společnosti B3 Technology, s.r.o., IČ: 07330600, se sídlem Novostavby 126/23, 435 11 Lom (správce dat), za účelem předání dotazu z tohoto formuláře Vámi vybranému inzerentovi a zpětného kontaktování mé osoby. Osobní údaje bude správce zpracovávat manuálně i automaticky přímo prostřednictvím svých zaměstnanců. Informace předané tímto formulářem budou uloženy v databázi správce maximálně po dobu 10 let. Odvolání souhlasu s uložením a zpracováním poskytnutých dat lze e-mailem na info@origo-reality.cz. V případě podezření na neoprávněné použití Vámi poskytnutých údajů máte právo předat podnět k šetření Úřadu pro ochranu osobních údajů. Více informací
Chystáte se prodat nemovitost?
Pomůžeme Vám!

Přihlášení k odběru

Nenechte si ujít nejnovější nabídky pronájmu bytů 2+1 v Špindlerově Mlýně.