Pronájem rodinného domu, Němčany, 98 m2

Němčany

Rezervováno
24 000 Kč
/za měsíc
Získejte výhodnou HYPOTÉKU Chci hypotéku

Parametry domu

StavRezervováno
AdresaNěmčany
StavbaCihlová
Stav objektuVelmi dobrý
Druh objektuŘadový
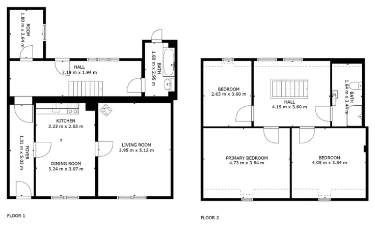
Užitná plocha98 m2
Plocha pozemku118 m2
Sklep
Parkování

Origo partneři v Němčanech

Popis

Pronájem rodinného domu v Němčanech – klidné bydlení pro rodinu

Hledáte pohodové bydlení v klidné lokalitě s dostatkem prostoru? Nabízíme k pronájmu velmi pěkný rodinný dům v obci Němčany, ideální pro rodinu, která ocení soukromí, funkční dispozici a bezstarostné nastěhování.

Základní informace:
• Dispozice: 4 pokoje + kuchyně s jídelnou
• Užitná plocha: cca 98 m²
• Typ domu: cihlový řadový dům, patrový
• Stav: velmi dobrý, bez nutnosti dalších investic
• Sklep: ano, cca 30 m² – dostatek úložného prostoru
• Parkování: 1 parkovací místo přímo u domu
• Volný od: 1. 3. 2026

Finanční podmínky:
• Měsíční nájem: 24.000 Kč
• Zálohy na služby a energie: 6.000 Kč / měsíc
• Vratná kauce: 30.000 Kč
• Provize RK: 1 měsíční nájem + DPH

❤️ Proč si tento dům zamilujete?
• klidná a příjemná lokalita vhodná pro rodinné bydlení
• praktická dispozice s dostatkem prostoru pro každého člena rodiny
• mnoho úložných míst včetně prostorného sklepa
• velmi dobrý technický stav – stačí se jen nastěhovat
• parkování pohodlně přímo u domu

K nastěhování od 1. března 2026.
Prohlídky jsou možné po předchozí domluvě.

Máte zájem o více informací nebo si chcete domluvit prohlídku?
Neváhejte nás kontaktovat – rádi vám dům osobně představíme

Makléř

Máte zájem o tento dům?

Tímto, v souladu s nařízením Evropského parlamentu a Rady (EU) 2016/679, v platném znění, prohlašuji, že mi je alespoň 16 let a uděluji tak svůj souhlas se zpracováním zadaných údajů (jméno, telefon, e-mail, ip adresa) společnosti B3 Technology, s.r.o., IČ: 07330600, se sídlem Novostavby 126/23, 435 11 Lom (správce dat), za účelem předání dotazu z tohoto formuláře Vámi vybranému inzerentovi a zpětného kontaktování mé osoby. Osobní údaje bude správce zpracovávat manuálně i automaticky přímo prostřednictvím svých zaměstnanců. Informace předané tímto formulářem budou uloženy v databázi správce maximálně po dobu 10 let. Odvolání souhlasu s uložením a zpracováním poskytnutých dat lze e-mailem na info@origo-reality.cz. V případě podezření na neoprávněné použití Vámi poskytnutých údajů máte právo předat podnět k šetření Úřadu pro ochranu osobních údajů. Více informací
Chystáte se prodat nemovitost?
Pomůžeme Vám!

Přihlášení k odběru

Nenechte si ujít nejnovější nabídky pronájmu rodinných domů v Němčanech.