Prodej bytu 1+kk, Praha - Dejvice, Lindleyova, 34 m2 (ID: 1958336)

Lindleyova, Praha, Dejvice

7 170 000 Kč
/za nemovitost
Hypotéka od 32 046 Kč /měs. Chci hypotéku

Parametry bytu

AdresaLindleyova, Praha, Dejvice
StavbaCihlová
Stav objektuNovostavba
Patro5.
Lokalita objektuKlidná část obce
VlastnictvíOsobní
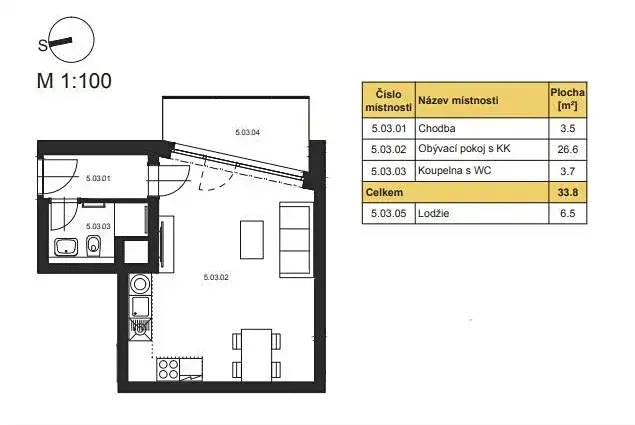
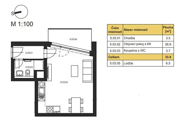
Užitná plocha34 m2
Třída energetické náročnostiB - Velmi úsporná
OdpadVeřejná kanalizace
DopravaMHD
Topné tělesoRadiátory
Zdroj topeníÚstřední dálkové
Zdroj teplé vodyCentrální dálkový ohřev
Sklep
Lodžie
Výtah

Origo partneři v Praze 6

Stěhovací služby

Výkup a prodej starého nábytku

Popis

Nabízíme k prodeji moderní byt 1+kk v žádané lokalitě Prahy. Tento cihlový byt se nachází v novostavbě zkolaudované v roce 2018, což zaručuje kvalitní a současné standardy bydlení. Byt se pyšní klidnou atmosférou díky umístění v klidné části obce.

Byt se nachází v pátém patře budovy, ke které je k dispozici výtah. Užitná plocha bytu je 34 m², což je efektivně rozděleno a nabízí pohodlné bydlení. K bytu náleží lodžie o ploše 6,5 m², což poskytuje další prostor pro relaxaci. K bytu náleží sklep v suterénu domu, k dispozice taky společenská místnost s posilovnou. Topení - Centrální dálkové, energetická náročnost budovy - B.

Pohodlnou dopravní dostupnost zajišťuje MHD, která propojuje byt s centrem města a dalšími částmi Prahy. Byt je zařazen do energetické třídy B, což z něj činí úspornou volbu pro budoucí majitele. Provozní náklady Vám sdělí makléř, který je kontaktní osobou u tohoto inzerátu.

Pokud Vás tento byt zaujal, vyplňte níže uvedený formulář, rádi Vám pomůžeme.

Makléř

Máte zájem o tento byt?

Tímto, v souladu s nařízením Evropského parlamentu a Rady (EU) 2016/679, v platném znění, prohlašuji, že mi je alespoň 16 let a uděluji tak svůj souhlas se zpracováním zadaných údajů (jméno, telefon, e-mail, ip adresa) společnosti B3 Technology, s.r.o., IČ: 07330600, se sídlem Novostavby 126/23, 435 11 Lom (správce dat), za účelem předání dotazu z tohoto formuláře Vámi vybranému inzerentovi a zpětného kontaktování mé osoby. Osobní údaje bude správce zpracovávat manuálně i automaticky přímo prostřednictvím svých zaměstnanců. Informace předané tímto formulářem budou uloženy v databázi správce maximálně po dobu 10 let. Odvolání souhlasu s uložením a zpracováním poskytnutých dat lze e-mailem na info@origo-reality.cz. V případě podezření na neoprávněné použití Vámi poskytnutých údajů máte právo předat podnět k šetření Úřadu pro ochranu osobních údajů. Více informací
Chystáte se prodat nemovitost?
Pomůžeme Vám!

Přihlášení k odběru

Nenechte si ujít nejnovější nabídky prodeje bytů 1+kk v Praze 6.