Prodej bytu 1+1, Praha - Stodůlky, Kettnerova, 46 m2

Kettnerova, Praha, Stodůlky

6 500 000 Kč
/za nemovitost
Včetně právních služeb
Hypotéka od 29 051 Kč /měs. Chci hypotéku

Parametry bytu

Náklady na bydlení3500 služby a energie v domě + spotřeba elektřiny
AdresaKettnerova, Praha, Stodůlky
StavbaPanelová
Stav objektuVelmi dobrý
Patro6.
VlastnictvíOsobní
Užitná plocha46 m2
Třída energetické náročnostiC - Úsporná
TelekomunikaceInternet, Kabelová televize
DopravaMHD
Zdroj topeníCentrální dálkové
Zdroj teplé vodyCentrální dálkový ohřev
Sklep
Výtah

Origo partneři v Praze 5

Stěhovací služby

Výkup a prodej starého nábytku

Popis

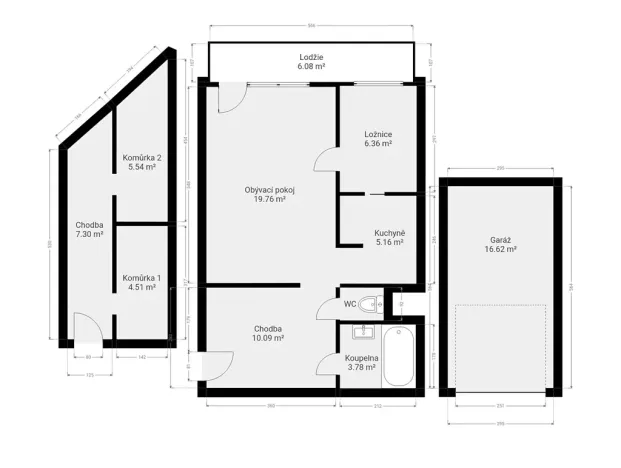
Velice dobře udržovaný byt 1+1 46 m2, dispozičně upravený na 2kk, v 5. patře panelového domu v těsné blízkosti metra Luka.

Všechny místnosti mají samostatný vstup, z obývacího pokoje je vchod na lodžii 6,7 m2.

Koupelna s vanou a toaleta jsou oddělené, zděné. V prostorné chodbě je veliká vestavná šatní skříň. Původní kuchyň je rozdělena příčkou s posuvnými dveřmi na kuchyňský kout a malou ložnici, která má vchod i z obývacího pokoje.

K bytu náleží také komora v přímém sousedství bytu s plochou 19 m2
(viz půdorys). Momentálně je zde chodba a dvě místnosti, ale je zde možnost celý prostor otevřít.

K bytu je možné koupit garáž nacházející se v těsné blízkosti domu. Jedná se o uzavřenou garáž s vraty na dálkové ovládání, plocha 17 m2. Garáž se nabízí samostaně za 1,35 mil, pokud bude garáž koupena společně s bytem, je zde sleva na 1,25 mil.

Přímo na metru Luka je nové nákupní centrum Galerie Luka s velkým množstvím obchodů a služeb.

Makléř

Máte zájem o tento byt?

Tímto, v souladu s nařízením Evropského parlamentu a Rady (EU) 2016/679, v platném znění, prohlašuji, že mi je alespoň 16 let a uděluji tak svůj souhlas se zpracováním zadaných údajů (jméno, telefon, e-mail, ip adresa) společnosti B3 Technology, s.r.o., IČ: 07330600, se sídlem Novostavby 126/23, 435 11 Lom (správce dat), za účelem předání dotazu z tohoto formuláře Vámi vybranému inzerentovi a zpětného kontaktování mé osoby. Osobní údaje bude správce zpracovávat manuálně i automaticky přímo prostřednictvím svých zaměstnanců. Informace předané tímto formulářem budou uloženy v databázi správce maximálně po dobu 10 let. Odvolání souhlasu s uložením a zpracováním poskytnutých dat lze e-mailem na info@origo-reality.cz. V případě podezření na neoprávněné použití Vámi poskytnutých údajů máte právo předat podnět k šetření Úřadu pro ochranu osobních údajů. Více informací
Chystáte se prodat nemovitost?
Pomůžeme Vám!