Pronájem bytu 2+1, Lanškroun, Olbrachtova, 55 m2

Olbrachtova, Lanškroun, Žichlínské Předměstí

7 154 Kč
/za měsíc
vyvolávací cena nájmu
Získejte výhodnou HYPOTÉKU Chci hypotéku

Parametry bytu

Náklady na bydlení3000
AdresaOlbrachtova, Lanškroun, Žichlínské Předměstí
StavbaCihlová
Stav objektuDobrý
Patro2.
VlastnictvíStátní/obecní
Užitná plocha55 m2
Sklep

Origo partneři v Lanškrouně

Popis

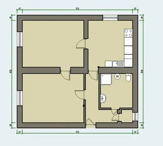
Nabízíme k pronájmu byt 2+1 v cihlové zástavbě v klidné části města Lanškroun. Tento útulný byt o užitné ploše 55 m² se nachází ve druhém patře a je po velmi zdařilé rekonstrukci.

Součástí bytu je prostorný sklep o velikosti 8 m², který poskytuje dostatek úložného prostoru pro Vaše věci. Byt je v obecním vlastnictví, což může skýtat určité výhody, například ve formě stabilního nájemního vztahu.

Měsíční nájemné činí 7 154,- Kč a k ceně je potřeba počítat s náklady na bydlení ve výši 3 000,- Kč, které zahrnují spotřebu energií a další služby. Datum nastěhování je stanoveno na 1. března 2026, což Vám poskytuje dostatek času na plánování a přípravu na stěhování.

Pokud Vás tento byt zaujal, neváhejte nám napsat nebo zavolat a rádi Vám vše ukážeme osobně. Pro více informací o této nemovitosti nebo sjednání prohlídky nás prosím kontaktujte.


Žadatelem o nájem bytu v majetku Města Lanškroun může být osoba, která:

je starší 18 let
je občanem České republiky a má trvalý pobyt na území města Lanškroun (k.ú. Lanškroun a Dolní Třešňovec) v délce minimálně 3 roky, nebo je v pracovním poměru u zaměstnavatele se sídlem či provozovnou na území města Lanškroun (nutno doložit potvrzením od zaměstnavatele) a to déle než 3 měsíce ke dni podání přihlášky
je občanem České republiky a má trvalý pobyt  ve správním obvodu obce s rozšířenou působností Lanškroun v délce minimálně 3 roky
je příslušníkem jiného členského státu Evropské unie a má v České republice potvrzen přechodný pobyt a místo pobytu hlášeno na území města Lanškroun v délce 3 roky nebo je zaměstnán u zaměstnavatele se sídlem či provozovnou na území města Lanškroun a to déle než 3 měsíce ke dni podání přihlášky
je příslušníkem jiného členského státu Evropské unie a má v České republice potvrzen přechodný pobyt a místo pobytu hlášeno ve správním obvodu obce s rozšířenou působností Lanškroun  v  délce minimálně 3 roky.
nemá žádné vlastnické nebo spoluvlastnické a jemu obdobné právo k bytu, k bytovému domu nebo rodinnému domu a ani je neužívá právem odpovídající věcnému břemeni
je bezdlužná vůči městu a jeho organizacím

Makléř

Máte zájem o tento byt?

Tímto, v souladu s nařízením Evropského parlamentu a Rady (EU) 2016/679, v platném znění, prohlašuji, že mi je alespoň 16 let a uděluji tak svůj souhlas se zpracováním zadaných údajů (jméno, telefon, e-mail, ip adresa) společnosti B3 Technology, s.r.o., IČ: 07330600, se sídlem Novostavby 126/23, 435 11 Lom (správce dat), za účelem předání dotazu z tohoto formuláře Vámi vybranému inzerentovi a zpětného kontaktování mé osoby. Osobní údaje bude správce zpracovávat manuálně i automaticky přímo prostřednictvím svých zaměstnanců. Informace předané tímto formulářem budou uloženy v databázi správce maximálně po dobu 10 let. Odvolání souhlasu s uložením a zpracováním poskytnutých dat lze e-mailem na info@origo-reality.cz. V případě podezření na neoprávněné použití Vámi poskytnutých údajů máte právo předat podnět k šetření Úřadu pro ochranu osobních údajů. Více informací
Chystáte se prodat nemovitost?
Pomůžeme Vám!

Přihlášení k odběru

Nenechte si ujít nejnovější nabídky pronájmu bytů 2+1 v Lanškrouně.