Prodej činžovního domu, Vysoký Újezd - Kuchař, K Silu, 260 m2

K Silu, Vysoký Újezd, okres beroun, Kuchař

24 000 000 Kč
/za nemovitost
Hypotéka od 107 265 Kč /měs. Chci hypotéku

Parametry nemovitosti

AdresaK Silu, Vysoký Újezd, okres beroun, Kuchař
ID250160
StavbaCihlová
Stav objektuVelmi dobrý
VybavenoAno
Typ objektuPatrový
VlastnictvíOsobní
Užitná plocha260 m2
Zastavěná plocha139 m2
Podlahová plocha292 m2
Plocha pozemku1783 m2
Třída energetické náročnostiG - Mimořádně nehospodárná
Elektřina230V
OdpadVeřejná kanalizace
TopeníÚstřední plynové
DopravaSilnice
VodaVodovod
Garáž
Sklep
Výtah

Origo partneři v Vysokém Újezdu

Popis

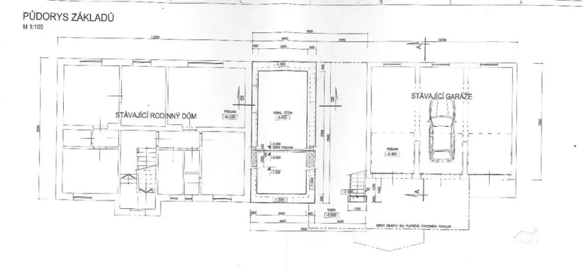
Představuji k prodeji dům se 4 byty a další budovu s garážemi na pozemku o celkové rozloze 1783 m2 v na adrese K Silu 40, Kuchař.

Podívejte se na samostatnou stránku nemovitosti odkaz ve videoprohlídce.

Obec Kuchař se nachází 10 min jízdy jihozápadně od Prahy a 10 min jízdy od Karlštejna, v okrese Beroun, u Vysokého Újezda.
Samotný dům je na vlastním oploceném pozemku na okraji obce.

Dispozice domu:
V domě jsou 4 bytové jednotky.

V přízemí:
1+1, 44 m2
3+1, 96 m2
V patře:
2+1, 60 m2
1+1, 44 m2

Byty jsou po rekonstrukci z let 2010 a 2016.
Součástí všech bytů je kuchyňská linka se spotřebiči z roku 2016.

V domě je velký půdní prostor s možností půdní vestavby a vzniku dalších 1 2 bytů. Na půdu vedou samostatné dveře, je zde vyvedena elektřina, voda, odpady a trubky pro topení. S výstavbou dalšího bytu se při rekonstrukci v roce 2016 počítalo.
Dům je částečně podsklepený, sklepní prostory jsou po rekonstrukci.

Vedle domu stojí stavba se 3 garážemi s elektrickými vraty a podkrovním prostorem. Tato budova ovšem vykazuje známky poškození. Je tedy možné ji buď opravit a zvětšit, nebo zdemolovat a místo ní postavit novou budovu (sklad, kanceláře, garáže...). STAVEBNÍ POVOLENÍ JE VYDANÉ na budovu o rozměru 11x24 m a do budovy jsou přivedeny přípojky (voda, elektřina, odpad a trubka pro připojení plynu). Současný majitel měl v plánu tuto budovu přestavět na velkou skladovací halu.
Vedle této budovy je podzemní sklep o výměře cca 6x3 m.

Technické informace:
Dům je cihlový, po částečné rekonstrukci. Vytápění je řešeno plynovým kotlem Vaillant, ohřev teplé vody boilerem Vaillant, vyhřívaným plynovým kotlem. V bytech jsou radiátory. V bytě 3+1 jsou navíc umístěná krbová kamna s novým komínem (2024).

Elektřina:
Sloupek je umístěn na hranici pozemku, je zde zaveden noční proud. V centrálním schodišti je v mezipatře umístěn hlavní elektrický rozvaděč (2016) s podružnými měřiči pro jednotlivé byty, půdu, garáž a společné prostory (chodba, sklepy, venkovní osvětlení). V každém bytě je osazen nový rozvaděč pro jednotlivé okruhy. Kompletní elektroinstalace rekonstruována v roce 2016.

Voda, odpady:
Celý objekt je napojen na vodovodní řád (VAK Beroun), odpady jsou svedeny do kanalizace.
Na pozemku je vlastní studna, ta se však pro občasný nedostatek vody v letních měsících nevyužívá. Čerpadlo ve studni umístěné je.
Na pozemku (pod přístavbou) je retenční nádrž o kapacitě cca 30m3. Je do ní svedena dešťová voda slouží jako zásobárna užitkové vody pro zalévání zahrady. Rozvody po celém domě jsou nové v plastu (2010 2016). Každý byt je vybaven měřičem pro studenou i teplou vodu.

Právní informace:
V bytech bydlí nájemníci s nájemními smlouvami na dobu určitou do 31.8.2026.
Na pozemku je zřízeno věcné břemeno pro GasNet z důvodu provo...

Makléř

Máte zájem o tuto nemovistost?

Tímto, v souladu s nařízením Evropského parlamentu a Rady (EU) 2016/679, v platném znění, prohlašuji, že mi je alespoň 16 let a uděluji tak svůj souhlas se zpracováním zadaných údajů (jméno, telefon, e-mail, ip adresa) společnosti B3 Technology, s.r.o., IČ: 07330600, se sídlem Novostavby 126/23, 435 11 Lom (správce dat), za účelem předání dotazu z tohoto formuláře Vámi vybranému inzerentovi a zpětného kontaktování mé osoby. Osobní údaje bude správce zpracovávat manuálně i automaticky přímo prostřednictvím svých zaměstnanců. Informace předané tímto formulářem budou uloženy v databázi správce maximálně po dobu 10 let. Odvolání souhlasu s uložením a zpracováním poskytnutých dat lze e-mailem na info@origo-reality.cz. V případě podezření na neoprávněné použití Vámi poskytnutých údajů máte právo předat podnět k šetření Úřadu pro ochranu osobních údajů. Více informací
Chystáte se prodat nemovitost?
Pomůžeme Vám!

Přihlášení k odběru

Nenechte si ujít nejnovější nabídky prodeje činžovních domů v Vysokém Újezdu (okr. Beroun).