Prodej bytu 2+kk, Bar, Černá Hora, 42 m2 (ID: 1957299)

Bar

137 085 €
/za nemovitost

Parametry bytu

AdresaBar
IDF23028
StavbaCihlová
Stav objektuVe výstavbě
Patro6. z 9
VybavenoČástečně
Lokalita objektuKlidná část obce
VlastnictvíOsobní
Užitná plocha42 m2
Podlahová plocha48 m2
Elektřina230V
OdpadVeřejná kanalizace
TopeníLokální elektrické
TelekomunikaceInternet
DopravaDálnice, Silnice, MHD, Autobus
VodaVodovod
Terasa
Výtah
Parkování

Origo partneři

Popis

V srdci vyhledávané čtvrti Topolica ve městě Bar vzniká moderní rezidenční komplex, který kombinuje vysoký standard bydlení, výbornou polohu a velmi zajímavý investiční potenciál. Právě tady, v pátém patře novostavby, se nachází promyšleně řešený apartmán 2+kk o ploše 48 m² s terasou o velikosti 4 m², která přirozeně rozšiřuje obytný prostor a nabízí klidné místo pro ranní kávu i večerní odpočinek s výhledem na okolní zeleň a hory.

Interiér je navržen s důrazem na funkčnost, kvalitu a nadčasový styl. Vstupní předsíň plynule navazuje na světlý obývací prostor s kuchyňským koutem, ložnici a koupelnu vybavenou prémiovým sanitárním zařízením. Standardy odpovídají moderním nárokům na komfort – dubové parkety první třídy, italská keramika, kombinace dřeva a hliníku u oken a dveří, značkové vybavení Villeroy & Boch a Hansgrohe. Multisplit klimatizace, chytré domácí technologie a solární panely přispívají k pohodlnému a úspornému provozu.

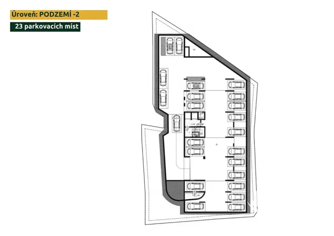
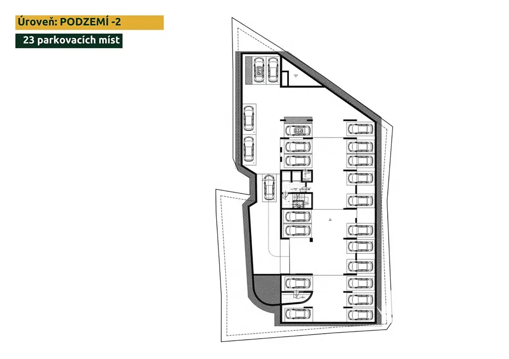
Součástí rezidence jsou dva výtahy značky OTIS a dvě podzemní podlaží s dostatkem parkovacích míst. Dokončení projektu je plánováno na konec roku 2026, což z této nabídky dělá ideální volbu jak pro vlastní bydlení do budoucna, tak pro včasnou investici s růstovým potenciálem.

Lokalita Topolica patří k nejprestižnějším adresám ve městě. V bezprostřední blízkosti se nachází pláž, pobřežní promenáda, sportovní centrum a připravovaný národní aquapark s vnitřními i venkovními bazény.
Okolí nabízí kompletní občanskou vybavenost a zároveň výjimečné propojení městského života s přírodou. Moře, přístavní marina, řeka Željeznica i majestátní pohoří Rumija vytvářejí prostředí, které má atmosféru, klid a dlouhodobou hodnotu.
Více než 270 slunečných dní v roce zajišťuje ideální podmínky pro rekreaci i celoroční pronájmy.

Tato rezidence je místem, kde se potkává kvalitní architektura, středomořský životní styl a jistota stabilní investice. Nabízí prostor pro budování vzpomínek, ale zároveň dává ekonomický smysl dnes i za deset let.

Rádi vám pomůžeme najít místo, které bude dávat smysl srdcem i čísly.

Makléř

Máte zájem o tento byt?

Tímto, v souladu s nařízením Evropského parlamentu a Rady (EU) 2016/679, v platném znění, prohlašuji, že mi je alespoň 16 let a uděluji tak svůj souhlas se zpracováním zadaných údajů (jméno, telefon, e-mail, ip adresa) společnosti B3 Technology, s.r.o., IČ: 07330600, se sídlem Novostavby 126/23, 435 11 Lom (správce dat), za účelem předání dotazu z tohoto formuláře Vámi vybranému inzerentovi a zpětného kontaktování mé osoby. Osobní údaje bude správce zpracovávat manuálně i automaticky přímo prostřednictvím svých zaměstnanců. Informace předané tímto formulářem budou uloženy v databázi správce maximálně po dobu 10 let. Odvolání souhlasu s uložením a zpracováním poskytnutých dat lze e-mailem na info@origo-reality.cz. V případě podezření na neoprávněné použití Vámi poskytnutých údajů máte právo předat podnět k šetření Úřadu pro ochranu osobních údajů. Více informací
Chystáte se prodat nemovitost?
Pomůžeme Vám!

Přihlášení k odběru

Nenechte si ujít nejnovější nabídky prodeje bytů 2+kk.