Prodej rodinného domu, Strakonice - Dražejov, 98 m2 (ID: 1956544)

Strakonice, Dražejov

9 180 000 Kč
Hypotéka od 41 029 Kč /měs. Chci hypotéku

Parametry domu

AdresaStrakonice, Dražejov
IDDražejov 729
StavbaSkeletová
Stav objektuNovostavba
VybavenoAno
Druh objektuSamostatný
Lokalita objektuKlidná část obce
VlastnictvíOsobní
Užitná plocha98 m2
Zastavěná plocha120 m2
Plocha pozemku917 m2
Třída energetické náročnostiC - Úsporná

Origo partneři v Strakonicích

Výkup a prodej starého nábytku

Popis

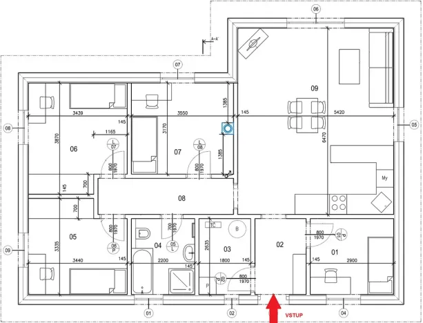
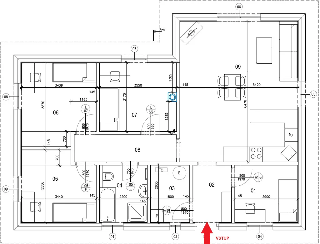
Nabízíme k prodeji stavbu přízemního rodinného domu o dispozici 5+kk ve tvaru L dokončeného v roce 2022 v klidném prostředí s výbornou dostupností do města v oblíbené části Strakonic – Dražejově. Dům je realizovaný s důrazem na pohodlí, úsporný provoz, dlouhou životnost konstrukce, bez nutnosti investic a je okamžitě obyvatelný.
Dům je řešen jako přízemní s půdou vhodnou pro uskladnění věcí. Objekt je bez podsklepení s užitnou plochou 98,3 m² a celkovou zastavěnou plochou 119,5 m². Okolní zahrada o ploše 797 m² je dostatečně veliká pro umístění herních prvků (trampolína, hrad, skluzavka, lezecká stěna …) pro děti stejně tak jako pro vytvoření dalšího posezení s přáteli u ohniště. Stavba je realizována moderním certifikovaným systémem dřevostavby Rigips s kvalitním zateplením a sendvičovými obvodovými stěnami, které zajišťují výborné tepelně – izolační vlastnosti a nízké náklady na vytápění po celý rok. Náklady na elektrickou energii spotřebovanou na topení, osvětlení a provoz všech spotřebičů jsou dlouhodobě do 5 tis/měsíc. Dům je stavebně připravený i k instalaci krbových kamen (komín). Dispozice domu odpovídá potřebám současného rodinného života – otevřený obývací prostor s plně vybavenou kuchyní s velkým pracovním ostrovem a velkými prosklenými výhledy do zahrady. Dále ložnice rodičů, dva samostatné dětské pokoje, pracovna, technická místnost a koupelna s WC. Podlahy v obytných místnostech jsou provedeny z kvalitních materiálů pro snadnou údržbu, v koupelnách a technické části je keramická dlažba. Okna a vstupní dveře jsou plastová s trojsklem a jednostranným dřevodekorem, který příjemně dotváří styl interiéru. Vytápění domu je řešeno tepelným čerpadlem vzduch – voda (cca 7 kW) s podlahovým vytápěním, což zajišťuje komfortní teplotu a velmi nízké provozní náklady. Koupelna je navíc doplněna topným tělesem. Větrání je přirozené pomocí oken. Dřevostavba je provedena z maximálně kvalitních KVH hranolů, s minerální izolací a kontaktním zateplovacím systémem – dům tak splňuje moderní standard energeticky úsporného bydlení, čemuž odpovídá zařazení objektu do klasifikační třídy C z hlediska energetické náročností budov – PENB. Valbová střecha se sklonem 25° je osazena krytinou Betonpres v břidlicově černém odstínu, přispívající k elegantnímu vzhledu domu. Fasáda je navržena ve světle béžovém tónu s tmavším soklem – kombinace působí moderně a nadčasově. Dešťová voda je zachytávaná do podzemní nádrže. Následně je využívaná k zalévání zahrady a provozu WC Stavba stojí na rovinatém pozemku v klidné části obce, s výborným příjezdem po veřejné komunikaci ve vzdálenosti 291 metrů (6 minut chůze) od zastávky MHD. Objekt je napojen na systém veřejného vodovodu a kanalizace. Místo je ideální pro rodiny s dětmi – v blízkosti je příroda, cyklostezky a ve Strakonicích kompletní občanská vybavenost (školy, školy, obchody, lékaři, služby).

Makléř

Máte zájem o tento dům?

Tímto, v souladu s nařízením Evropského parlamentu a Rady (EU) 2016/679, v platném znění, prohlašuji, že mi je alespoň 16 let a uděluji tak svůj souhlas se zpracováním zadaných údajů (jméno, telefon, e-mail, ip adresa) společnosti B3 Technology, s.r.o., IČ: 07330600, se sídlem Novostavby 126/23, 435 11 Lom (správce dat), za účelem předání dotazu z tohoto formuláře Vámi vybranému inzerentovi a zpětného kontaktování mé osoby. Osobní údaje bude správce zpracovávat manuálně i automaticky přímo prostřednictvím svých zaměstnanců. Informace předané tímto formulářem budou uloženy v databázi správce maximálně po dobu 10 let. Odvolání souhlasu s uložením a zpracováním poskytnutých dat lze e-mailem na info@origo-reality.cz. V případě podezření na neoprávněné použití Vámi poskytnutých údajů máte právo předat podnět k šetření Úřadu pro ochranu osobních údajů. Více informací
Chystáte se prodat nemovitost?
Pomůžeme Vám!

Přihlášení k odběru

Nenechte si ujít nejnovější nabídky prodeje rodinných domů v Strakonicích.