Prodej pozemku pro bydlení, Tupadly, 13059 m2

Tupadly

Cena na vyžádání
/za nemovitost
Získejte výhodnou HYPOTÉKU Chci hypotéku

Parametry pozemku

AdresaTupadly
ID210913
Plocha pozemku13059 m2
Elektřina230V
OdpadSeptik
DopravaSilnice, Autobus
VodaVodovod

Origo partneři v Tupadlech

Popis

Jedinečná developerská příležitost v srdci Kokořínska

Nabízíme Vám výjimečnou příležitost ke koupi uceleného souboru stavebních pozemků s již připraveným developerským projektem, situovaného v malebné obci Tupadly na Kokořínsku – lokalitě vyhledávané pro svou čistou přírodu, klid a udržovaný ráz obce.

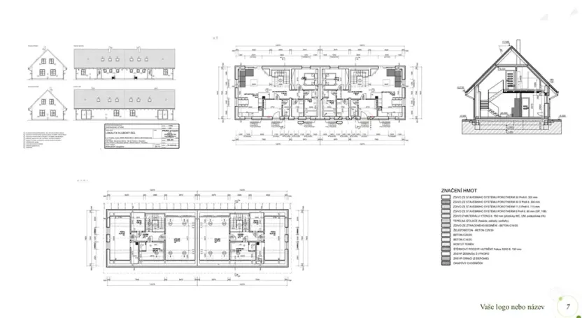
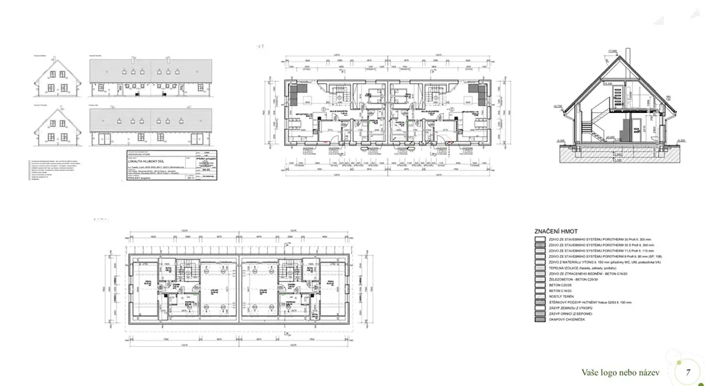
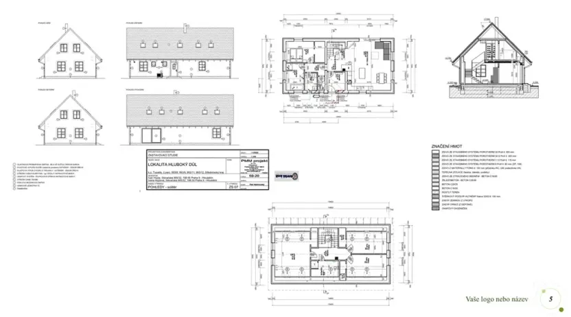
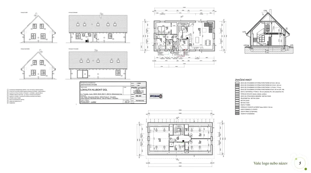
Celková výměra pozemků činí 13 059 m² a jedná se o soubor 9 stavebních parcel, které tvoří kompaktní celek ideální pro realizaci menší rezidenční výstavby.
Velkou výhodou této nabídky je, že pro lokalitu již existuje schválený projekt včetně veškerých potřebných stavebních povolení.
Budoucí investor tak získává projekt připravený k okamžité realizaci, bez zdlouhavého povolovacího procesu.

Inženýrské sítě jsou již vyřešeny – k pozemkům je přiveden nový vodovodní řád a každý pozemek je samostatně napojen na elektřinu, včetně vlastního elektroměrového pilíře.
Tento projekt nabízí ideální kombinaci atraktivní lokality, připravené infrastruktury a výrazného investičního potenciálu. Je vhodný jak pro developerskou výstavbu, tak pro dlouhodobé uložení kapitálu v jedné z nejžádanějších oblastí středních Čech.

Schválený projekt + stavební povolení – možnost okamžité výstavby
9 stavebních pozemků – ideální rozsah pro menší developerský projekt
Kompletní inženýrské sítě – vodovod, elektřina na každém pozemku
Atraktivní lokalita Kokořínska – dlouhodobě vysoká poptávka
Možnost postupného rozprodeje pozemků nebo rodinných domů
Výrazný potenciál zhodnocení investice

Tupadly – Kokořínsko
9 stavebních pozemků | 13 059 m²
⚡ Elektřina + vodovod | schválený projekt | stavební povolení

Pro více informací či osobní prohlídku nás neváhejte kontaktovat.

Makléř

Máte zájem o tento pozemek?

Tímto, v souladu s nařízením Evropského parlamentu a Rady (EU) 2016/679, v platném znění, prohlašuji, že mi je alespoň 16 let a uděluji tak svůj souhlas se zpracováním zadaných údajů (jméno, telefon, e-mail, ip adresa) společnosti B3 Technology, s.r.o., IČ: 07330600, se sídlem Novostavby 126/23, 435 11 Lom (správce dat), za účelem předání dotazu z tohoto formuláře Vámi vybranému inzerentovi a zpětného kontaktování mé osoby. Osobní údaje bude správce zpracovávat manuálně i automaticky přímo prostřednictvím svých zaměstnanců. Informace předané tímto formulářem budou uloženy v databázi správce maximálně po dobu 10 let. Odvolání souhlasu s uložením a zpracováním poskytnutých dat lze e-mailem na info@origo-reality.cz. V případě podezření na neoprávněné použití Vámi poskytnutých údajů máte právo předat podnět k šetření Úřadu pro ochranu osobních údajů. Více informací
Chystáte se prodat nemovitost?
Pomůžeme Vám!

Přihlášení k odběru

Nenechte si ujít nejnovější nabídky prodeje pozemků pro bydlení v Tupadlech (okr. Mělník).