Pronájem rodinného domu, Mikulovice, V Zahradách, 131 m2

V Zahradách, Mikulovice

30 000 Kč
/za měsíc
+ 3.500 Kč záloha na energie a služby
Získejte výhodnou HYPOTÉKU Chci hypotéku

Parametry domu

AdresaV Zahradách, Mikulovice
IDXA-471
StavbaCihlová
Stav objektuNovostavba
Typ objektuPřízemní
Druh objektuSamostatný
Užitná plocha131 m2
Zastavěná plocha200 m2
Podlahová plocha131 m2
Plocha pozemku1213 m2
Plocha zahrady1005 m2
Elektřina230V, 400V
OdpadČOV pro celý objekt
KomunikaceAsfaltová
TelekomunikaceInternet
VodaVodovod, Studna, Retenční nádrž na dešt’ovou vodu
Topné tělesoPodlahové vytápění
Zdroj topeníTepelné čerpadlo
Zdroj teplé vodyTepelné čerpadlo
Sklep
Bezbarierový přístup
Parkování

Origo partneři v Mikulovicích

Popis

Dobrý den, hledáte pronájem rodinného domu v Pardubicích a blízkém okolí? Máte pocit, že nabídka je malá nebo Vám nepadla do vkusu?

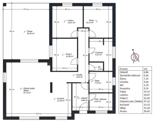
Připravili jsme pro Vás pronájem novostavby rodinného domu 4+kk o ploše 131 m2 + zastřešená terasa 36,45 m2. Tento světlý a prostorný dům se nachází v obci Mikulovice u Pardubic. Dominantou je velký obývací pokoj propojený s kuchyňským koutem. Kuchyňský kout je zařízený potřebnými spotřebiči (lednička s mrazákem, pečící a mikrovlnná trouba, varná deska, odsavač par, myčka nádobí).

Dispozice domu obsahuje 3 samostatné pokoje, dominantní obývací pokoj (jak bylo uvedeno), technickou místnost, prostornou koupelnu s vanou i sprchovým koutem, samostatné WC a šatnu, ze které může být pracovna. A pro milovníky venkovního posezení jsou zde dvě terasy, jedna zastřešená a jedna nezastřešená obě s krásným výhledem na Pardubice a při dobré viditelnosti i mnohem dále. Díky umístění ve svahu je k dispozici sklep o výměře 35 m2.

Kaskádovitá zahrada se právě dokončuje, ale to nebrání v pronájmu domu. Díky velmi dobrému zateplení a způsobu vytápění tepelným čerpadlem vzduch - voda s podlahovým systémem se očekávají i nízké náklady na bydlení. To vše je podpořeno vlastní studnou, která dodává vodu do celého domu, vyjma kuchyňského koutu, který je napojen na obecní vodovod. Odpady jsou řešeny prostřednictvím vlastní ČOV. Dále je na zahradě retenční nádrž o objemu 8 m3 na sběr dešťové vody pro zalévání zahrady.

Před domem se nachází zpevněné parkovací stání pro 4 osobní vozidla a další dvě stání, například pro návštěvu.

Pokud jste rodina, která hledá větší životní prostor v kombinaci komfortního bydlení, velké zahrady a dobré dopravní dostupnosti do Pardubic i Chrudimi. Mohla by být tato nabídka pro Vás zajímavá.

Výše nájmu činí 30.000 Kč + 3.500 Kč zálohy na energie a služby spojené s užíváním domu. Peněžitá jistota (vratná kauce) činí 67.000 Kč. Provize RK je ve výši 25.000 Kč.

Volný ihned.

Děkuji za pozornost a budu se těšit na osobní setkání spojené s prohlídkou. Václav Růžička, realitní specialista.

Pronajímatel si vyhrazuje právo vybrat nájemce podle jím zvolených kritérií.

Makléř

Máte zájem o tento dům?

Tímto, v souladu s nařízením Evropského parlamentu a Rady (EU) 2016/679, v platném znění, prohlašuji, že mi je alespoň 16 let a uděluji tak svůj souhlas se zpracováním zadaných údajů (jméno, telefon, e-mail, ip adresa) společnosti B3 Technology, s.r.o., IČ: 07330600, se sídlem Novostavby 126/23, 435 11 Lom (správce dat), za účelem předání dotazu z tohoto formuláře Vámi vybranému inzerentovi a zpětného kontaktování mé osoby. Osobní údaje bude správce zpracovávat manuálně i automaticky přímo prostřednictvím svých zaměstnanců. Informace předané tímto formulářem budou uloženy v databázi správce maximálně po dobu 10 let. Odvolání souhlasu s uložením a zpracováním poskytnutých dat lze e-mailem na info@origo-reality.cz. V případě podezření na neoprávněné použití Vámi poskytnutých údajů máte právo předat podnět k šetření Úřadu pro ochranu osobních údajů. Více informací
Chystáte se prodat nemovitost?
Pomůžeme Vám!

Přihlášení k odběru

Nenechte si ujít nejnovější nabídky pronájmu rodinných domů v Mikulovicích (okr. Pardubice).