Prodej rodinného domu, Mělník, 123 m2

Mělník

11 562 000 Kč
/za nemovitost
za 1 bytovou jednotku, včetně DPH, včetně poplatků, včetně provize, včetně právního servisu, cena k jednání
Hypotéka od 51 675 Kč /měs. Chci hypotéku

Parametry domu

AdresaMělník
ID00025
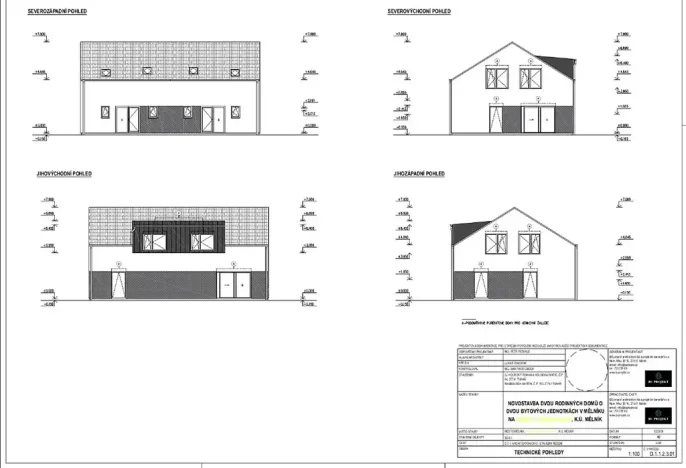
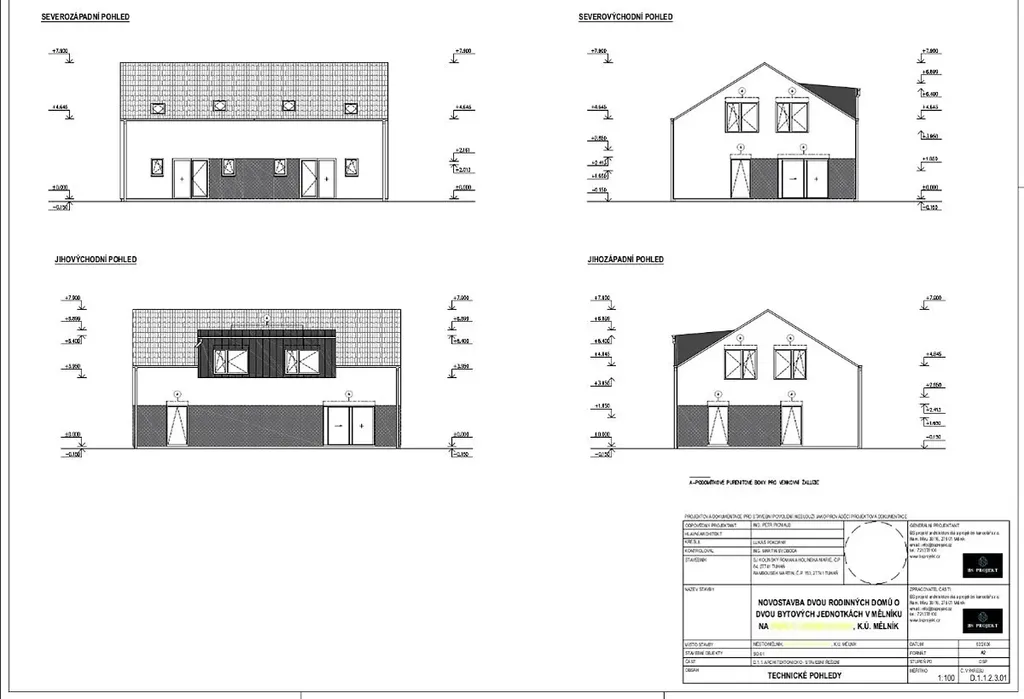
StavbaCihlová
Stav objektuProjekt
VybavenoČástečně
Druh objektuSamostatný
Lokalita objektuKlidná část obce
Užitná plocha123 m2
Zastavěná plocha82 m2
Plocha pozemku474 m2
Plocha zahrady392 m2
Třída energetické náročnostiG - Mimořádně nehospodárná
Elektřina230V, 400V
OdpadČOV pro celý objekt
KomunikaceNeupravená
DopravaVlak, Silnice, MHD, Autobus
VodaVodovod
Topné tělesoPodlahové vytápění
Zdroj topeníTepelné čerpadlo
Zdroj teplé vodyTepelné čerpadlo
Výtah
Parkování

Origo partneři v Mělníku

Pojištění a finance

Popis

Nabízím k prodeji bytovou jednotku v připravovaném projektu výstavby dvou samostatně stojících rodinných domů, přičemž každý dům obsahuje 2 bytové jednotky. Výstavbu je možné zahájit nejdříve 08/2026.
Uvedená cena 4 400 000,-/1 BJ zahrnuje:
- podíl na pozemku
- kompletní projektovou dokumentaci
- projekt splňující energetickou třídu B - velmi úsporná
- možnost realizace výstavby na klíč dle projektu
- inženýrské sítě dle projektu
Celková cena 1BJ včetně výstavby na klíč vychází cca 11 562 000,-
Hlavní výhody:
- nízkoenergetická novostavba B
- menší projekt = více soukromí
- atraktivní lokalita Mělník (Chloumek)
- koncový pozemek na výstavbu dle územního plánu
- moderní architektonické řešení
- vhodné pro investory i koncové bydlení
- zdvojené sousední zdi proti hluku
- 2 parkovací stání u domu, dle projektu
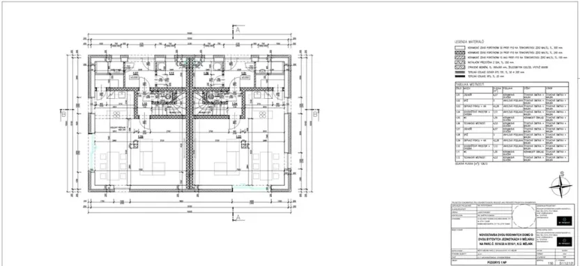
Dispozice a řešení:
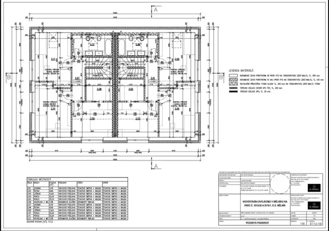
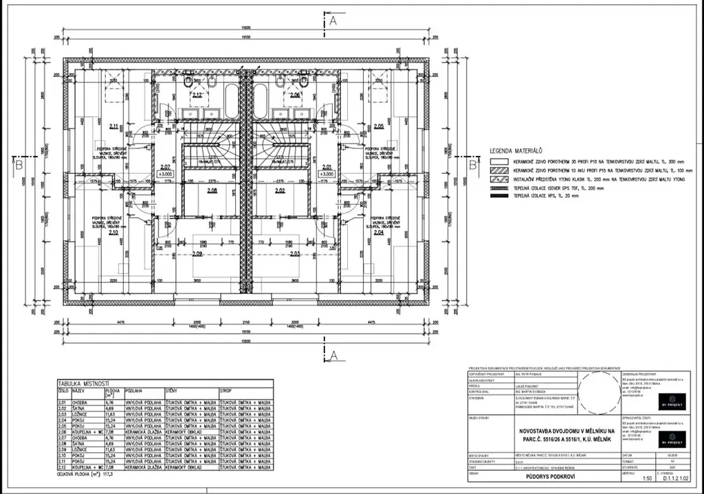
- bytová jednotka o dispozici 4+kk
- 123m2 užitné plochy s pozemkem o velikosti 392m2
- praktické a moderní dispoziční řešení
- možnost klientských změn dle fáze projektu

Pro více informací nebo osobní konzultaci mě neváhejte kontaktovat. Financování hypotéky zajišťujeme zdarma, včetně právního servisu.
Komplexní občanská vybavenost města Mělník, které je též bohaté na svou historii.
Nedaleko CHKO Kokořín.
Doprava - vysoká dopravní obslužnost MHD, autobusy, vlaky, jízda autem Praha cca 30 minut.

Makléř

Máte zájem o tento dům?

Tímto, v souladu s nařízením Evropského parlamentu a Rady (EU) 2016/679, v platném znění, prohlašuji, že mi je alespoň 16 let a uděluji tak svůj souhlas se zpracováním zadaných údajů (jméno, telefon, e-mail, ip adresa) společnosti B3 Technology, s.r.o., IČ: 07330600, se sídlem Novostavby 126/23, 435 11 Lom (správce dat), za účelem předání dotazu z tohoto formuláře Vámi vybranému inzerentovi a zpětného kontaktování mé osoby. Osobní údaje bude správce zpracovávat manuálně i automaticky přímo prostřednictvím svých zaměstnanců. Informace předané tímto formulářem budou uloženy v databázi správce maximálně po dobu 10 let. Odvolání souhlasu s uložením a zpracováním poskytnutých dat lze e-mailem na info@origo-reality.cz. V případě podezření na neoprávněné použití Vámi poskytnutých údajů máte právo předat podnět k šetření Úřadu pro ochranu osobních údajů. Více informací
Chystáte se prodat nemovitost?
Pomůžeme Vám!
Theleadway banner

Přihlášení k odběru

Nenechte si ujít nejnovější nabídky prodeje rodinných domů v Mělníku.