Pronájem bytu 2+kk, Jindřichův Hradec, nám. Míru, 39 m2

nám. Míru, Jindřichův Hradec I

12 500 Kč
/za měsíc
Záloha na dodávku energií a služeb pro 1 osobu +2.500,– Kč/měsíc, každá další osoba +150,– Kč/měsíc. Vratná kauce 25.000,- Kč. Provize pro RK 10.000,-
Získejte výhodnou HYPOTÉKU Chci hypotéku

Parametry bytu

Adresanám. Míru, Jindřichův Hradec I
ID2026016
StavbaCihlová
Stav objektuVelmi dobrý
Patro2. z 3
Lokalita objektuCentrum obce
VlastnictvíOsobní
Užitná plocha39 m2
Podlahová plocha39 m2
Třída energetické náročnostiB - Velmi úsporná
Elektřina230V
PlynPlynovod
OdpadVeřejná kanalizace
TopeníÚstřední plynové
KomunikaceDlážděná
DopravaVlak, Silnice, MHD
VodaVodovod
Topné tělesoPodlahové vytápění
Zdroj topeníPlynový kotel
Terasa
Výtah
Bezbarierový přístup

Origo partneři v Jindřichově Hradci

Výkup a prodej starého nábytku

Popis

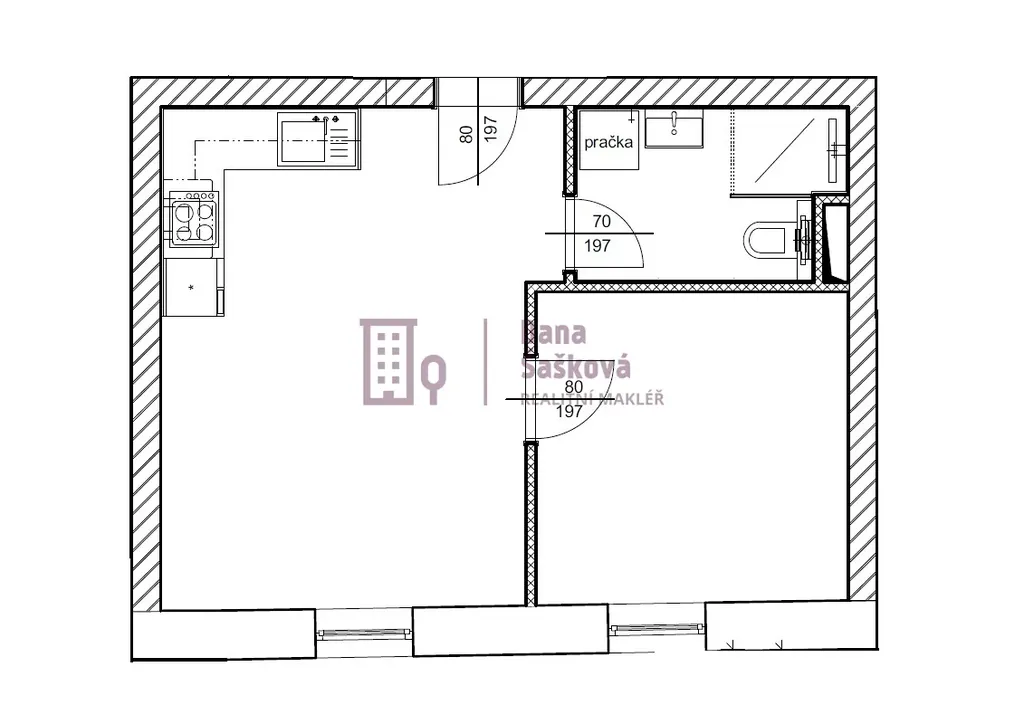
Pronájem bytu o dispozici 2+kk v prvním patře bytového domu s výhledem na rybník Vajgar na adrese náměstí Míru, Jindřichův Hradec.
Podlahová plocha 39 m2 nabízí pokoj s kuchyňským koutem a koupelnu s toaletou a sprchovým koutem.
Byt je vybavený kuchyňskou linkou, elektrickou troubou, varnou deskou a digestoří.
Dům splňuje standardy moderního bydlení, celá budova se vyznačuje nízkou energetickou náročností.
Možnost parkování přímo u domu za příplatek +500,- Kč/měsíc.
Záloha na dodávku energií a služeb pro 1 osobu +2.500,– Kč/měsíc, každá další osoba +150,– Kč/měsíc. Vratná kauce 25.000,- Kč. Provize pro RK 10.000,- Kč.
Pronajímatel si vyhrazuje výběr nájemce dle svých vlastních kritérií.
K nastěhování od 1. listopadu 2025.

Makléř

Máte zájem o tento byt?

Tímto, v souladu s nařízením Evropského parlamentu a Rady (EU) 2016/679, v platném znění, prohlašuji, že mi je alespoň 16 let a uděluji tak svůj souhlas se zpracováním zadaných údajů (jméno, telefon, e-mail, ip adresa) společnosti B3 Technology, s.r.o., IČ: 07330600, se sídlem Novostavby 126/23, 435 11 Lom (správce dat), za účelem předání dotazu z tohoto formuláře Vámi vybranému inzerentovi a zpětného kontaktování mé osoby. Osobní údaje bude správce zpracovávat manuálně i automaticky přímo prostřednictvím svých zaměstnanců. Informace předané tímto formulářem budou uloženy v databázi správce maximálně po dobu 10 let. Odvolání souhlasu s uložením a zpracováním poskytnutých dat lze e-mailem na info@origo-reality.cz. V případě podezření na neoprávněné použití Vámi poskytnutých údajů máte právo předat podnět k šetření Úřadu pro ochranu osobních údajů. Více informací
Chystáte se prodat nemovitost?
Pomůžeme Vám!