Pronájem bytu 2+kk, Praha - Vinohrady, Jana Masaryka, 60 m2

Jana Masaryka, Praha 2, Vinohrady

26 000 Kč
/za měsíc
+ poplatky 1.250 Kč/os/měs, energie se přehlašují na nájemce, provize 1 nájem
Získejte výhodnou HYPOTÉKU Chci hypotéku

Parametry bytu

AdresaJana Masaryka, Praha 2, Vinohrady
ID89
StavbaCihlová
Stav objektuPo rekonstrukci
Patro3. z 3
Typ objektuPatrový
VlastnictvíOsobní
Užitná plocha60 m2
Podlahová plocha60 m2
Bezbarierový přístup

Origo partneři v Praze 2

Stěhovací služby

Výkup a prodej starého nábytku

Popis

Ve vyhledávané lokalitě Vinohrad nabízím k pronájmu krásný, zrekonstruovaný byt 2+kk.
Lokalita je velmi klidná a přitom s výbornou dopravní dostupností. Dům je situován v ul. Jana Masaryka, v docházkové vzdálenosti nejen na tramvajovou zastávku, ale také na metro Náměstí Míru. U domu se nachází udržovaná zahrada, která je nájemníkům k dispozici. V okolí se nachází obchody, kavárny a restaurace, v blízkosti je také vyhledávaný park Grébovka.
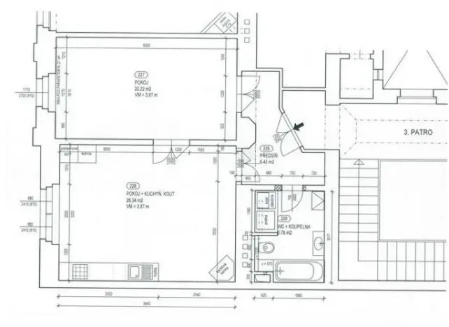
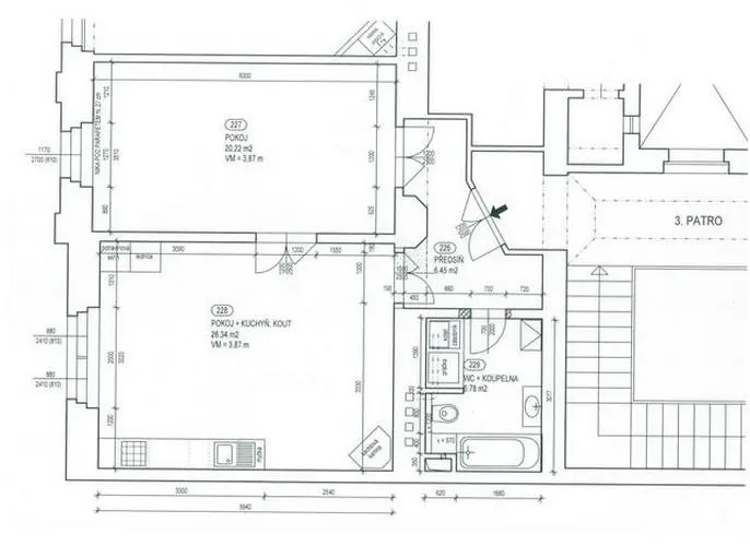
Byt se nachází ve 2.patře domu. Celková plocha bytu je 60 m2 a sestává ze vstupní předsíně, obývacího pokoje s kuchyní, ložnice, koupelny s vanou společné s toaletou. Byt je vybaven kvalitní kuch. linkou se zabudovanými spotřebiči. Na podlaze jsou parkety, v bytě jsou vysoké stropy, dveře jsou dřevěné dvoukřídlé. V bytě se nachází krásná kachlová krbová kamna.
Paušál na domovní služby je 900 Kč/os/měs, záloha na vodu činí 350 Kč/os/měs. Energie v bytě se přehlašují na nájemce. Majitelé požadují kauci ve výši 2 nájmů, provize je 1 nájem.
Byt je vhodný pro 1 osobu nebo pro pár. K dispozici bude od 1.5.2026. Prohlídky jsou možné po dohodě předem.

Makléř

Máte zájem o tento byt?

Tímto, v souladu s nařízením Evropského parlamentu a Rady (EU) 2016/679, v platném znění, prohlašuji, že mi je alespoň 16 let a uděluji tak svůj souhlas se zpracováním zadaných údajů (jméno, telefon, e-mail, ip adresa) společnosti B3 Technology, s.r.o., IČ: 07330600, se sídlem Novostavby 126/23, 435 11 Lom (správce dat), za účelem předání dotazu z tohoto formuláře Vámi vybranému inzerentovi a zpětného kontaktování mé osoby. Osobní údaje bude správce zpracovávat manuálně i automaticky přímo prostřednictvím svých zaměstnanců. Informace předané tímto formulářem budou uloženy v databázi správce maximálně po dobu 10 let. Odvolání souhlasu s uložením a zpracováním poskytnutých dat lze e-mailem na info@origo-reality.cz. V případě podezření na neoprávněné použití Vámi poskytnutých údajů máte právo předat podnět k šetření Úřadu pro ochranu osobních údajů. Více informací
Chystáte se prodat nemovitost?
Pomůžeme Vám!