Prodej rodinného domu, Bublava, 100 m2

Bublava

3 190 000 Kč

včetně provize RK
Hypotéka od 14 257 Kč /měs. Chci hypotéku

Parametry domu

AdresaBublava
ID260202
Stav objektuPřed rekonstrukcí
Druh objektuSamostatný
VlastnictvíOsobní
Užitná plocha100 m2
Zastavěná plocha410 m2
Třída energetické náročnostiG - Mimořádně nehospodárná

Origo partneři v Bublavě

Popis

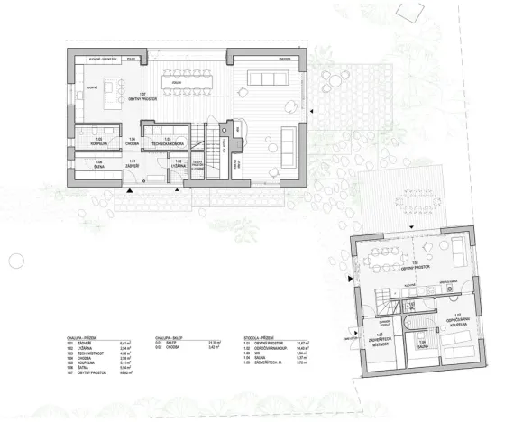
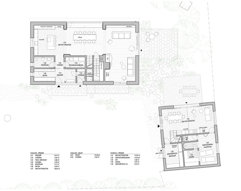
Nabízíme k prodeji stavební parcelu č. 64, jejíž součástí je stavba rodinného domu č. p. 206, zapsaná v katastru nemovitostí jako rodinný dům.
Nemovitost je vhodná k celkové rekonstrukci nebo demolici a nové výstavbě.

Majitel má k dispozici stavební projekt na realizace domu a domu pro hosty. viz vizualice a stavební povolení platné do 12/2027.

Základní informace o pozemku:
Zastavěná plocha a nádvoří: 414 m² zahrunje Rodiný dům plus Další stavba (stodola):

Trvalý travní porost: 540 m²

Pozemek tvoří ucelený celek, který nabízí dostatek prostoru jak pro nový rodinný dům, tak pro rekreační využití.

Velkou výhodou je okolí pozemku
Dle územního plánu je výstavba regulována podmínkami prostorového uspořádání, které respektují venkovský charakter obce, výškovou hladinu okolní zástavby a požadavek na dostatečný podíl zeleně. Ppzemk je označen:

SR = plochy smíšené obytné – rekreační

To jsou plochy, kde územní plán neodděluje striktně „trvalé bydlení“ a „rekreační využití“, ale umožňuje jejich prolínání.

Sousední pozemky jsou ve vlastnictví obce Bublava (parcely vedené jako trvalý travní porost a ostatní plocha).

Tyto pozemky nejsou dle územního plánu určeny k výstavbě, což zajišťuje dlouhodobý klid, soukromí a žádnou budoucí zástavbu v bezprostředním okolí.

Přístupová cesta k nemovitosti přes obecní pozemek - ošetřeno věcným břemenem chůze ja jízdy,

Dům je napojený na vodu, elektřinu a kanalizaci
Projekt k dispozici
Součástí nabídky je projekt stavebních úprav, který si nechali zpracovat současný vlastník. Kupující tak může navázat na již připravený záměr, nebo realizovat vlastní představu o využití pozemku. Dále je na pozemku platné stavební povolení do 12/2027.

Lokalita
Bublava se nachází v Krušných horách, přímo u hranice s Německem. Lokalita je ideální pro milovníky přírody, klidu a hor – s celoročním využitím (turistika, běžky, lyžování).
Kompletní občanská vybavenost (škola, lékař, obchody, služby) je dostupná v nedalekých Kraslicích.
V oblasti Bublavy se nachází Ski Centrum Bublava Stříbrná, která patří mezi nejlépe vybavené lyžařské areály v ČR s úplným spektrem doprovodných služeb. Pro svou výhodnou polohu v samém středu nejzápadnějšího výběžku Krušných hor s dostatkem sněhu patří již od počátku minulého století mezi vyhledávaná celoroční turistická střediska.

Makléř

Máte zájem o tento dům?

Tímto, v souladu s nařízením Evropského parlamentu a Rady (EU) 2016/679, v platném znění, prohlašuji, že mi je alespoň 16 let a uděluji tak svůj souhlas se zpracováním zadaných údajů (jméno, telefon, e-mail, ip adresa) společnosti B3 Technology, s.r.o., IČ: 07330600, se sídlem Novostavby 126/23, 435 11 Lom (správce dat), za účelem předání dotazu z tohoto formuláře Vámi vybranému inzerentovi a zpětného kontaktování mé osoby. Osobní údaje bude správce zpracovávat manuálně i automaticky přímo prostřednictvím svých zaměstnanců. Informace předané tímto formulářem budou uloženy v databázi správce maximálně po dobu 10 let. Odvolání souhlasu s uložením a zpracováním poskytnutých dat lze e-mailem na info@origo-reality.cz. V případě podezření na neoprávněné použití Vámi poskytnutých údajů máte právo předat podnět k šetření Úřadu pro ochranu osobních údajů. Více informací
Chystáte se prodat nemovitost?
Pomůžeme Vám!

Přihlášení k odběru

Nenechte si ujít nejnovější nabídky prodeje rodinných domů v Bublavě.