Remax Monarcha

Pronájem bytu 2+kk, Olomouc, Purkyňova, 62 m2

Purkyňova, Olomouc, Hodolany

17 000 Kč
/za měsíc
Získejte výhodnou HYPOTÉKU Chci hypotéku

Parametry bytu

AdresaPurkyňova, Olomouc, Hodolany
ID974076
StavbaSmíšená
Stav objektuVelmi dobrý
Patro1. z 3
VybavenoAno
VlastnictvíOsobní
Užitná plocha62 m2
Podlahová plocha55 m2
Třída energetické náročnostiG - Mimořádně nehospodárná
Elektřina230V
Topné tělesoPodlahové vytápění
Zdroj topeníÚstřední dálkové
Sklep

Origo partneři v Olomouci

Popis

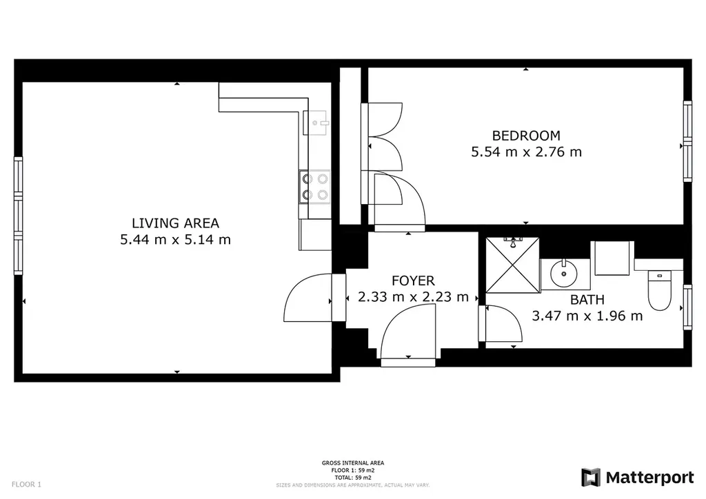
Pokud jste nároční a hledáte k pronájmu byt zrekonstruovaný ve vysokém standardu a navíc vybavený, tak čtěte dále. Byt o velikosti 55 m2, který je dispozičně řešen jako 2+kk je od 1.3. k dispozici.

V bytě byla udělána celková rekonstrukce, která zahrnovala nové plovoucí podlahy, krásnou koupelnu i designovou kuchyni. Byt má podlahové vytápění a je vybaven moderními světelnými prvky v kuchyni a obývacím pokoji.
Obývací pokoj o rozměrech 28 m2 je spojen s kuchyňským koutem. V koupelně je sprchový kout a WC. Ložnice o rozměrech 15 m2 má okna orientovaná do vnitrobloku.

Byt se pronajímá plně vybavený. Obývací pokoj: pohovka, konferenční stůl, televize, jídelní stůl a 2 židle. Kuchyň: myčka, elektrický sporák, rychlovarná konvice. Ložnice: postel, noční stolky, vestavěné skříně. Koupelna: pračka.
K bytu také náleží sklep o velikosti 7 m2 a možnost vstupu na společný dvůr. Parkování je možné před domem. Hlavní vlakové nádraží je v docházkové vzdálenosti, stejně jako veškerá občanská vybavenost (obchod, restaurace, školka).

Čistý nájem je 17 000 Kč, zálohy na vodu, teplo, el. sp. prostor jsou 3 000 Kč. Internet 500 Kč. Elektřinu si nájemník přepíše na sebe. Majitel požaduje jednoměsíční kauci. Provize za zprostředkování ve výši jednoho nájmu.

Pro více informací mě, prosím, informujte.

Makléř

Máte zájem o tento byt?

Tímto, v souladu s nařízením Evropského parlamentu a Rady (EU) 2016/679, v platném znění, prohlašuji, že mi je alespoň 16 let a uděluji tak svůj souhlas se zpracováním zadaných údajů (jméno, telefon, e-mail, ip adresa) společnosti B3 Technology, s.r.o., IČ: 07330600, se sídlem Novostavby 126/23, 435 11 Lom (správce dat), za účelem předání dotazu z tohoto formuláře Vámi vybranému inzerentovi a zpětného kontaktování mé osoby. Osobní údaje bude správce zpracovávat manuálně i automaticky přímo prostřednictvím svých zaměstnanců. Informace předané tímto formulářem budou uloženy v databázi správce maximálně po dobu 10 let. Odvolání souhlasu s uložením a zpracováním poskytnutých dat lze e-mailem na info@origo-reality.cz. V případě podezření na neoprávněné použití Vámi poskytnutých údajů máte právo předat podnět k šetření Úřadu pro ochranu osobních údajů. Více informací
Chystáte se prodat nemovitost?
Pomůžeme Vám!

Přihlášení k odběru

Nenechte si ujít nejnovější nabídky pronájmu bytů 2+kk v Olomouci.