Pronájem bytu 2+kk, Praha - Vršovice, Oblouková, 60 m2

Oblouková, Praha, Vršovice

27 000 Kč
/za měsíc
+ poplatky/měsíc: 4000 Kč
Získejte výhodnou HYPOTÉKU Chci hypotéku

Parametry bytu

AdresaOblouková, Praha, Vršovice
ID523782
StavbaCihlová
Stav objektuVelmi dobrý
Patro5. z 5
VybavenoNe
VlastnictvíOsobní
Užitná plocha60 m2
Třída energetické náročnostiG - Mimořádně nehospodárná
Balkon
Sklep
Výtah
Převod do OV

Origo partneři v Praze 10

Stěhovací služby

Výkup a prodej starého nábytku

Popis

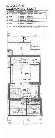
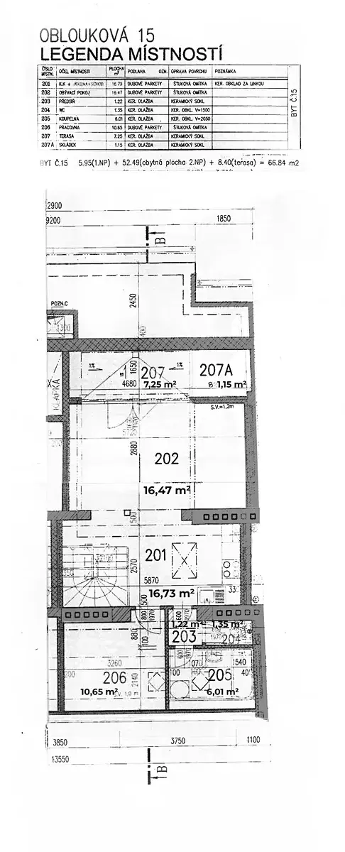
Nabízíme nezařízený mezonetový byt 2+kk k pronájmu o velikosti 60 m2 s terasou 8 m2, situovaný v 5.NP domu s výtahem. Nemovitost se nachází v krásné lokalitě Prahy 10 - Vršovice disponující veškerou občanskou vybaveností a dobrou dopravní infrastrukturou.


Tento světlý nezařízený byt k pronájmu nabízí k užívání vstupní chodbu, obývací pokoj s kuchyňským koutem, ložnici, koupelnu, samostatnou toaletu. K bytu náleží sklepní kóje a terasa s výhledem na Prahu.


Byt nabízí dostatek úložného prostoru díky vestavěným skříním ve vstupní chodbě i praktickému úložnému prostoru pod schody. Kuchyňský kout je plně vybaven sklokeramickou varnou deskou, troubou, lednicí s mrazákem a myčkou nádobí. Koupelna je vybavena vanou a pračkou. Komfort bydlení zvyšuje klimatizace a venkovní rolety, v bytě je samostatné vytápění řešené kondenzačním plynovým kotlem, k dispozici jsou rovněž rozvody TV a internetového připojení.


Lokalitu tvoří bytové domy a disponuje výbornou dopravní dostupností. Na stanici metra Želivského či Strašnická vás doveze MHD za 6 minut, vlakem je to do centra Prahy 5 minut a autem dojedete na městský okruh za 6 minut, na letiště Václava Havla za 30 minut a do OC Eden za 3 minuty. V okolí najdete veškerou občanskou vybavenost – mateřské, základní a střední školy, gymnázium, obchody, nemocnici, lékaře, lékárny, restaurace, supermarkety, dětská hřiště a poštu. Pro volnočasové aktivity můžete využít v okolí fotbalový stadion, hřiště na házenou, volejbalový klub, tenisové kurty, venkovní posilovny, zimní stadion a koupaliště. Na procházku se lze vydat podél Botiče do parku Jezerka nebo vyrazit na kole do Havlíčkových sadů či na Peruckou stráň.



Výše vyúčtovatelných měsíčních záloh činí 4 000 Kč.


Poptávající klient je srozuměn s úhradou provize ve výši 1 měsíčního nájmu plus DPH.


Pokud si nemovitost nemůžete prohlédnout osobně, nabízíme Vám také videoprohlídku z pohodlí Vašeho domova v reálném čase přes Messenger, WhatsApp a další komunikační platformy.

Makléř

Máte zájem o tento byt?

Tímto, v souladu s nařízením Evropského parlamentu a Rady (EU) 2016/679, v platném znění, prohlašuji, že mi je alespoň 16 let a uděluji tak svůj souhlas se zpracováním zadaných údajů (jméno, telefon, e-mail, ip adresa) společnosti B3 Technology, s.r.o., IČ: 07330600, se sídlem Novostavby 126/23, 435 11 Lom (správce dat), za účelem předání dotazu z tohoto formuláře Vámi vybranému inzerentovi a zpětného kontaktování mé osoby. Osobní údaje bude správce zpracovávat manuálně i automaticky přímo prostřednictvím svých zaměstnanců. Informace předané tímto formulářem budou uloženy v databázi správce maximálně po dobu 10 let. Odvolání souhlasu s uložením a zpracováním poskytnutých dat lze e-mailem na info@origo-reality.cz. V případě podezření na neoprávněné použití Vámi poskytnutých údajů máte právo předat podnět k šetření Úřadu pro ochranu osobních údajů. Více informací
Chystáte se prodat nemovitost?
Pomůžeme Vám!

Přihlášení k odběru

Nenechte si ujít nejnovější nabídky pronájmu bytů 2+kk v Praze 10.