Prodej rodinného domu, Zlín, Pohanková, 118 m2 (ID: 1952240)

Pohanková, Zlín

9 840 000 Kč
/za nemovitost
Cena včetně výstavby domu na klíč, pozemku a DPH. VOLNÝ!
Hypotéka od 43 979 Kč /měs. Chci hypotéku

Parametry domu

AdresaPohanková, Zlín
ID654122
StavbaCihlová
Stav objektuVe výstavbě
Typ objektuPatrový
Druh objektuŘadový
Lokalita objektuKlidná část obce
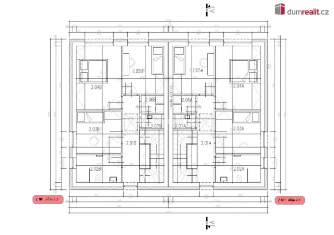
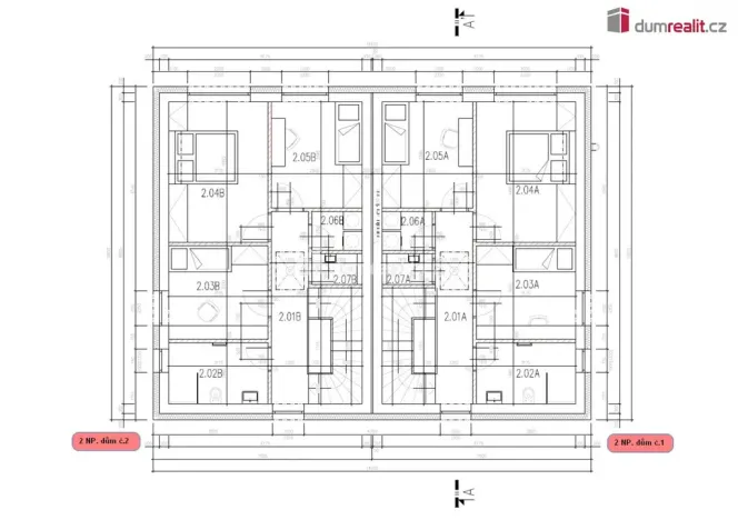
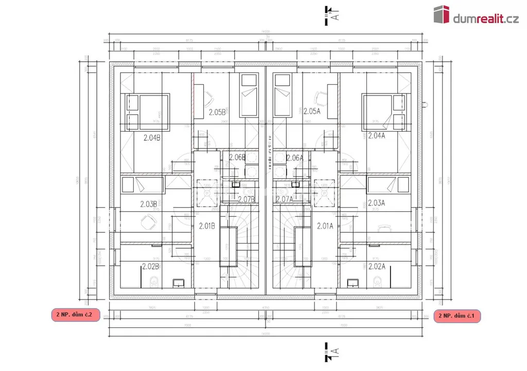
Užitná plocha118 m2
Zastavěná plocha74 m2
Podlahová plocha118 m2
Plocha pozemku488 m2
Třída energetické náročnostiA - Mimořádně úsporná
Ukazatel energetické náročnosti49 kWh/m2 za rok
Parkování

Origo partneři v Zlíně

Popis

Dumrealit.cz Vám zprostředkuje výstavbu patrového domu 4+kk o užitné ploše 118 m² v provedení na klíč s pozemkem v Kostelci u Zlína. Tento dvojdům jsme již zahájili, takže se můžete přidat a stát se majiteli nového domu č.2 a do konce roku 2026 bydlet. Součástí ceny je dům, pozemek č.2 o velikosti 488 m² (šíře 10,5 m a délka cca 46 m), příprava pozemku pro stavbu, připojení domu na inženýrské sítě, přípojné místo NN, retenční nádrž a parkovací místo o velikosti 36m². Dům je realizován jako dvojdomek. Zastavěná plocha jednodomku je 74 m² s užitnou plochou. Prodej pozemků bez výstavby neumožňujeme, pouze pozemky č.5 a 6 s výstavbou do dvou let. V projektu jsou možné variabilní úpravy dispozice (posuny příček) a máme i připravený projekt dům s garáží. Patrový dům je ideální pro 5 člennou rodinu s nízkými provozními náklady. Uvedená cena je za pozemek, kompletní stavbu domu v provedení na klíč, projektové dokumentace, vyřízení stavebního povolení, základové desky až po kolaudaci. V uvedené ceně můžete počítat také s finálními povrchovými úpravami exteriéru i interiéru, a to včetně elektroinstalací, sanitárního vybavení s bateriemi, interiérovými dveřmi včetně obložek a vytápění bude řešeno teplovodním podlahovým topením v kombinaci tepelného čerpadla se 180L zásobníkem na teplou vodu. Dle dohody změníme systém vytápění nebo vystavíme komín pro krbové kamna nebo pro využití krbové vložky. Kryté garážové stání spojené s domem nebo venkovní krytou či nekrytou terasu za příplatek, možno také terasu podsklepit. Pro náročnější klienty máme nabídku nadstandardního vybavení chytré domácnosti, klimatizaci, externí žaluzie, rolety, rekuperaci nebo fotovoltaiku. Doba výstavby cca 12-14 měsíců od vydání stavebního povolení a stavbu zahájíme do 10 dnů od jeho vydání. Smlouvu o dílo včetně položkového rozpočtu a vzorovou kupní smlouvu zašleme na vyžádání. Dne 4. září 2024, došlo k podpisu smlouvy o přeložce distribuční soustavy se společností EG.D. a budou zahájeny následné kroky pro změnu vedení a umístění vysokého napětí - realizace nejpozději do roku 2027. Doporučuji prohlídku pozemků a případně našich staveb. Více u makléře. Ev. číslo: 653508.

Makléř

Máte zájem o tento dům?

Tímto, v souladu s nařízením Evropského parlamentu a Rady (EU) 2016/679, v platném znění, prohlašuji, že mi je alespoň 16 let a uděluji tak svůj souhlas se zpracováním zadaných údajů (jméno, telefon, e-mail, ip adresa) společnosti B3 Technology, s.r.o., IČ: 07330600, se sídlem Novostavby 126/23, 435 11 Lom (správce dat), za účelem předání dotazu z tohoto formuláře Vámi vybranému inzerentovi a zpětného kontaktování mé osoby. Osobní údaje bude správce zpracovávat manuálně i automaticky přímo prostřednictvím svých zaměstnanců. Informace předané tímto formulářem budou uloženy v databázi správce maximálně po dobu 10 let. Odvolání souhlasu s uložením a zpracováním poskytnutých dat lze e-mailem na info@origo-reality.cz. V případě podezření na neoprávněné použití Vámi poskytnutých údajů máte právo předat podnět k šetření Úřadu pro ochranu osobních údajů. Více informací
Chystáte se prodat nemovitost?
Pomůžeme Vám!

Přihlášení k odběru

Nenechte si ujít nejnovější nabídky prodeje rodinných domů v Zlíně.