Prodej komerčního pozemku, Praha - Kobylisy, 2661 m2 (ID: 1951926)

Praha, Kobylisy

Cena na vyžádání
/za nemovitost
cena u makléře
Získejte výhodnou HYPOTÉKU Chci hypotéku

Parametry pozemku

AdresaPraha, Kobylisy
ID0460
Lokalita objektuRušná část obce
Plocha pozemku2661 m2

Origo partneři v Praze 8

Stěhovací služby

Výkup a prodej starého nábytku

Popis

Nabízíme k prodeji atraktivní pozemek o výměře 2 661 m², nacházející se v prestižní a vyhledávané lokalitě Praha 8 – Kobylisy, v ulici Pod Sídlištěm. Místo se vyznačuje klidným rezidenčním charakterem, výbornou dopravní dostupností a kompletní občanskou vybaveností. Dle platného Územního plánu hlavního města Prahy je pozemek veden v plochách VO – všeobecně obytné a BO – čistě obytné, což umožňuje využití pro rezidenční nebo občanskou výstavbu. Jedná se tak o mimořádně zajímavou investiční příležitost v lokalitě s dlouhodobě stabilizovaným prostředím a vysokým rozvojovým potenciálem.
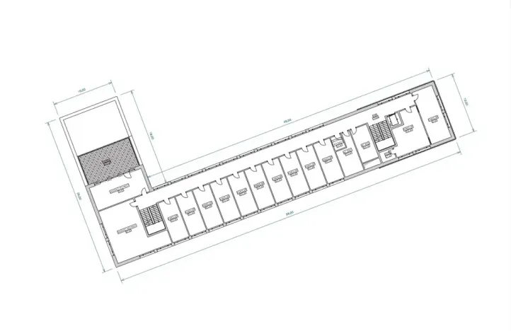
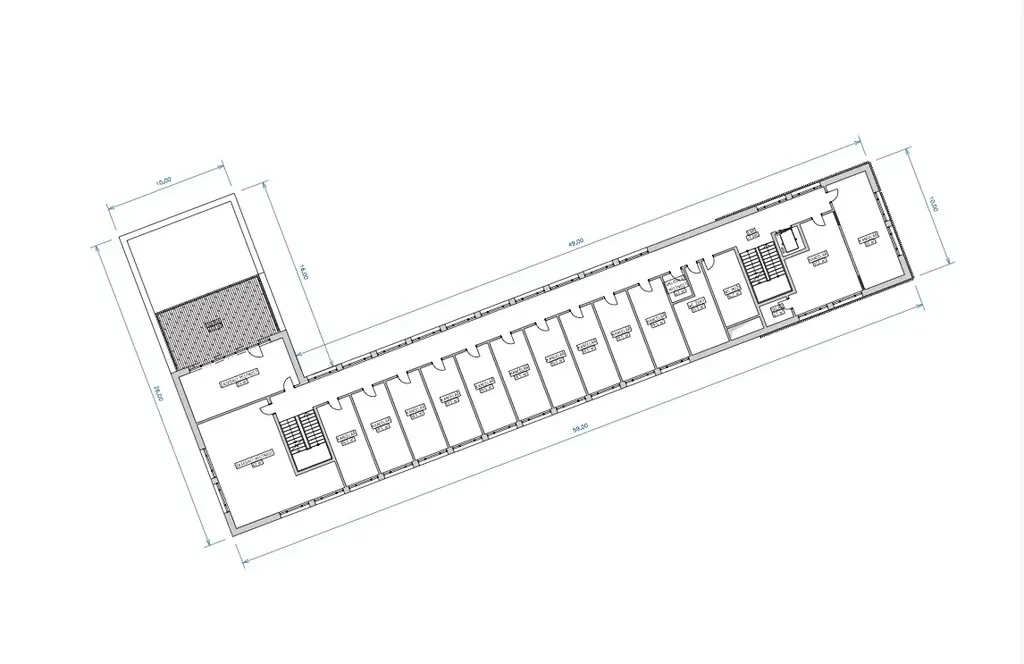
K pozemku je zpracována urbanisticko-architektonická studie, která navrhuje moderní ambulantní zdravotnické zařízení – funkci, po níž je v této části Prahy výrazná poptávka. Studie vznikla na základě konzultací s investorem, prohlídky na místě a odborných podkladů, včetně dat z katastru nemovitostí, Geoportálu Praha, platného územního plánu, Pražských stavebních předpisů a geodetického zaměření pozemku i okolí. Návrh je plně v souladu s územně plánovací dokumentací a respektuje požadavky na využití území i charakter okolní zástavby.
Architektonické a hmotové řešení je koncipováno s důrazem na harmonické začlenění do prostředí a minimalizaci vizuálního dopadu. Hlavní vstup do objektu je situován do ulice Pod Sídlištěm, návrh zachovává měřítko okolní zástavby a přispívá k celkovému zlepšení kvality prostředí. Záměr naplňuje cíle územního plánování a požadavky Pražských stavebních předpisů včetně odstupových parametrů.
Dispoziční řešení je navrženo s ohledem na funkční provoz, bezbariérový přístup a jasné oddělení pohybu pacientů a personálu. V přízemí se nachází vstupní lobby s recepcí, čekárnami, toaletami a základním zázemím. Vyšší podlaží jsou určena pro odborné ordinace, vyšetřovny a administrativní prostory. Studie umožňuje flexibilní přístup podle zvoleného scénáře výstavby – varianta A počítá se dvěma nadzemními podlažími a hrubou podlažní plochou cca 1 348 m², varianta B se třemi nadzemními podlažími a plochou přibližně 2 086 m².
Součástí návrhu je také promyšlené řešení dopravy a parkování. Celkem je navrženo 27 parkovacích stání (8 vázaných a 19 návštěvnických), včetně míst pro osoby s omezenou schopností pohybu a stání pro sanitní vozidla. Parkovací plochy jsou umístěny na povrchu v rámci pozemku, částečně ve formě zatravněné dlažby. Pěší komunikace jsou odděleny od automobilového provozu a navazují na stávající chodníkovou síť.
Venkovní úpravy doplňuje doprovodná zeleň a příjemný nástupní prostor pro pacienty i návštěvníky. Celkové řešení podporuje přehlednou orientaci, bezpečný pohyb a plynulý provoz objektu v běžném režimu.
Díky své poloze, příznivému územnímu určení, připravené projektové studii a výborné dopravní dostupnosti představuje tento pozemek výjimečnou příležitost pro realizaci kvalitního projektu – ať už zdravotnického zařízení, nebo rezidenčního objektu – v jedné z nejatraktivnějších částí Prahy 8.

Makléř

Máte zájem o tento pozemek?

Tímto, v souladu s nařízením Evropského parlamentu a Rady (EU) 2016/679, v platném znění, prohlašuji, že mi je alespoň 16 let a uděluji tak svůj souhlas se zpracováním zadaných údajů (jméno, telefon, e-mail, ip adresa) společnosti B3 Technology, s.r.o., IČ: 07330600, se sídlem Novostavby 126/23, 435 11 Lom (správce dat), za účelem předání dotazu z tohoto formuláře Vámi vybranému inzerentovi a zpětného kontaktování mé osoby. Osobní údaje bude správce zpracovávat manuálně i automaticky přímo prostřednictvím svých zaměstnanců. Informace předané tímto formulářem budou uloženy v databázi správce maximálně po dobu 10 let. Odvolání souhlasu s uložením a zpracováním poskytnutých dat lze e-mailem na info@origo-reality.cz. V případě podezření na neoprávněné použití Vámi poskytnutých údajů máte právo předat podnět k šetření Úřadu pro ochranu osobních údajů. Více informací
Chystáte se prodat nemovitost?
Pomůžeme Vám!

Přihlášení k odběru

Nenechte si ujít nejnovější nabídky prodeje komerčních pozemků v Praze 8.