Pronájem bytu 1+kk, Praha - Třebonice, K metru, 28 m2

K metru, Praha, Třebonice

17 500 Kč
/za měsíc
K nájmu je účtována záloha za služby v domě (2564 Kč), elektřina se přepisuje na nájemníka.
Získejte výhodnou HYPOTÉKU Chci hypotéku

Parametry bytu

AdresaK metru, Praha, Třebonice
ID973841
StavbaCihlová
Stav objektuNovostavba
Patro3. z 5
VybavenoČástečně
VlastnictvíOsobní
Užitná plocha28 m2
Podlahová plocha30 m2
Třída energetické náročnostiB - Velmi úsporná
Elektřina230V
OdpadVeřejná kanalizace
KomunikaceAsfaltová
TelekomunikaceInternet
VodaVodovod
Zdroj topeníÚstřední dálkové
Balkon
Sklep
Výtah
Bezbarierový přístup

Origo partneři v Praze 5

Stěhovací služby

Výkup a prodej starého nábytku

Popis

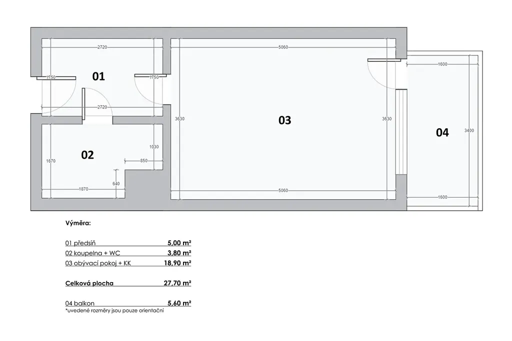
Nabízím možnost pronájmu částečně zařízeného bytu 1+kk, který se nachází v docházkové vzdálenosti od metra Zličín v Praze, v ulici K metru. Tento moderní byt nabízí užitnou plochu o velikosti 27,7 m², balkon 5,6 m² a čistý světlý sklep 3,6 m² (dohromady činí celková užitná plocha 36,9 m²).

Byt se nachází ve 2. patře klidného cihlového domu s výtahem a zaručuje bezbariérový přístup z ulice přímo do bytu. Z energetického hlediska (PENB) patří byt do kategorie B, což zajišťuje nízké provozní náklady, dům je vytápěn centrálně. Byt zatím nebyl obýván a je proto v perfektním stavu.

Interiér bytu je částečně zařízen a nabízí moderní vybavení včetně vestavěné lednice s mrazákem, elektrické varné desky, vestavěné elektrické trouby a digestoře. Dále je k dispozici nový praktický rozkládací gauč, skříň, stůl, a závěsy včetně záclon.


Výborná dostupnost do centra města i na Letiště Václava Havla. V okolí naleznete kompletní občanskou vybavenost včetně obchodů, služeb, škol a zdravotnických zařízení.


Nájemné činí 17 500 Kč za měsíc,
zálohy na služby 2 564 Kč,
elektřina bude předena na nájemníka.

Kauce je stanovena na 20 000 Kč.
Provize za zprostředkování činí 20 000 Kč plus DHP.


Byt je k dispozici ihned, majitel preferuje dlouhodobý pronájem. Ideální bydlení pro jednotlivce nebo pár.

Makléř

Máte zájem o tento byt?

Tímto, v souladu s nařízením Evropského parlamentu a Rady (EU) 2016/679, v platném znění, prohlašuji, že mi je alespoň 16 let a uděluji tak svůj souhlas se zpracováním zadaných údajů (jméno, telefon, e-mail, ip adresa) společnosti B3 Technology, s.r.o., IČ: 07330600, se sídlem Novostavby 126/23, 435 11 Lom (správce dat), za účelem předání dotazu z tohoto formuláře Vámi vybranému inzerentovi a zpětného kontaktování mé osoby. Osobní údaje bude správce zpracovávat manuálně i automaticky přímo prostřednictvím svých zaměstnanců. Informace předané tímto formulářem budou uloženy v databázi správce maximálně po dobu 10 let. Odvolání souhlasu s uložením a zpracováním poskytnutých dat lze e-mailem na info@origo-reality.cz. V případě podezření na neoprávněné použití Vámi poskytnutých údajů máte právo předat podnět k šetření Úřadu pro ochranu osobních údajů. Více informací
Chystáte se prodat nemovitost?
Pomůžeme Vám!