Prodej činžovního domu, Ostrava, 28. října, 470 m2

28. října, Ostrava, Mariánské Hory

21 900 000 Kč
/za nemovitost
Hypotéka od 97 880 Kč /měs. Chci hypotéku

Parametry nemovitosti

Adresa28. října, Ostrava, Mariánské Hory
ID26-07-004
StavbaCihlová
Stav objektuVelmi dobrý
Lokalita objektuCentrum obce
Užitná plocha470 m2
Zastavěná plocha210 m2
Podlahová plocha470 m2
Třída energetické náročnostiG - Mimořádně nehospodárná
Elektřina230V, 400V
PlynPlynovod
OdpadVeřejná kanalizace
TopeníLokální elektrické
TelekomunikaceInternet
VodaVodovod
Výtah
Bezbarierový přístup
Parkování

Origo partneři v Ostravě

Popis

Představte si nemovitost, kde vaši nájemníci denně těží z tisíců potenciálních zákazníků. Výlohy obchodů v přízemí jsou umístěny přímo před tramvajovou zastávkou – každý cestující má váš objekt přímo před očima. To není jen adresa, to je marketingová výhoda zabudovaná do lokality.

Co vás čeká?
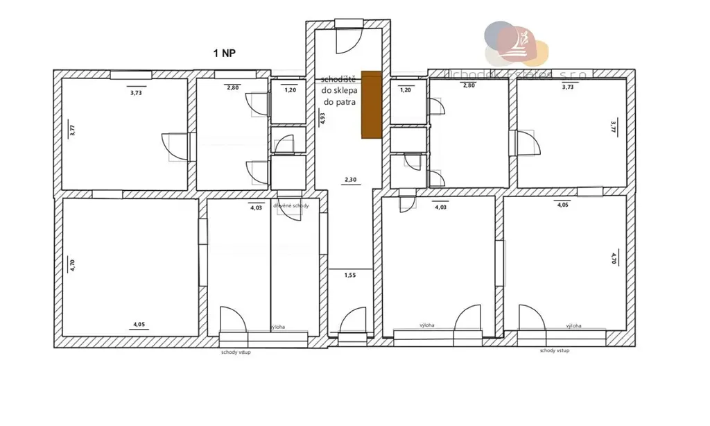
- Přízemí: Dva komerční prostory, každý 100 m2 s velkými výlohami, původně čtyři menší jednotky. Maximální viditelnost z tramvaje.
- Patra: Světlé kancelářské prostory s vysokými stropy a zátěžovými koberci. Ideální pro kanceláře či kreativní studia. 2 nebo 3 kanceláře na každém poschodí.
- Podkroví: Pronajatý nebytový prostor a půda.
- Sklep: Historicky vinárna s vlastní koupelnou, WC a vchodem ze dvora i ulice. Potenciál pro sklady, archiv nebo návrat k původnímu účelu.
- Parkování: 12 parkovacích míst náležejících k domu.

Všechny prostory jsou momentálně pronajaty. Nemovitost je bez věcných břemen a virtuálních sídel. Objekt je prohlášením vlastníka katastrálně rozdělen na jednotky, takže je zde možnost budoucího prodeje i po jednotkách.

Technický stav
- rekonstrukce probíhaly průběžně podle uvolněných prostor
- střecha kompletně ošetřena a oplechována – nikde nezatéká
- okna moderní dvojskla v plastu
- elektřina v mědi s hodinami pro každou jednotku zvlášť
- voda v plastových rozvodech
- topení je elektrické a masivní zdi nevyžadují zateplení

Toto není jen dům. Je to funkční investice s dosahem, kterou konkurence závidí!



Pozn. : Financování pomůžeme zařídit. Energetický štítek se v současné době zpracovává, prozatím uvádíme zákonné "G". Uvedená kupní cena nezahrnuje zprostředkovatelský poplatek ve výši 2%+DPH z ujednané ceny.

Makléř

Máte zájem o tuto nemovistost?

Tímto, v souladu s nařízením Evropského parlamentu a Rady (EU) 2016/679, v platném znění, prohlašuji, že mi je alespoň 16 let a uděluji tak svůj souhlas se zpracováním zadaných údajů (jméno, telefon, e-mail, ip adresa) společnosti B3 Technology, s.r.o., IČ: 07330600, se sídlem Novostavby 126/23, 435 11 Lom (správce dat), za účelem předání dotazu z tohoto formuláře Vámi vybranému inzerentovi a zpětného kontaktování mé osoby. Osobní údaje bude správce zpracovávat manuálně i automaticky přímo prostřednictvím svých zaměstnanců. Informace předané tímto formulářem budou uloženy v databázi správce maximálně po dobu 10 let. Odvolání souhlasu s uložením a zpracováním poskytnutých dat lze e-mailem na info@origo-reality.cz. V případě podezření na neoprávněné použití Vámi poskytnutých údajů máte právo předat podnět k šetření Úřadu pro ochranu osobních údajů. Více informací
Chystáte se prodat nemovitost?
Pomůžeme Vám!

Přihlášení k odběru

Nenechte si ujít nejnovější nabídky prodeje činžovních domů v Ostravě.