Prodej bytu 3+1, Bedřichov, 177 m2

Bedřichov

13 900 000 Kč
/za nemovitost
Hypotéka od 62 125 Kč /měs. Chci hypotéku

Parametry bytu

AdresaBedřichov
IDMN57
StavbaCihlová
Stav objektuDobrý
Patro3. z 3
VybavenoAno
Typ objektuPatrový
VlastnictvíOsobní
Užitná plocha177 m2
Podlahová plocha141 m2
Třída energetické náročnostiG - Mimořádně nehospodárná
Elektřina230V, 400V
OdpadVeřejná kanalizace
TopeníÚstřední elektrické
KomunikaceAsfaltová, Dlážděná
TelekomunikaceInternet
DopravaSilnice, Autobus
VodaVodovod
Topné tělesoRadiátory, Krb
Zdroj topeníElektrokotel
Bezbarierový přístup
Parkování

Origo partneři v Bedřichově

Rekonstrukce

Úklidové služby

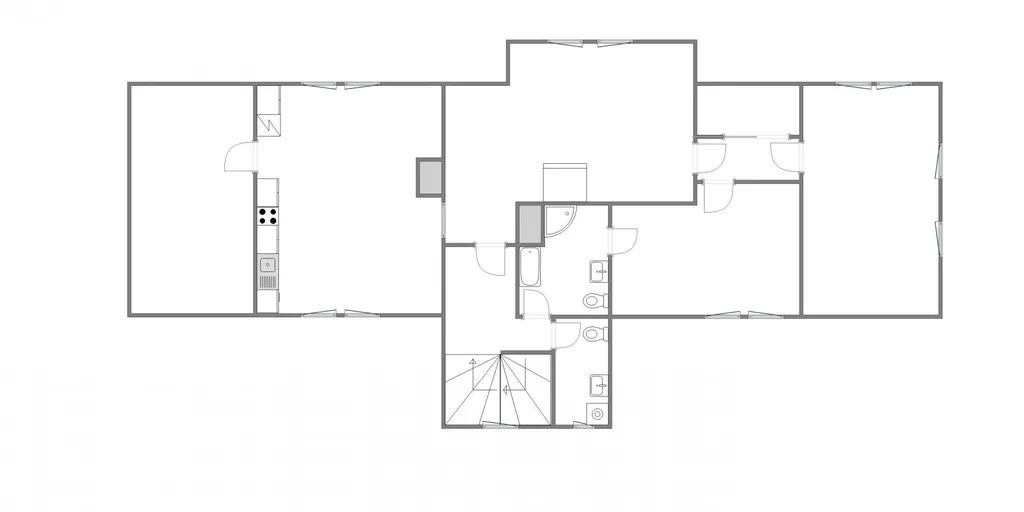
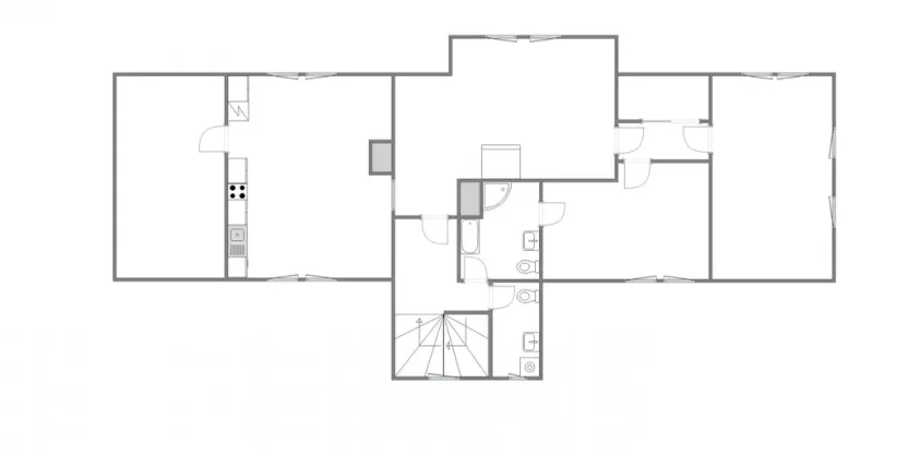
Popis

Exkluzivně nabízíme k prodej kompletně zařízeného bytu o dispozici 3+1 a celkové rozloze 141,9 m2 (obytná plocha 123,7 m2) jehož příslušenství tvoří terasa 34,3 m2 a sklep o rozloze 35,6 m2 v klidné části obce Bedřichov. Příjezd po zpevněné silnici, vlastní parkoviště pro rezidenty. Výměry místností: pokoj s jídelnou a kuchyní 65,4m2, dětský pokoj 25,1 m2, ložnice 19,3 m2, koupelna s WC 8,5 m2, prádelna s druhým WC 5,4 m2, chodba a schodiště 10,8 m2, chodba 7,4 m2 a dále sklep přístupný ze zahrady 35,6 m2 /sklep je sdílený a možné je využívat jej z jedné poloviny/ a privátní terasa 34,3 m2). Vstup do bytu se nachází ve druhém nadzemním podlaží a v tomto podlaží se nachází pouze předsíň se schodištěm do 3.podlaží ve kterém se nachází celý byt (velmi klidný podkrovní byt bez přímých sousedů). Z inženýrských sítí je k dispozici přípojka elektřiny, vodovod, kanalizace. Topení zajištěno kombinací vlastního elektrokotle s etážovým rozvodem a krbových kamen, ohřev vody zajištěn vlastním elektrickým 150 litrovým bojlerem. Připojení k internetu 02 nebo wifi síť místních poskytovatelů. Měsíční náklady .ve výši 3.900,-Kč z čehož je 2.485,-Kč fond oprav + elektřina, dle spotřeby - dodavatel ČEZ + internet. Energetická náročnost budovy nebyla doložena a z toho důvodu je uvedena hodnota G. Dům byl kompletně rekonstruován v roce 2007 a v roce 2010 byla dokončena výstavba předmětného bytu. Společenství vlastníků nemá žádné dluhy a na jaře bude probíhat oprava hydroizolace terasy a dále budou opraveny/vyměněny okapové žlaby. Úklid společných částí domu, úklid sněhu zajištěn správní firmou. V obci Bedřichov je možné realizovat širokou škálu aktivit, jako je například sjezdové lyžování, vyhlášené běžecké lyžování, snowboarding a v létě je místo ideální pro turistiku, cykloturistiku a mnoho dalších aktivit. V případě únavy se v blízkém okolí nachází wellness resort poskytující veškerý servis. Výborná dostupnost Jablonce nad Nisou, Liberce a díky dálnici je dobře dostupné hlavní město Praha. Pro více informací či se zájmem o prohlídku nás neváhejte kontaktovat.

Makléř

Máte zájem o tento byt?

Tímto, v souladu s nařízením Evropského parlamentu a Rady (EU) 2016/679, v platném znění, prohlašuji, že mi je alespoň 16 let a uděluji tak svůj souhlas se zpracováním zadaných údajů (jméno, telefon, e-mail, ip adresa) společnosti B3 Technology, s.r.o., IČ: 07330600, se sídlem Novostavby 126/23, 435 11 Lom (správce dat), za účelem předání dotazu z tohoto formuláře Vámi vybranému inzerentovi a zpětného kontaktování mé osoby. Osobní údaje bude správce zpracovávat manuálně i automaticky přímo prostřednictvím svých zaměstnanců. Informace předané tímto formulářem budou uloženy v databázi správce maximálně po dobu 10 let. Odvolání souhlasu s uložením a zpracováním poskytnutých dat lze e-mailem na info@origo-reality.cz. V případě podezření na neoprávněné použití Vámi poskytnutých údajů máte právo předat podnět k šetření Úřadu pro ochranu osobních údajů. Více informací
Chystáte se prodat nemovitost?
Pomůžeme Vám!

Přihlášení k odběru

Nenechte si ujít nejnovější nabídky prodeje bytů 3+1 v Bedřichově (okr. Jablonec nad Nisou).