Prodej bytu 2+kk, Grebaštica, Chorvatsko, 50 m2

Grebaštica

185 000 €
/za nemovitost

Parametry bytu

AdresaGrebaštica
IDF17610
StavbaCihlová
Stav objektuNovostavba
Patro3. z 3
VybavenoČástečně
Lokalita objektuKlidná část obce
VlastnictvíOsobní
Užitná plocha50 m2
Podlahová plocha61 m2
Elektřina230V
OdpadVeřejná kanalizace
TopeníLokální elektrické
TelekomunikaceInternet
DopravaDálnice, Silnice, Autobus
VodaVodovod
Sklep
Terasa
Parkování

Origo partneři

Popis

Grebaštica je synonymem pro klid a středomořskou pohodu. Je to místo, kde se čas zpomaluje, kde se lidé zdraví na ulici, a kde každá procházka ke křišťálově čistému moři působí jako terapie. Je to vesnice s tradicí, obklopená zelenými kopci a olivovými háji, která se v posledních letech stala oblíbeným cílem nejen pro místní, ale i pro ty, kteří hledají druhý domov u Jadranu.

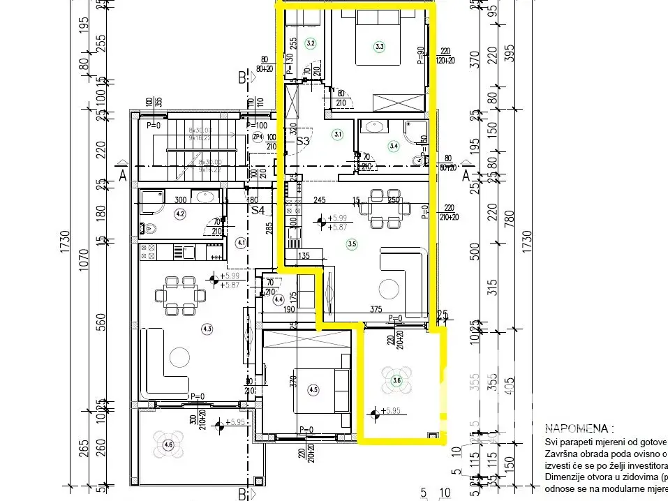
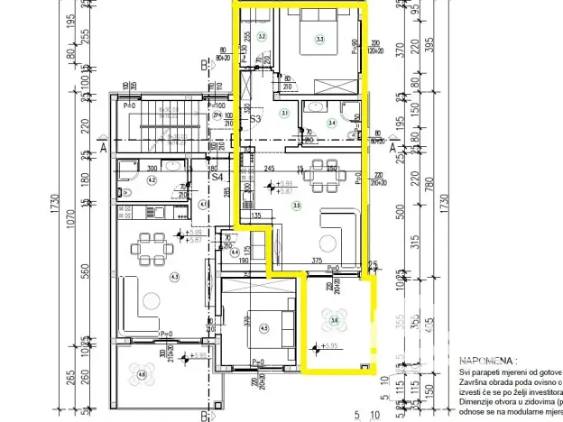
V části zvané Galešnica vzniká nový bytový dům, pečlivě navržený tak, aby zapadl do prostředí a současně splňoval nároky moderního bydlení. Právě zde vám nabízíme apartmán s celkovou plochou 61 m², vzdálený pouhých 200 metrů od moře.
Interiér o výměře 50 m² tvoří vzdušný obývací prostor propojený s kuchyní a jídelním koutem v otevřeném konceptu, jedna ložnice, moderní koupelna, chodba a praktická komora pro úložný prostor. Dominantou bytu je však prostorná, zastřešená terasa o velikosti 11 m², která vybízí k dlouhým letním večeřím nebo ranním kávám v příjemném stínu.

Tento poslední volný apartmán v tomto domě je ideální volbou pro páry, jednotlivce i menší rodiny, které hledají soukromí, komfort a výjimečnou atmosféru v bezprostřední blízkosti moře. Stavba bude dokončena na léto 2025, přičemž při výstavbě jsou využívány kvalitní a ověřené materiály, které zaručují dlouhou životnost, funkčnost a estetiku. Součástí nabídky je i vlastní parkovací místo přímo před domem, což je v přímořských lokalitách rozhodně nezanedbatelný benefit.
Výhodou tohoto apartmánu je jeho univerzální využití. Může se stát vaším druhým domovem pro letní měsíce, ale stejně tak i investicí, která vám přinese pravidelné výnosy z turistického pronájmu.
Lokalita, kde se snoubí krásné pláže, bezpečí, infrastruktura a dostupnost větších měst, je totiž mezi turisty stále vyhledávanější.

Grebaštica je místem, kde si můžete opravdu odpočinout. Žádné rušné diskotéky, žádný přeplněný ruch velkoměsta. Jen moře, příroda a přátelská atmosféra místních kaváren a restaurací. Přesto máte všechno potřebné doslova na dosah ruky – od malých obchodů přes tradiční konoby až po plážové bary, kde si můžete vychutnat čerstvou rybu s výhledem na západ slunce. A pokud zatoužíte po větší společnosti nebo nákupech, Šibenik je jen 15 minut autem, Split potom zhruba hodinu jízdy.

Představte si, že se ráno probouzíte za zpěvu cvrčků, vklouznete do pantoflí, otevřete dveře na terasu a nasajete vůni moře. V dálce slyšíte šplouchání vln a cítíte jemný vánek, který přináší vůni borovic. Tak přesně takové ráno vás může čekat, pokud se rozhodnete pro nový byt v Grebaštici, malebném dalmatském letovisku, jen patnáct minut od historického Šibeniku.

Pokud hledáte prostor, kde si odpočinete, nadechnete se a zpomalíte tempo života – je tento apartmán přesně pro vás. Nečekejte, až vám ho někdo vyfoukne. Tady, jen pár kroků od moře, se možná právě teď píše nová kapitola vašeho života.

Zavolejte nám nebo nám napište, rádi vám poskytneme více informací, zorganizujeme prohlídku a provedeme vás cel... (více na našem webu)

Makléř

Máte zájem o tento byt?

Tímto, v souladu s nařízením Evropského parlamentu a Rady (EU) 2016/679, v platném znění, prohlašuji, že mi je alespoň 16 let a uděluji tak svůj souhlas se zpracováním zadaných údajů (jméno, telefon, e-mail, ip adresa) společnosti B3 Technology, s.r.o., IČ: 07330600, se sídlem Novostavby 126/23, 435 11 Lom (správce dat), za účelem předání dotazu z tohoto formuláře Vámi vybranému inzerentovi a zpětného kontaktování mé osoby. Osobní údaje bude správce zpracovávat manuálně i automaticky přímo prostřednictvím svých zaměstnanců. Informace předané tímto formulářem budou uloženy v databázi správce maximálně po dobu 10 let. Odvolání souhlasu s uložením a zpracováním poskytnutých dat lze e-mailem na info@origo-reality.cz. V případě podezření na neoprávněné použití Vámi poskytnutých údajů máte právo předat podnět k šetření Úřadu pro ochranu osobních údajů. Více informací
Chystáte se prodat nemovitost?
Pomůžeme Vám!

Přihlášení k odběru

Nenechte si ujít nejnovější nabídky prodeje bytů 2+kk.