Pronájem kanceláře, Šumperk, Jílová, 38 m2

Jílová, Šumperk

4 500 Kč
/za měsíc
Získejte výhodnou HYPOTÉKU Chci hypotéku

Parametry nemovitosti

Náklady na bydlení5000
AdresaJílová, Šumperk
StavbaCihlová
Stav objektuPo rekonstrukci
Patro2.
Užitná plocha38 m2
Parkování

Origo partneři v Šumperku

Popis

Hledáte vhodné kancelářské prostory pro Vaše podnikání v Šumperku? Kancelář je pro produktivitu nezbytná a je také místem pro upevňování a budování pracovních vztahů. Vytvořte si motivující pracovní prostředí.

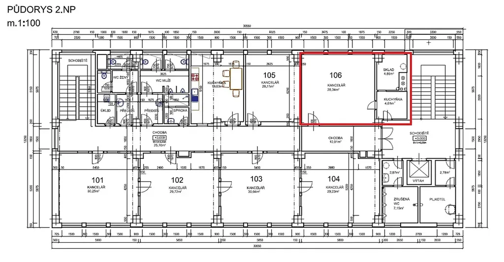
V administrativní budově firmy FORTEX – AGS a.s., na ulici Jílová, je k dispozici příjemná, velice světlá kancelář nacházející se ve 2.NP s výtahem. Její výměra činí 38m2 včetně zázemí (sklad cca 5m2 + kuchyňka). Sociální zázemí v patře. Kancelář je částečně vybavena.

Nájemné: 4.500Kč/měsíc + 3.000Kč paušál za energie + DPH

Prostory jsou volné od 1.3.2026, prohlídky po předchozí dohodě.
Naše nabídka je ideální pro všechny, pro koho bude přínosem možnost využívat výtah a parkoviště přímo za budovou.

Benefitem tohoto komerčního prostoru je bezesporu již zmíněná poloha v městě.

Provize ve výši jednoho nájmu + DPH.

Makléř

Máte zájem o tuto nemovistost?

Tímto, v souladu s nařízením Evropského parlamentu a Rady (EU) 2016/679, v platném znění, prohlašuji, že mi je alespoň 16 let a uděluji tak svůj souhlas se zpracováním zadaných údajů (jméno, telefon, e-mail, ip adresa) společnosti B3 Technology, s.r.o., IČ: 07330600, se sídlem Novostavby 126/23, 435 11 Lom (správce dat), za účelem předání dotazu z tohoto formuláře Vámi vybranému inzerentovi a zpětného kontaktování mé osoby. Osobní údaje bude správce zpracovávat manuálně i automaticky přímo prostřednictvím svých zaměstnanců. Informace předané tímto formulářem budou uloženy v databázi správce maximálně po dobu 10 let. Odvolání souhlasu s uložením a zpracováním poskytnutých dat lze e-mailem na info@origo-reality.cz. V případě podezření na neoprávněné použití Vámi poskytnutých údajů máte právo předat podnět k šetření Úřadu pro ochranu osobních údajů. Více informací
Chystáte se prodat nemovitost?
Pomůžeme Vám!

Přihlášení k odběru

Nenechte si ujít nejnovější nabídky pronájmu kanceláří v Šumperku.