Prodej bytu 4+1, Ústí nad Labem, Maková, 95 m2

Maková, Ústí nad Labem, Severní Terasa

4 100 000 Kč
/za nemovitost
služby 5661,-Kč + elektřina
Hypotéka od 18 325 Kč /měs. Chci hypotéku

Parametry bytu

AdresaMaková, Ústí nad Labem, Severní Terasa
ID26001
StavbaPanelová
Stav objektuDobrý
Patro7.
Lokalita objektuKlidná část obce
VlastnictvíDružstevní
Užitná plocha95 m2
Podlahová plocha95 m2
Třída energetické náročnostiD - Méně úsporná
Ukazatel energetické náročnosti119 kWh/m2 za rok
OdpadVeřejná kanalizace
TopeníÚstřední dálkové
KomunikaceAsfaltová
DopravaMHD
Zdroj topeníÚstřední dálkové
Zdroj teplé vodyCentrální dálkový ohřev
Sklep
Výtah
Bezbarierový přístup
Převod do OV

Origo partneři v Ústí nad Labem

Okna a dveře

Rekonstrukce

Popis

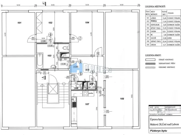
Nabízíme k prodeji velký družstevní byt 95 m2 (sloučení 2 bytů) umístěného v 6. patře panelového domu v ulici Maková, v lokalitě Severní Terasa. Byt je možné převést do OV. Jednotka je orientována na obě strany bytového domu tj. Z-V, s výhledem do okolní krajiny a do vzrostlé zeleně mezi bytovými domy. Prostorná kuchyň, s linkou a vestavěnými spotřebiči, umožňuje i umístění jídelního stolu. Ve středu bytu je situována velká koupelna se závěsným WC, rohovou vanou a sprchovým koutem, dále zde vyniká koupelnová galerie a skříňka s dvojumyvadlem. V bytě je také ještě samostatná toaleta. V bytové jednotce jsou také instalovány vestavěné skříně. Podlahy pokrývá dlažba a plovoucí lamino. K užívání bytu náleží i lodžie umístěná na mezipatře a sklep. Velká Terasa je oblíbené místo k bydlení v Ústí nad Labem. Nedaleko se nachází centrální park Severní Terasa s velkým množstvím venkovních prvků pro pasivní i aktivní odpočinek. Okolní příroda je téměř na dosah ruky, např. Erbenova vyhlídka umožňuje výhledy do širokého okolí. Veškerá občanská vybavenost je v blízkosti domu. Prohlídky po domluvě.

Makléř

Máte zájem o tento byt?

Tímto, v souladu s nařízením Evropského parlamentu a Rady (EU) 2016/679, v platném znění, prohlašuji, že mi je alespoň 16 let a uděluji tak svůj souhlas se zpracováním zadaných údajů (jméno, telefon, e-mail, ip adresa) společnosti B3 Technology, s.r.o., IČ: 07330600, se sídlem Novostavby 126/23, 435 11 Lom (správce dat), za účelem předání dotazu z tohoto formuláře Vámi vybranému inzerentovi a zpětného kontaktování mé osoby. Osobní údaje bude správce zpracovávat manuálně i automaticky přímo prostřednictvím svých zaměstnanců. Informace předané tímto formulářem budou uloženy v databázi správce maximálně po dobu 10 let. Odvolání souhlasu s uložením a zpracováním poskytnutých dat lze e-mailem na info@origo-reality.cz. V případě podezření na neoprávněné použití Vámi poskytnutých údajů máte právo předat podnět k šetření Úřadu pro ochranu osobních údajů. Více informací
Chystáte se prodat nemovitost?
Pomůžeme Vám!

Přihlášení k odběru

Nenechte si ujít nejnovější nabídky prodeje bytů 4+1 v Ústí nad Labem.