Remax Monarcha

Pronájem bytu 2+1, Olomouc, tř. Míru, 51 m2

tř. Míru, Olomouc, Nová Ulice

15 500 Kč
/za měsíc
služby 4450 Kč
Získejte výhodnou HYPOTÉKU Chci hypotéku

Parametry bytu

Adresatř. Míru, Olomouc, Nová Ulice
ID973822
StavbaCihlová
Stav objektuPo rekonstrukci
Patro2. z 4
VlastnictvíOsobní
Užitná plocha51 m2
Podlahová plocha51 m2
Třída energetické náročnostiC - Úsporná
Elektřina230V
Topné tělesoRadiátory
Zdroj topeníÚstřední dálkové
Balkon
Sklep

Origo partneři v Olomouci

Popis

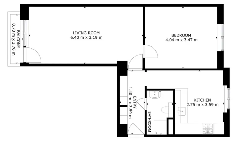
Ve vyhledávané lokalitě v Olomouci Neředíně nabízíme k pronájmu nově zrekonstruovaný cihlový byt 2+1. Lokalita je ideální pro ty, kteří chtějí mít klid, zeleň i skvělou dostupnost do centra. Byt má podlahovou plochu 51,1 m2 a je orientovaný na jih. K bytu dále patří balkón o velikosti 1,9 m2 s krásným výhledem do udržované zeleně.

Byt se skládá ze vstupní chodby, ze které lze jít do koupelny spojené s WC, kuchyně a obývacího pokoje s balkónem. Z obývacího pokoje je pak průchod do ložnice.

Byt se pronajímá včetně tohoto vybavení: moderní kuchyňská linka s lednicí a vestavnou myčkou, jídelní stůl a židle, skříně a dětská patrová postel. Byt se nachází ve 2. patře. Dům je kompletně zateplen s novou fasádou realizovanou v loňském roce. V domě je prostorná kočárkárna pro úschovu kol nebo kočárků. Dům se nachází v klidné a bezpečné lokalitě, kdy v docházkové vzdálenosti je veškerá občanská vybavenost (MHD, obchod, restaurace, univerzita, nemocnice,…) a rychlý nájezd na dálnici OstravaBrno. Kdo je sportovně založený, může využít v blízkosti sportovní hřiště, cyklostezku nebo běžecké stezky a poté pro relaxaci posedět s přáteli u kávy v Traffic Coffee nebo sledovat sportovní přenosy ve sportbaru. Docházková vzdálenost městských parků, centra města a OC Globus je 10 min.

Nájemné: 15 500 Kč
Služby (voda, teplo,…): 4 450 Kč
Internet (optika 250 Mb/s): 399 Kč
Elektřinu si nájemník převede na sebe.
Kauce: 20 000 Kč
Provize RK: 15 500 Kč

Makléř

Máte zájem o tento byt?

Tímto, v souladu s nařízením Evropského parlamentu a Rady (EU) 2016/679, v platném znění, prohlašuji, že mi je alespoň 16 let a uděluji tak svůj souhlas se zpracováním zadaných údajů (jméno, telefon, e-mail, ip adresa) společnosti B3 Technology, s.r.o., IČ: 07330600, se sídlem Novostavby 126/23, 435 11 Lom (správce dat), za účelem předání dotazu z tohoto formuláře Vámi vybranému inzerentovi a zpětného kontaktování mé osoby. Osobní údaje bude správce zpracovávat manuálně i automaticky přímo prostřednictvím svých zaměstnanců. Informace předané tímto formulářem budou uloženy v databázi správce maximálně po dobu 10 let. Odvolání souhlasu s uložením a zpracováním poskytnutých dat lze e-mailem na info@origo-reality.cz. V případě podezření na neoprávněné použití Vámi poskytnutých údajů máte právo předat podnět k šetření Úřadu pro ochranu osobních údajů. Více informací
Chystáte se prodat nemovitost?
Pomůžeme Vám!