Pronájem kanceláře, Brno, 400 m2 (ID: 1947987)

Brno, Dolní Heršpice

225 Kč
/za metr čtvereční / měsíc
+ energie dle vlastní spotřeby a služby 55 Kč/m²/měsíc + dph, bez DPH, včetně provize
Získejte výhodnou HYPOTÉKU Chci hypotéku

Parametry nemovitosti

AdresaBrno, Dolní Heršpice
ID000066-9
StavbaCihlová
Stav objektuVelmi dobrý
Patro3. z 5
VybavenoAno
Užitná plocha400 m2
Podlahová plocha400 m2
Třída energetické náročnostiG - Mimořádně nehospodárná
Elektřina230V, 400V
OdpadVeřejná kanalizace
KomunikaceDlážděná, Asfaltová
TelekomunikaceTelefon, Internet, Ostatní
DopravaDálnice, Silnice, MHD, Autobus
VodaVodovod
Výtah
Bezbarierový přístup
Parkování

Origo partneři v Brně

Popis

Nabízíme k pronájmu reprezentativní kancelářské podlaží, které prošlo z většinové části nadstandardními úpravami ve spolupráci s renovovanou interiérovou architektonickou firmou (prosklené jednací místnosti, vstupní recepční prostor s neformální jednací zónou apod.)
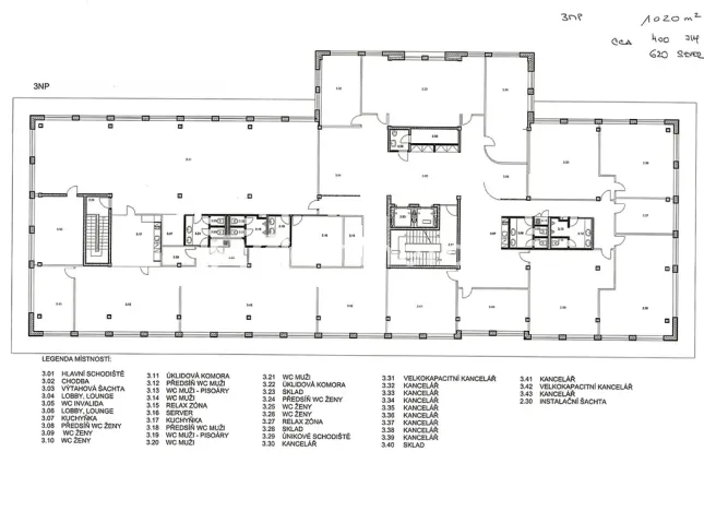
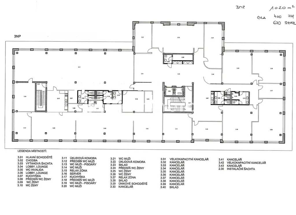
Celé podlaží má výměru 1020m2 a je kombinací jednotlivých kanceláří, jednacích místností a open space prostoru. Kuchyňky i sociální zázemí jsou umístěny ve dvou místech na podlaží.
Majitel objektu se nebrání dělení na dvě samostatné jednotky o velikosti 400m2 a 680m2, vždy se samostatnou kuchyňkou a sociálním zázemím.
Více napoví přiložený půdorys.

Více informací Vám rádi poskytneme v RK.

Makléř

Máte zájem o tuto nemovistost?

Tímto, v souladu s nařízením Evropského parlamentu a Rady (EU) 2016/679, v platném znění, prohlašuji, že mi je alespoň 16 let a uděluji tak svůj souhlas se zpracováním zadaných údajů (jméno, telefon, e-mail, ip adresa) společnosti B3 Technology, s.r.o., IČ: 07330600, se sídlem Novostavby 126/23, 435 11 Lom (správce dat), za účelem předání dotazu z tohoto formuláře Vámi vybranému inzerentovi a zpětného kontaktování mé osoby. Osobní údaje bude správce zpracovávat manuálně i automaticky přímo prostřednictvím svých zaměstnanců. Informace předané tímto formulářem budou uloženy v databázi správce maximálně po dobu 10 let. Odvolání souhlasu s uložením a zpracováním poskytnutých dat lze e-mailem na info@origo-reality.cz. V případě podezření na neoprávněné použití Vámi poskytnutých údajů máte právo předat podnět k šetření Úřadu pro ochranu osobních údajů. Více informací
Chystáte se prodat nemovitost?
Pomůžeme Vám!

Přihlášení k odběru

Nenechte si ujít nejnovější nabídky pronájmu kanceláří v Brně.