Prodej bytu 3+1, Ostrava, Bohumíra Četyny, 65 m2

Bohumíra Četyny, Ostrava, Bělský Les

Cena na vyžádání
/za nemovitost
volejte makléři, včetně provize, včetně právního servisu
Získejte výhodnou HYPOTÉKU Chci hypotéku

Parametry bytu

AdresaBohumíra Četyny, Ostrava, Bělský Les
ID00191
StavbaPanelová
Stav objektuDobrý
Patro15. z 17
VybavenoČástečně
Lokalita objektuSídliště
VlastnictvíOsobní
Užitná plocha65 m2
Podlahová plocha68 m2
Třída energetické náročnostiB - Velmi úsporná
Ukazatel energetické náročnosti83 kWh/m2 za rok
Elektřina230V
OdpadVeřejná kanalizace
KomunikaceBetonová, Dlážděná, Asfaltová
TelekomunikaceInternet
DopravaSilnice, MHD, Autobus
VodaVodovod
Topné tělesoRadiátory
Zdroj topeníCentrální dálkové
Zdroj teplé vodyCentrální dálkový ohřev
Sklep
Výtah

Origo partneři v Ostravě

Popis

Vážení klienti, nabízíme Vám útulný byt 3+1 v oblíbené lokalitě v Ostravě - Bělském Lese.

Nacházíme se na adrese Bohumíra Četyny. Lokalita je známá svojí výbornou dostupností. Výhodou je také kompletní občanská vybavenost. V místě se nachází nejen škola, školka, obchody a služby, ale také zastávka tramvaje a autobusu.

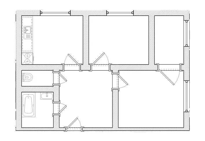
Předmětem prodeje je byt o dispozici 3+1 o užitné ploše 65 m², který se nachází v 15. nadzemním podlaží panelového domu. Ten prošel revitalizací, která zahrnovala nový výtah, výměnu střechy a oken. Orientace oken je na severovýchod a jihovýchod.

Dispozice jednotky tvoří prostorově komfortní předsíň z níž se vchází do jednotlivých pokojů a dále pak do koupelny a na samostatnou toaletu.

Dominantou bytu je velký obývací pokoj orientovaný na jihovýchodní stranu s dostatkem místa pro sedací soupravu, komoru, televizní stěnu. Ten je průchozí do útulné pracony.

Vytápění je dálkové, přenos zajišťují radiátory. Ohřev vody je také zajištěn dálkově.

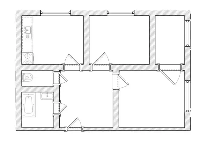
K bytové jednotce náleží sklepní komora 1,8 m² v suterénu domu a dále vlastní skladovací komora přes chodbu naproti bytu o ploše 1,4 m². Parkování zajišťuje parkoviště přímo před domem.

Byt je vhodný jak pro zájemce, kteří hledají prostorné a velmi klidné bydlení pro celou rodinu, tak i pro investory, kteří hledají vhodný byt k pronájmu. To vše v lokalitě s plnou občanskou vybaveností,

Pro více informací či sjednání prohlídky, kontaktujte prosím makléře Pavla Indráka.

Makléř

Máte zájem o tento byt?

Tímto, v souladu s nařízením Evropského parlamentu a Rady (EU) 2016/679, v platném znění, prohlašuji, že mi je alespoň 16 let a uděluji tak svůj souhlas se zpracováním zadaných údajů (jméno, telefon, e-mail, ip adresa) společnosti B3 Technology, s.r.o., IČ: 07330600, se sídlem Novostavby 126/23, 435 11 Lom (správce dat), za účelem předání dotazu z tohoto formuláře Vámi vybranému inzerentovi a zpětného kontaktování mé osoby. Osobní údaje bude správce zpracovávat manuálně i automaticky přímo prostřednictvím svých zaměstnanců. Informace předané tímto formulářem budou uloženy v databázi správce maximálně po dobu 10 let. Odvolání souhlasu s uložením a zpracováním poskytnutých dat lze e-mailem na info@origo-reality.cz. V případě podezření na neoprávněné použití Vámi poskytnutých údajů máte právo předat podnět k šetření Úřadu pro ochranu osobních údajů. Více informací
Chystáte se prodat nemovitost?
Pomůžeme Vám!

Přihlášení k odběru

Nenechte si ujít nejnovější nabídky prodeje bytů 3+1 v Ostravě.