Prodej chaty, Seč, 74 m2 (ID: 1947818)

Seč, Hoješín

3 690 000 Kč
/za nemovitost
Hypotéka od 16 492 Kč /měs. Chci hypotéku

Parametry domu

AdresaSeč, Hoješín
ID13025
StavbaCihlová
Stav objektuDobrý
VybavenoAno
Druh objektuSamostatný
Lokalita objektuKlidná část obce
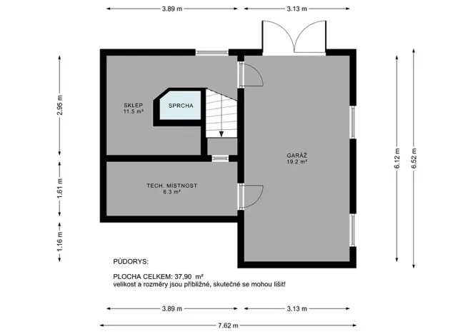
Užitná plocha74 m2
Zastavěná plocha52 m2
Podlahová plocha112 m2
Plocha pozemku227 m2
Plocha zahrady175 m2
Třída energetické náročnostiG - Mimořádně nehospodárná
Elektřina230V
OdpadVeřejná kanalizace
KomunikaceAsfaltová
TelekomunikaceSatelit
DopravaSilnice, Autobus
VodaVodovod
Topné tělesoPřímotop, Krbová kamna
Zdroj topeníPřímotop, Krbová kamna
Zdroj teplé vodyBojler - elektro
Sklep
Výtah

Origo partneři v Seči

Popis

Rádi byste bydli ve své vysněné chatě s nádherným výhledem na přehradu Seč? Exkluzivně Vám nabízím jedinečnou příležitost stát se majitelem zděné chaty v malebné obci Hoješín, která se pyšní prostorným uspořádáním 4+kk a malou zahradou. Z chaty je nádherný výhled na vodní plochu přehradní nádrže Seč, včetně pohledu na druhou stranu přehrady, kde se nachází část zvaná Ústupky.
Chata je vybavena všemi potřebnými inženýrskými sítěmi, včetně elektřiny a vody, což zajišťuje pohodlné bydlení po celý rok. Splachovací WC a vana přidává na komfortu a praktičnosti. V přízemí se nacházejí zděné podlahy, které dodávají prostoru elegantní vzhled a snadnou údržbu. V zimních měsících oceníte vytápění krbovými kamny, které vytvoří příjemnou atmosféru a útulnost. K dispozici je také vyvážecí žumpa, což zajišťuje bezproblémové odpadové hospodářství. V obci se navíc třídí odpad, což přispívá k ekologickému životnímu stylu.
Součástí chaty je také dílna o velikosti 20 m2 a sklad o rozloze 14 m2, což poskytuje dostatek prostoru pro Vaše koníčky a úložné potřeby. Chata se navíc nabízí včetně vybavení, takže se můžete ihned nastěhovat a začít si užívat klidného bydlení. Tato nemovitost je ideální volbou pro ty, kteří hledají klidné místo k odpočinku, ale zároveň chtějí mít blízko k přírodě a možnostem rekreace. V okolí se nachází mnoho turistických a cyklistických tras, které Vás zavedou do nádherné krajiny. Nezmeškejte tuto skvělou příležitost a přijďte se podívat na svou novou chatu, kde si můžete splnit své sny o dokonalém bydlení u vody.

Makléř

Máte zájem o tento dům?

Tímto, v souladu s nařízením Evropského parlamentu a Rady (EU) 2016/679, v platném znění, prohlašuji, že mi je alespoň 16 let a uděluji tak svůj souhlas se zpracováním zadaných údajů (jméno, telefon, e-mail, ip adresa) společnosti B3 Technology, s.r.o., IČ: 07330600, se sídlem Novostavby 126/23, 435 11 Lom (správce dat), za účelem předání dotazu z tohoto formuláře Vámi vybranému inzerentovi a zpětného kontaktování mé osoby. Osobní údaje bude správce zpracovávat manuálně i automaticky přímo prostřednictvím svých zaměstnanců. Informace předané tímto formulářem budou uloženy v databázi správce maximálně po dobu 10 let. Odvolání souhlasu s uložením a zpracováním poskytnutých dat lze e-mailem na info@origo-reality.cz. V případě podezření na neoprávněné použití Vámi poskytnutých údajů máte právo předat podnět k šetření Úřadu pro ochranu osobních údajů. Více informací
Chystáte se prodat nemovitost?
Pomůžeme Vám!

Přihlášení k odběru

Nenechte si ujít nejnovější nabídky prodeje chat v Seči (okr. Chrudim).