Pronájem obchodního prostoru, Praha - Nové Město, Na Zderaze, 300 m2

Na Zderaze, Praha, Nové Město

70 000 Kč
/za měsíc
Získejte výhodnou HYPOTÉKU Chci hypotéku

Parametry nemovitosti

AdresaNa Zderaze, Praha, Nové Město
IDNA_ZDERAZE
StavbaCihlová
Stav objektuDobrý
Patro1.
Užitná plocha300 m2

Origo partneři v Praze 2

Stěhovací služby

Výkup a prodej starého nábytku

Popis

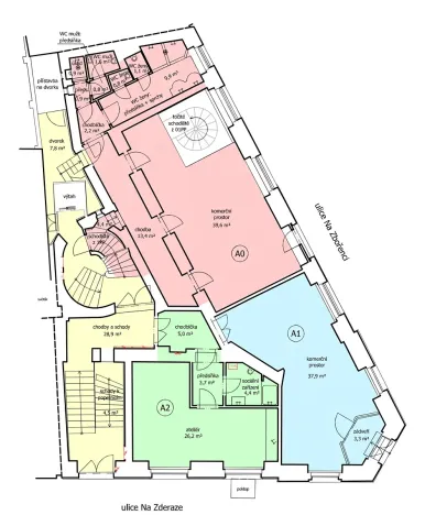
Představujeme Vám k pronájmu komerční prostory 300m2 k pronájmu v ulici na Zderaze - Praha 2. Prostory jsou vhodné pro koncepty obchod, showroom, služby, ordinace, kancelář nebo i koncept kavárna.

Nebytový prostor je rozdělen na přízemí 126m2 a propojený otevřeným schodištěm do suterénu, kde je dalších 146m2. Dále v -2PP jsou další skladové prostory.

Prostory se nabízí k rekonstrukci dle představ nájemce - vzhledem k investicím je možnost jednat o snížení nájemného dle dohody s pronajímatelem. Smlouva 5let + opce 5let.

Provize RK. Pro více informací volejte pište.

Makléř

Máte zájem o tuto nemovistost?

Tímto, v souladu s nařízením Evropského parlamentu a Rady (EU) 2016/679, v platném znění, prohlašuji, že mi je alespoň 16 let a uděluji tak svůj souhlas se zpracováním zadaných údajů (jméno, telefon, e-mail, ip adresa) společnosti B3 Technology, s.r.o., IČ: 07330600, se sídlem Novostavby 126/23, 435 11 Lom (správce dat), za účelem předání dotazu z tohoto formuláře Vámi vybranému inzerentovi a zpětného kontaktování mé osoby. Osobní údaje bude správce zpracovávat manuálně i automaticky přímo prostřednictvím svých zaměstnanců. Informace předané tímto formulářem budou uloženy v databázi správce maximálně po dobu 10 let. Odvolání souhlasu s uložením a zpracováním poskytnutých dat lze e-mailem na info@origo-reality.cz. V případě podezření na neoprávněné použití Vámi poskytnutých údajů máte právo předat podnět k šetření Úřadu pro ochranu osobních údajů. Více informací
Chystáte se prodat nemovitost?
Pomůžeme Vám!