Prodej bytu 2+kk, Praha - Modřany, Krouzova, 43 m2 (ID: 1944417)

Krouzova, Praha, Modřany

5 290 000 Kč
/za nemovitost
Hypotéka od 23 643 Kč /měs. Chci hypotéku

Parametry bytu

AdresaKrouzova, Praha, Modřany
IDN90745
StavbaPanelová
Stav objektuPřed rekonstrukcí
Patro3. z 8
Lokalita objektuSídliště
VlastnictvíDružstevní
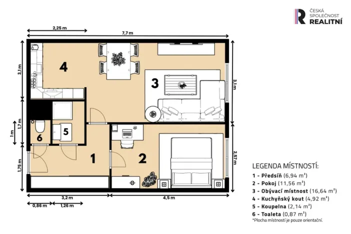
Užitná plocha43 m2
Podlahová plocha44 m2
Třída energetické náročnostiG - Mimořádně nehospodárná
Elektřina230V
OdpadVeřejná kanalizace
TopeníÚstřední dálkové
KomunikaceAsfaltová
VodaVodovod
Sklep
Výtah
Bezbarierový přístup
Převod do OV

Origo partneři v Praze 4

Stěhovací služby

Výkup a prodej starého nábytku

Popis

Byt 2+kk, celková výměra 44,6 m² včetně sklepa – soukromí a přímý kontakt s Píšovickým lesem.

Nabízíme družstevní byt o dispozici 2+kk a celkové výměře 44,6 m² včetně sklepa, situovaný v Praze Modřanech, v ulici Krouzova. Jde o část sídliště, která je v rámci Modřan výjimečná především uspořádáním okolní zástavby a bezprostředním kontaktem se zelení.

Namísto obvyklého sídlištního pohledu do protějších oken nabízí byt výhled do otevřeného prostoru se zelení, přičemž dům přímo navazuje na parkovou a lesní oblast. Díky tomu je v bytě zajištěno větší soukromí.

Stav bytu je před rekonstrukcí, zároveň je ale plně vyhovující pro okamžitý pronájem. Byt má zděné bytové jádro, funkční dispozici a nevyžaduje akutní investice, pokud je záměrem pronajímání. Pro budoucího majitele tak nabízí kombinaci okamžité využitelnosti a potenciálu zhodnocení po rekonstrukci.

Zásadní předností bytu je jeho poloha vůči zeleni. Z druhé strany domu přímo navazuje Píšovický les, do kterého se vstupuje prakticky přímo od domu. Nejde o vzdálený park, ale o souvislý lesní celek, který tvoří přirozené zázemí pro každodenní procházky, běh nebo venčení psa.

V širším okolí se nachází také Lesopark Hodkovičky, Modřanská rokle a další travnaté a zalesněné plochy, které doplňují charakter lokality a rozšiřují možnosti volnočasových aktivit, aniž by narušovaly klid bezprostředního okolí domu.

Občanská vybavenost je řešena prakticky, obchody včetně Kauflandu a DM, služby i Obchodní náměstí v Modřanech jsou v docházkové vzdálenosti. Lokalita má stabilní poptávku po nájemním bydlení a dobrou dostupnost MHD.

Byt je vhodný jak pro vlastní bydlení s důrazem na klid a zeleň, tak jako dlouhodobá investice postavená na kvalitním umístění, nikoli na krátkodobém efektu rekonstrukce. Byt je ihned volný.

Družstevní byt může oproti bytům v osobním vlastnictví nabídnout určité praktické výhody, zejména z pohledu pronajímání a nižší administrativní zátěže. Převod družstevního podílu je oproti převodu bytu v osobním vlastnictví výrazně rychlejší a jednodušší, přičemž družstevní bydlení je v této lokalitě dlouhodobě stabilní a dobře fungující. Vzhledem k tomu, že byt je prázdný a připravený nastěhování, může jak samotný převod, tak následné nastěhování proběhnout ve velmi krátkém časovém horizontu.

Energetický průkaz budovy bude dodatečně doložen. V domě proběhla realizace nové střechy se zateplením, a proto je zpracováván aktualizovaný energetický štítek odpovídající současnému stavu objektu. Dům je proto dočasně označen nejhorší energetickou třídou. 

V bytě probíhají finální dokončovací práce a příprava na prohlídky, 3. a 4. 2. 2026 od odpoledne do pozdního večera plánujeme na této nemovitosti první prohlídkové dny. 

V případě zájmu jsme schopni pomoci se zajištěním financování odpovídajícího formě družstevního vlastnictví.
Pro bližší informace nebo odkaz na webovou stránku s detailním popisem bytu nás neváhejte kontaktovat.

Makléř

Máte zájem o tento byt?

Tímto, v souladu s nařízením Evropského parlamentu a Rady (EU) 2016/679, v platném znění, prohlašuji, že mi je alespoň 16 let a uděluji tak svůj souhlas se zpracováním zadaných údajů (jméno, telefon, e-mail, ip adresa) společnosti B3 Technology, s.r.o., IČ: 07330600, se sídlem Novostavby 126/23, 435 11 Lom (správce dat), za účelem předání dotazu z tohoto formuláře Vámi vybranému inzerentovi a zpětného kontaktování mé osoby. Osobní údaje bude správce zpracovávat manuálně i automaticky přímo prostřednictvím svých zaměstnanců. Informace předané tímto formulářem budou uloženy v databázi správce maximálně po dobu 10 let. Odvolání souhlasu s uložením a zpracováním poskytnutých dat lze e-mailem na info@origo-reality.cz. V případě podezření na neoprávněné použití Vámi poskytnutých údajů máte právo předat podnět k šetření Úřadu pro ochranu osobních údajů. Více informací
Chystáte se prodat nemovitost?
Pomůžeme Vám!

Přihlášení k odběru

Nenechte si ujít nejnovější nabídky prodeje bytů 2+kk v Praze 4.